Büro/Praxis, Kauf, Merzig
Immobilienportal-saarland.de
MERZIG: 430 M² WOHN-/ NUTZFLÄCHE IN GUTEM ZUSTAND!

MERZIG: 430 M² WOHN-/ NUTZFLÄCHE IN GUTEM ZUSTAND!

Objektbeschreibung

Diese großzügige Immobilie wurde ursprünglich im Jahr 1920 erbaut und befindet sich in zentraler Lage von Merzig. Das Anwesen wurde im Jahr 1973 durch den Anbau einer Werkstatt erweitert und im Jahr 1992 wurde das Obergeschoss dieser Werkstatt ausgebaut. Bisher als Orthopädie-Schuhtechnik mit separater Wohneinheit genutzt, eignet sich die Immobilie ideal für eine Kombination aus Wohnen und Arbeiten oder für reine gewerbliche Nutzung.



Mit einer Wohnfläche von ca. 194 m² und einer Nutzfläche von ca. 237 m² bietet das Haus viel Platz – ob zum Wohnen, Arbeiten oder beidem.



Ein schöner, ruhiger Garten lädt zum Verweilen ein und bietet Raum für Entspannung. Die grüne Umgebung schafft eine angenehme Atmosphäre und ergänzt das Angebot dieser besonderen Immobilie ideal.



Die Immobilie liegt gut sichtbar an einer stark frequentierten Straße, ideal für Gewerbe mit hoher Sichtbarkeit und Laufkundschaft. Durch die Schallschutzverglasung an der Straßenseite ist ein ruhiges Arbeiten oder Wohnen trotz Verkehr gewährleistet.



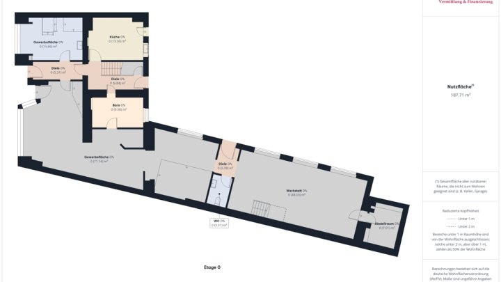
Die Raumaufteilung des Geschäftshauses ist wie folgt:



Erdgeschoss:

Diele, Gewerbeflächen, Küche, Büro, Gäste-WC, Flur mit Ausgang in den Garten, Werkstatt mit Treppenaufgang zu den Büros/Archiv



Obergeschoss:

3 Büros/Archivzimmer



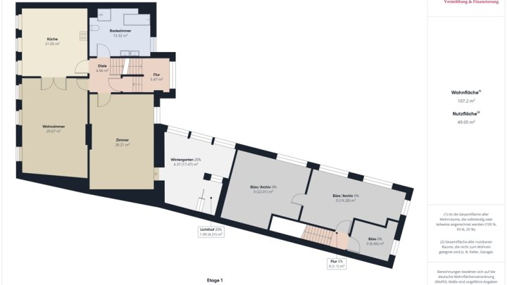
Die Raumaufteilung des Wohnhauses ist wie folgt:



Erdgeschoss:

Diele, Flur mit Ausgang zur Terrasse und in den Garten



Obergeschoss:

Diele, Essküche mit offenem Wohnzimmer, Zimmer mit Zugang zum Wintergarten und Lichthof, Badezimmer



Dachgeschoss:

Diele, 4 Schlafzimmer, Badezimmer



Kellergeschoss:

Flur, 2 Kellerräume, Öllagerraum, Heizungsraum



Fazit

Ein Haus mit viel Platz, einem schönen Garten und vielseitigen Nutzungsmöglichkeiten – perfekt für alle, die Wohnen und Arbeiten verbinden oder eine besondere Immobilie in Merzig suchen.

Lage

Merzig liegt verkehrsgünstig direkt an der A8 und B51 zwischen Saarbrücken und Trier. Die Stadt Luxemburg ist ca. 50 km entfernt. Die Autobahnanbindung ist in wenigen Fahrminuten gut zu erreichen. Mit seiner reizvollen Lage, direkt an der Saar, ist Merzig ein idealer Ort für vielfältige Freizeitgestaltungen und Einkaufsmöglichkeiten.



19 km bis D-Saarlouis

44 km bis D-Saarbrücken

25 km bis L-Schengen

55 km bis L-Stadt

Sonstiges

Unser gesamtes Immobilienangebot können Sie unter www.immobilien-bart.de einsehen.



Haben wir Ihr Interesse geweckt? Für einen unverbindlichen Besichtigungstermin stehen wir Ihnen nach vorheriger Terminabsprache gerne zur Verfügung. Bitte haben Sie Verständnis dafür, dass wir Anfragen nur bearbeiten, wenn uns der vollständige Name, die Postanschrift und eine Rufnummer mitgeteilt wird. Ihre Daten werden selbstverständlich streng vertraulich und nur für diese Anfrage verwendet.



Sie möchten diese Immobilie finanzieren?

Vereinbaren Sie mit uns einen Beratungstermin, natürlich kostenfrei und unverbindlich. Aus einem Pool von 100 Banken finden wir, auch für Sie, die passende Finanzierung!



Die Käuferprovision beträgt 3,57 % inkl. MwSt. vom notariell beurkundeten Kaufpreis und ist verdient und fällig mit der notariellen Beurkundung.



Haftungsvorbehalt: Sämtliche Angaben erhielten wir vom Eigentümer und geben diese ohne Haftung weiter. Irrtum und Zwischenverkauf bleiben vorbehalten.

438.800 €

Kaufpreis

12

Anzahl Zimmer

Adresse

66663 Merzig

Preise & Kosten

Kaufpreis
438.800 €
Käufercourtage
3,57 % inkl. MwSt

Angaben zur Immobilie

Objektart
Bürofläche
Anzahl Terrassen
1
Anzahl Zimmer
12
Anzahl separate WCs
1
Anzahl Balkone
1

Ausstattung

Boden
Fliesen, Parkett, Dielen
heizungsart
Zentralheizung
befeuerung
Öl, Gas
Unterkellert
teils

Besonderheiten:

- zentrale Lage an einer tagsüber belebten Straße – ideal für Gewerbe mit viel Laufkundschaft

- Schallschutzfenster an der Straßenseite – ruhige Innenräume trotz Verkehr

- flexible Nutzung – geeignet als Praxis, Büro oder Wohnhaus

- großzügige Räume mit viel Tageslicht

- schöner, ruhiger Garten hinter dem Haus – perfekter Rückzugsort

- ständige Renovierungen

Die Gewerbeeinheit wird durch eine Öl-Zentralheizung beheizt.

Die Wohneinheit wird durch eine Gas-Zentralheizung beheizt.

Der Energieausweis ist in Bearbeitung.

Ansprechpartner

Nora Jacob

Immobilien Bart GmbH

Anbieter

Immobilien Bart GmbH

66706 Perl-Nennig

Telefon06867 56 10 333
E-MailDiese E-Mail-Adresse ist vor Spambots geschützt! Zur Anzeige muss JavaScript eingeschaltet sein.
Webhttps://www.immobilien-bart.de/

Bilder

MERZIG: 430 M² WOHN-/ NUTZFLÄCHE IN GUTEM ZUSTAND!
MERZIG: 430 M² WOHN-/ NUTZFLÄCHE IN GUTEM ZUSTAND!
MERZIG: 430 M² WOHN-/ NUTZFLÄCHE IN GUTEM ZUSTAND!
MERZIG: 430 M² WOHN-/ NUTZFLÄCHE IN GUTEM ZUSTAND!
MERZIG: 430 M² WOHN-/ NUTZFLÄCHE IN GUTEM ZUSTAND!
MERZIG: 430 M² WOHN-/ NUTZFLÄCHE IN GUTEM ZUSTAND!
MERZIG: 430 M² WOHN-/ NUTZFLÄCHE IN GUTEM ZUSTAND!
MERZIG: 430 M² WOHN-/ NUTZFLÄCHE IN GUTEM ZUSTAND!
MERZIG: 430 M² WOHN-/ NUTZFLÄCHE IN GUTEM ZUSTAND!
MERZIG: 430 M² WOHN-/ NUTZFLÄCHE IN GUTEM ZUSTAND!
MERZIG: 430 M² WOHN-/ NUTZFLÄCHE IN GUTEM ZUSTAND!
MERZIG: 430 M² WOHN-/ NUTZFLÄCHE IN GUTEM ZUSTAND!
MERZIG: 430 M² WOHN-/ NUTZFLÄCHE IN GUTEM ZUSTAND!
MERZIG: 430 M² WOHN-/ NUTZFLÄCHE IN GUTEM ZUSTAND!
MERZIG: 430 M² WOHN-/ NUTZFLÄCHE IN GUTEM ZUSTAND!
MERZIG: 430 M² WOHN-/ NUTZFLÄCHE IN GUTEM ZUSTAND!
MERZIG: 430 M² WOHN-/ NUTZFLÄCHE IN GUTEM ZUSTAND!
MERZIG: 430 M² WOHN-/ NUTZFLÄCHE IN GUTEM ZUSTAND!
MERZIG: 430 M² WOHN-/ NUTZFLÄCHE IN GUTEM ZUSTAND!
MERZIG: 430 M² WOHN-/ NUTZFLÄCHE IN GUTEM ZUSTAND!
MERZIG: 430 M² WOHN-/ NUTZFLÄCHE IN GUTEM ZUSTAND!
MERZIG: 430 M² WOHN-/ NUTZFLÄCHE IN GUTEM ZUSTAND!
MERZIG: 430 M² WOHN-/ NUTZFLÄCHE IN GUTEM ZUSTAND!