Grundstück, Kauf, Züsch
Immobilienportal-saarland.de
Baugrundstück in Züsch – erschlossen – 831 m² – mit optionaler Projektierung

Baugrundstück in Züsch – erschlossen – 831 m² – mit optionaler Projektierung

Baugrundstück in Züsch – erschlossen – 831 m² – mit optionaler Projektierung

Objektbeschreibung

In ruhiger, naturnaher Lage mit schöner Aussicht von Züsch steht dieses voll erschlossene Baugrundstück mit 831 m² zum Verkauf. Das Grundstück eignet sich ideal für den Bau eines Einfamilienhauses oder eines Doppelhauses und bietet durch seine Größe viel Gestaltungsfreiheit.

Das Grundstück befindet sich in einem Neubaugebiet mit vorliegendem Bebauungsplan und ist sofort bebaubar.

Grundstücksdaten:

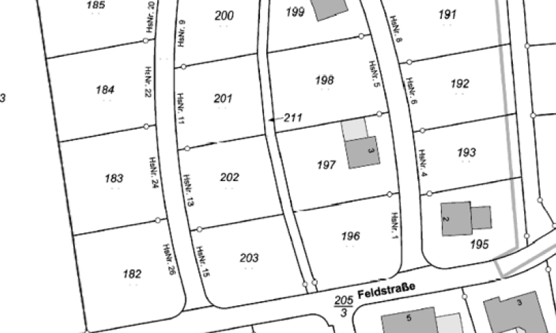
Flurstück: 190

Grundstücksgröße: 831 m²

Kaufpreis: 83.000 €

Erschließung: erschlossen

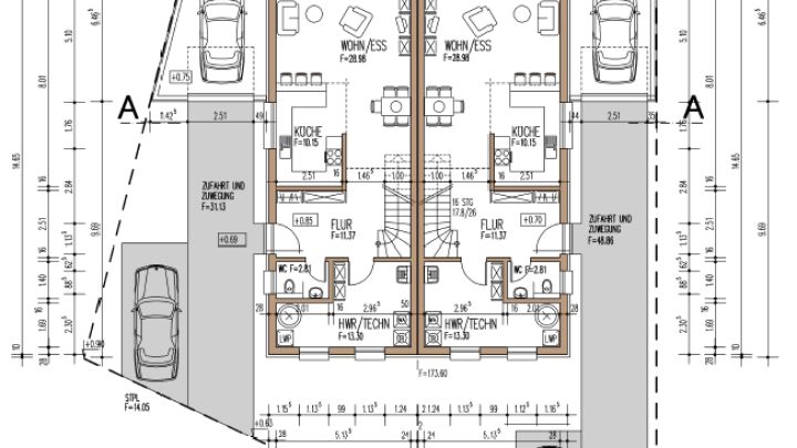
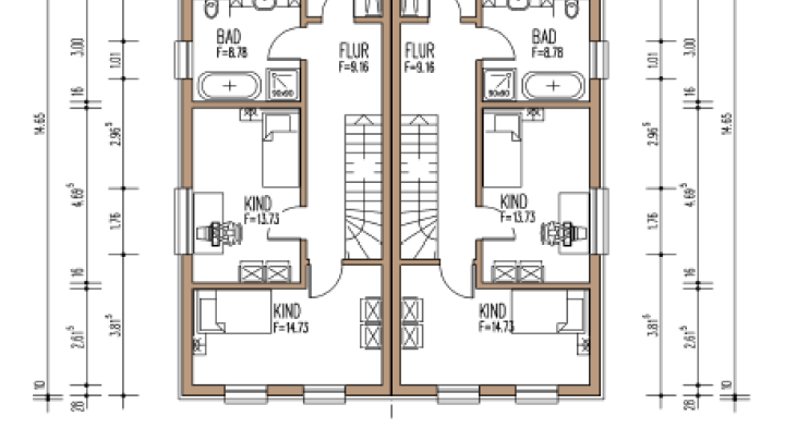
Nutzung: Einfamilienhaus oder Doppelhaus möglich

Geschosse: bis zu 2 Vollgeschosse

Garage / Stellplätze zulässig

Bebauungsplan liegt vor

Projektierung (optional – exklusiv über Partner)

Auf Wunsch kann das Grundstück in exklusiver Zusammenarbeit mit meinem festen Modulhaus-Partner mit einem Einfamilien- oder Doppelhaus projektiert werden.

Ich bin hierfür Handelsvertreterin des Modulhaus-Herstellers und begleite Sie persönlich von der Planung bis zur Umsetzung.

Da die Häuser individuell geplant und ausgestattet werden, ist die Bebauung nicht Bestandteil des Kaufpreises.

Hauspreise erhalten Sie ausschließlich auf Anfrage.

Besondere Vorteile

Voll erschlossen ✅

Flexible Bebauung ✅

Ruhige Lage mit Aussicht ✅

Neubaugebiet ✅

Projektierung möglich ✅

Ideal für Eigennutzer & Investoren ✅

Lage

Züsch ist ein idyllischer Erholungsort und eine staatlich anerkannte Gemeinde im Landkreis Trier-Saarburg. Das Grundstück liegt in ruhiger Lage mit schöner Aussicht.

Die Grundschule ist fußläufig in ca. 7 Minuten erreichbar, der Kindergarten liegt ca. 2,3 km entfernt (ca. 4 Minuten mit dem Auto).

Die Bushaltestelle befindet sich in ca. 10 Gehminuten Entfernung.

Zahlreiche Freizeit- und Erholungsmöglichkeiten befinden sich in unmittelbarer Umgebung.

Sonstiges

Wichtige Hinweise

Bebaubarkeit gemäß Bebauungsplan

Das Grundstück ist erschlossen, die Straße befindet sich im Vorstufenausbau. Der endgültige Erschließungsbeitrag wird nach Endausbau abgerechnet.

Weitere Unterlagen (Lageplan, Flurkarte etc.) auf Anfrage

Käuferprovision: 3,57%

83.000 €

Kaufpreis

831 m²

Grundstücksfläche

Adresse


54422 Züsch

Preise & Kosten

Kaufpreis
83.000 €
Käufer-Provision

Angaben zur Immobilie

Objektart
Wohnen
Grundstücksfläche
831 m²
Bebaubar nach/ Bebauungsrichtlinien
B-Plan
Erschließung
ortsüblich erschlossen

Karte

Ansprechpartner

Cindy Klima

Cindy Klima Immobilien

Anbieter

Cindy Klima Immobilien

66126 Saarbrücken

Telefon01604052331
E-MailDiese E-Mail-Adresse ist vor Spambots geschützt! Zur Anzeige muss JavaScript eingeschaltet sein.

Bilder

Baugrundstück in Züsch – erschlossen – 831 m² – mit optionaler Projektierung
Baugrundstück in Züsch – erschlossen – 831 m² – mit optionaler Projektierung
Baugrundstück in Züsch – erschlossen – 831 m² – mit optionaler Projektierung
Baugrundstück in Züsch – erschlossen – 831 m² – mit optionaler Projektierung
Baugrundstück in Züsch – erschlossen – 831 m² – mit optionaler Projektierung
Baugrundstück in Züsch – erschlossen – 831 m² – mit optionaler Projektierung