Grundstück, Kauf, Großbundenbach
Immobilienportal-saarland.de
BAUTRÄGER UND INVESTOREN-Bauerwartungsland mit ca. 20.504 m² in Großbundenbach

BAUTRÄGER UND INVESTOREN-Bauerwartungsland mit ca. 20.504 m² in Großbundenbach

Objektbeschreibung

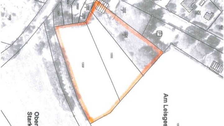
Die Fläche unterhalb des Friedhofes ist im Flächennutzungsplan als Baugebiet bereits eingezeichnet. Die Planung des Baulandes ist noch nicht komplett abgeschlossen. Eine flexible Planung mit dem Investor wird angestrebt.

Geplant ist ein erster Bauabschnitt auf ca. 6000 qm Fläche mit ca. 10-12 Bauplätzen. Erschlossen soll das über eine Abbiegespur in der Friedhofstraße in eine Sackgasse mit Wendehammer.

Auf der Bergseite könnten mehrere 4 Familienhäuser errichtet werden. Zur Talseite sind Einfamilienhäuser vorstellbar.

Die Restfläche kann bereits als Ausgleichsflache genutzt werden. Zusätzlich ist ein Überlaufweiher notwendig, der auch auf diesem Gebiet untergebracht werden kann.

Denkbar ist auch ein 2. Bauabschnitt. Dieser ist bereits im ersten Bauabschnitt berücksichtigt.

Der Anschluss in die Kanalisation ist nur über eine Hebeanlage in die Friedhofstraße möglich. Das Oberflächenwasser muss talwärts über einen bereits der Gemeinde gehörenden Weg ins Tal in einen Vorfluter abgeleitet werden.



Denkbar ist der Zukauf eines Teilgrundstückes der ehemaligen Tankstelle um unbelasteten Bereich. Hier kann neben der Zugangsstraße auch eine Freifläche für Wohnmobilstellplätze, E-Ladestationen integriert werden.

Der Verkauf dieser Fläche könnte über die Ortsgemeinde veranlasst werden. Der Besitzer ist grundsätzlich Verkaufs-bereit.



Denkbar ist auch oberhalb des Friedhofs eine Photovoltaikfreiflächenanlage, die einen großen Teil des gewonnenen Stroms auf dem Gelände verbrauchen könnte.

Kooperationspartner wäre hier eventuell die Pfalzwerke oder die Energiegesellschaft der VG Zweibrücken Land. Daran ist die Pfalzwerke und die WVE beteiligt.



Insgesamt schwebt der Ortsgemeinte eine zukunftsweisende und nachhaltige Erschließung des Gebiets vor.

Lage

Großbundenbach ist eine Ortsgemeinde im Landkreis Südwestpfalz in Rheinland-Pfalz. Sie gehört der Verbandsgemeinde Zweibrücken-Land an, innerhalb derer sie gemessen an der Einwohnerzahl die drittkleinste Ortsgemeinde darstellt. Das Dorf bezeichnet sich selbst als„ Das Walnussdorf“

Sonstiges

Der Makler-Vertrag mit uns und/oder unserem Beauftragten kommt durch die Bestätigung der Inanspruchnahme unserer Maklertätigkeit in Textform zustande, wie z.B. insbesondere die Unterschrift des Suchkundenvertrages und/oder des Objekt-Exposés. Die Höhe der Courtage richtet sich nach den ab dem 23.12.2020 in Kraft getretenen gesetzlichen Regelungen zur Teilung der Maklercourtage. Hiernach wird die Courtage regelmäßig für beide Parteien (Eigentümer und Käufer) 3,57 % auf den Kaufpreis inklusive gesetzlicher Umsatzsteuer betragen und ist bei notariellem Vertragsabschluss verdient und fällig. Die Höhe der Bruttocourtage unterliegt einer Anpassung bei Steuersatzänderung. Immobilia GmbH und ggf. deren Beauftragte erhalten einen unmittelbaren Zahlungsanspruch gegenüber dem Käufer (Vertrag zugunsten Dritter, § 328 BGB). Wir haben mit dem Verkäufer einen Maklervertrag in gleicher Höhe abgeschlossen. Grunderwerbssteuer, Notar- und Gerichtskosten trägt der Käufer.



Alleinverkauf durch die Fa. Immobilia GmbH



Ihr Ansprechpartner: Immobilia GmbH, 66482 Zweibrücken, Poststraße 19, Immobilienberaterin Gabriele Bieber Tel. Nr. 06332 - 903460, E-Mail: gabriele.bieber@immo-gessner.de

Unsere Objekte befindet sich im freien Verkauf. Wir sind auch für den Eigentümer tätig.

Die Objektdaten wurden uns vom Eigentümer genannt und sind ohne Gewähr.

Die Fälligkeit der Provision entsteht mit dem Abschluss des Kaufs bzw. Mietvertrages.

Es gelten die Provisionen wie im Exposé angezeigt.

Die in dem Exposé und Beschreibungen u. a. enthaltenen Angaben basieren auf Informationen des Verkäufers. Zu eigenen Nachforschungen ist die Fa. Immobilia GmbH nicht verpflichtet. Sie übernimmt deshalb keine Haftung für die Richtigkeit und Vollständigkeit der Angaben, es sei denn, die Unrichtigkeit beruht auf grobem Verschulden der Fa. Immobilia GmbH.



Besichtigungstermine sind jederzeit nach Absprache möglich.



Bitte übermitteln Sie uns bei einer Kontaktaufnahme Ihre vollständigen Kontaktdaten.



Vorab vielen Dank für Ihr Interesse und Ihre Kontaktaufnahme.

Kaufpreis auf Anfrage

Kaufpreis

20.504 m²

Grundstücksfläche

Adresse

66501 Großbundenbach

Preise & Kosten

Kaufpreis
Kaufpreis auf Anfrage
Käufer-Provision
Käufercourtage
3.57% inkl. MwSt. vom Kaufpreis

Angaben zur Immobilie

Objektart
Wohnen
Grundstücksfläche
20.504 m²

Ansprechpartner

Immobilia GmbH

66482 Zweibrücken

Anbieter

Immobilia GmbH IVD

66482 Zweibrücken

Telefon06332/903460
Webhttps://www.facebook.com/ImmobiliaZW/

Bilder

BAUTRÄGER UND INVESTOREN-Bauerwartungsland mit ca. 20.504 m² in Großbundenbach
BAUTRÄGER UND INVESTOREN-Bauerwartungsland mit ca. 20.504 m² in Großbundenbach
BAUTRÄGER UND INVESTOREN-Bauerwartungsland mit ca. 20.504 m² in Großbundenbach