Hallen/Lager/Produktion, Miete, Saarbrücken
Immobilienportal-saarland.de
Logistik- und Gewerbefläche mit 14 Überladebrücken – flexibel teilbar

Logistik- und Gewerbefläche mit 14 Überladebrücken – flexibel teilbar

Objektbeschreibung

Highlights im Überblick

* Ca. 3.904 m² Hallenfläche

* Ca. 443 m² Bürofläche zur zusätzlichen Anmietung vorhanden

* 14 Überladebrücken + überdachte Rampe

* Andienung von mehreren Seiten möglich

* Flexible Teilungs- und Nutzungsmöglichkeiten

* Renovierte WC-Anlagen, sowie ein Büroraum inklusive



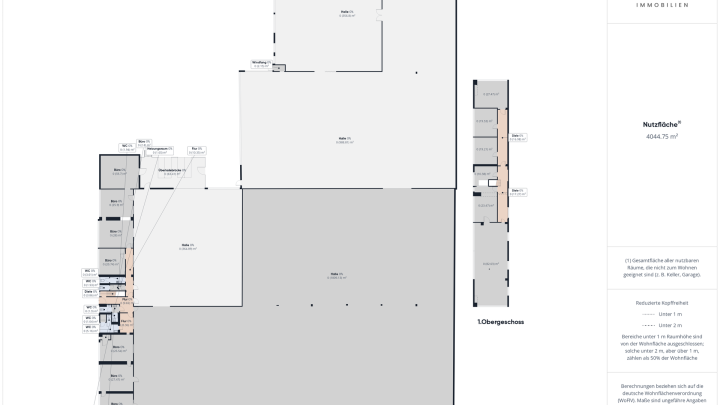
Zur Vermietung steht eine großzügige und vielseitig nutzbare Gewerbeimmobilie in verkehrsgünstiger Lage von Saarbrücken-Güdingen. Die Gesamtfläche umfasst rund 3.904 m² Hallenfläche sowie zusätzlich 443 m² Bürofläche, verteilt auf Erd- und Obergeschoss.



Die Hallenflächen gliedern sich wie folgt:



Halle II–III: ca. 2.372 m²

* Von zwei Seiten andienbar

* Insgesamt 14 Überladebrücken

* Überdachte Rampe



Halle IV–V: ca. 1.532 m²

* Eine Seite mit Überladebrücke

* Eine Seite mit fester Rampe



Die Andienungssituation eignet sich ideal für Logistik-, Umschlags- oder Produktionsbetriebe mit hohem Warenaufkommen. Durch die beidseitige Erschließung sind effiziente Betriebsabläufe gewährleistet.

Die Büroflächen im Erdgeschoss (ca. 215 m²) und Obergeschoss (ca. 228 m²) bieten ausreichend Raum für Verwaltung, Disposition oder Sozialräume. Die Renovierung der WC-Anlagen sowie eines Büroraums ist bereits in der kalkulierten Miete enthalten. Weitere Büroflächen werden bei Bedarf instandgesetzt; die hierfür entstehenden Kosten werden fair auf die Miete umgelegt. Individuelle Mieterwünsche hinsichtlich Ausstattung oder Qualitätsstandard können – soweit technisch umsetzbar – berücksichtigt werden.

Die Hallenflächen sind nicht beheizt. Die Büroeinheiten verfügen über eine Gasheizung und sind somit ganzjährig nutzbar.

Zudem besteht eine Teilungsmöglichkeit der Flächen, sodass unterschiedliche Nutzungskonzepte realisierbar sind.

Die Gesamtmiete für die Hallenflächen inkl. einer renovierten WC-Anlage sowie einem Büroraum beträgt 10.000,00 € netto kalt pro Monat.

Lage

Lage & Umfeld:

Unmittelbare Autobahnanbindung: Der Gewerbepark befindet sich direkt an der Ausfahrt Güdingen und liegt nur etwa 700 m von der A 620 entfernt. Die Anbindung an das nationale sowie internationale Autobahnnetz (Richtungen Saarbrücken, Paris, Luxemburg, Kaiserslautern, Trier) ist optimal.

Vielfältiges Branchenmix: Im Gebiet Neumühler Weg haben sich zahlreiche Gewerbe ansässig gemacht – von Großhändlern wie Würth, Bechtle, Jungheinrich, HKL Baumaschinen über Handwerksbetriebe, Logistiker bis hin zu Freizeit- und Einzelhandelsangeboten.

Verkehrsanbindung

Schnell erreichbar per PKW: Dank der kurzen Distanz zur A 620 und Anschlussmöglichkeiten zur A 1, A 6, A 8 und A 623, ist eine hervorragende Erreichbarkeit für Mitarbeiter, Kund:innen oder Lieferanten gegeben.

Regionale Netzanbindung: Schnellzugänge ermöglichen komfortable Fahrten ins Saarland sowie ins benachbarte Frankreich und Luxemburg – optimal für regional ausgerichtete Firmen.

Infrastruktur & Nachbarschaft:

Gemischte Nutzung: Neben reinen Gewerbebetrieben finden sich auch Anbieter aus Freizeitbereich (z. B. Indoor-Spielplatz „Neue Kinderwelt“) sowie Transport- und Maschinenunternehmen.

Infrastruktur: Die Nähe zu namenhaften Firmen wie Jungheinrich (Neumühler Weg 14) und HKL Baumaschinen (Neumühler Weg 75) signalisiert zuverlässige Betreiberstruktur und gute technische Grundversorgung vor Ort.

Eignung für Gewerbliche Nutzung:

Die Lage ist besonders geeignet für Logistik‑, Handels‑, Service‑, Beratungs‑ und Handwerksunternehmen, aber auch für Unternehmen aus dem Dienstleistungsbereich, die Wert auf repräsentative und verkehrsgünstig angebundene Flächen legen.

Im Gewerbepark finden sich Gebäude verschiedenster Flächengrößen – von einzelnen Büroetagen bis zu Hallen‐, Lager‐ und Werkstattflächen –, was Flexibilität bei der Standortwahl bietet.

Sonstiges

10.000 €

Kaltmiete

3.904 m²

Gesamtfläche

Adresse

66130 Saarbrücken

Preise & Kosten

Kaltmiete
10.000 €
Mieter-Provision
Mietercourtage
3 Monatskaltmieten zzgl. MwSt.
Courtage
Die Maklerprovision in Höhe von 3 Monatskaltmieten zzgl. MwSt. ist mit Abschluss des Mietvertrages verdient und fällig. Die Höhe der Bruttocourtage unterliegt einer Anpassung bei Steuer-Satzänderung.

Angaben zur Immobilie

Objektart
Speditionslager
Gesamtfläche
3.904 m²

Ansprechpartner

Kessel & Naumann Immobilien

Anbieter

Kessel & Naumann Immobilien

66292 Riegelsberg

Telefon068069140780
E-MailDiese E-Mail-Adresse ist vor Spambots geschützt! Zur Anzeige muss JavaScript eingeschaltet sein.
Webhttps://kessel-naumann.de

Bilder

Logistik- und Gewerbefläche mit 14 Überladebrücken – flexibel teilbar
Logistik- und Gewerbefläche mit 14 Überladebrücken – flexibel teilbar
Logistik- und Gewerbefläche mit 14 Überladebrücken – flexibel teilbar
Logistik- und Gewerbefläche mit 14 Überladebrücken – flexibel teilbar
Logistik- und Gewerbefläche mit 14 Überladebrücken – flexibel teilbar
Logistik- und Gewerbefläche mit 14 Überladebrücken – flexibel teilbar
Logistik- und Gewerbefläche mit 14 Überladebrücken – flexibel teilbar
Logistik- und Gewerbefläche mit 14 Überladebrücken – flexibel teilbar
Logistik- und Gewerbefläche mit 14 Überladebrücken – flexibel teilbar
Logistik- und Gewerbefläche mit 14 Überladebrücken – flexibel teilbar
Logistik- und Gewerbefläche mit 14 Überladebrücken – flexibel teilbar
Logistik- und Gewerbefläche mit 14 Überladebrücken – flexibel teilbar
Logistik- und Gewerbefläche mit 14 Überladebrücken – flexibel teilbar
Logistik- und Gewerbefläche mit 14 Überladebrücken – flexibel teilbar
Logistik- und Gewerbefläche mit 14 Überladebrücken – flexibel teilbar
Logistik- und Gewerbefläche mit 14 Überladebrücken – flexibel teilbar
Logistik- und Gewerbefläche mit 14 Überladebrücken – flexibel teilbar
Logistik- und Gewerbefläche mit 14 Überladebrücken – flexibel teilbar
Logistik- und Gewerbefläche mit 14 Überladebrücken – flexibel teilbar
Logistik- und Gewerbefläche mit 14 Überladebrücken – flexibel teilbar
Logistik- und Gewerbefläche mit 14 Überladebrücken – flexibel teilbar
Logistik- und Gewerbefläche mit 14 Überladebrücken – flexibel teilbar
Logistik- und Gewerbefläche mit 14 Überladebrücken – flexibel teilbar
Logistik- und Gewerbefläche mit 14 Überladebrücken – flexibel teilbar
Logistik- und Gewerbefläche mit 14 Überladebrücken – flexibel teilbar
Logistik- und Gewerbefläche mit 14 Überladebrücken – flexibel teilbar
Logistik- und Gewerbefläche mit 14 Überladebrücken – flexibel teilbar
Logistik- und Gewerbefläche mit 14 Überladebrücken – flexibel teilbar
Logistik- und Gewerbefläche mit 14 Überladebrücken – flexibel teilbar