Haus, Kauf, Sankt Ingbert
Immobilienportal-saarland.de
Historisches 2-3 Familienhaus mit Ausbaupotential zur Kernsanierung

Historisches 2-3 Familienhaus mit Ausbaupotential zur Kernsanierung

Objektbeschreibung

In bevorzugter, ruhiger aber zentraler Lage der Kreisstadt St. Ingbert befindet sich dieses historisch ansprechende Haus.



Seit einigen Jahren leerstehend, bietet es dem zukünftigen Eigentümer im Rahmen einer notwendigen Kernsanierung die Option der Nutzung als Mehrfamilienhaus mit bis zu 3 Wohneinheiten oder auch die Möglichkeit der Nutzung als Einfamilienhaus für die große Familie.



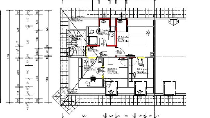
Die dargestellten Grundrisse stellen die Möglichkeiten nach einem Umbau dar, entsprechende Planungen dazu sind bereits vorhanden.



Gerne sprechen wir mit Ihnen en detail über die Immobilie oder zeigen Ihnen diese im Rahmen eines Vor-Ort-Termins.



Bitte übermitteln Sie uns dazu bei einer Anfrage auch Ihre vollständigen Kontaktdaten.



Vielen Dank.

Lage

St. Ingbert als Tor zur Biosphärenregion Bliesgau bietet eine hohe Wohn-und Lebensqualität.



Die Kreisstadt bietet alle Einrichtungen des öffentlichen Lebens, eine hervorragende Anbindung an die Universität des Saarlandes, an die Autobahn A6 Richtung Mannheim oder Saarbrücken und ist Sitz zahlreicher renommierter Unternehmen wie SAP oder dem Fraunhofer Institut.



Nicht zuletzt die Entwicklung des "Cispa" (Helmholtz-Zentrum) sorgt dafür, dass sich St. Ingbert zu einem bevorzugten Lebensmittelpunkt für Arbeitnehmer und Familien im Herzen des Saarlandes entwickelt.



Entspannte kurze Wege zu allen wichtigen Einrichtungen des öffentlichen und sozialen Lebens, gute Kitas, Grund- und weiterführende Schulen, tragen zu dieser Entwicklung bei.

Sonstiges

Selbstverständlich stehen wir Ihnen gerne mit weiteren Objektinformationen und für Besichtigungen zur Verfügung.



Alle im Exposé genannten Objektangaben und Informationen beruhen auf Angaben des Auftraggebers. Für die Richtigkeit und Vollständigkeit wird keine Haftung übernommen.



Hinweis zum Energieausweis:

Wir weisen alle Auftraggeber auf die aktuellen gesetzlichen Regelungen zur Vorlage eines Energieausweises hin. Im Einzelfalle ist der Ausweis zum Zeitpunkt der Erstellung des Exposé in Bearbeitung, also noch nicht erstellt und wird später nachgereicht. Wir bitten dies zu entschuldigen.

Ergänzender Hinweis: Ein übergebener Energieausweis stellt keine Beschaffenheitsvereinbarung dar. Unser Haftungsauschluss bezieht sich auch auf die darin enthaltenen Daten.



Die Pflichten nach dem Geldwäschegesetz (GwG)

• Der Gesetzgeber schreibt vor, dass Vertragspartner vor der Begründung einer Geschäftsbeziehung zu identifizieren sind. (§3 GwG). Immobilienmakler haben diese Sorgfaltspflicht einzuhalten. Die Identifizierung des Kaufinteressenten durch den Immobilienmakler muss erfolgt sein, bevor die Aufnahme der Kaufvertragsverhandlungen ermöglicht wird.

• Bei der Identifizierung sind entweder Name, Geburtsdatum und –Ort, Staatsangehörigkeit, Anschrift, Personalausweisnummer und ausstellende Behörde festzuhalten oder es ist der Ausweis zu kopieren.

• Darüber hinaus hat der Makler zu klären, ob der Kunde im eigenen wirtschaftlichen Interesse handelt oder für einen Dritten.

• Festgehalten werden muss auch, ob es sich bei dem Vertragspartner und ggf. wirtschaftlichen Berechtigten um eine Politisch exponierte Person (PeP) handelt.

• Als Kunde sind Sie verpflichtet, dem Immobilienmakler den Ausweis vorzulegen und die entsprechenden Auskünfte zu erteilen (§4 Abs. 6 GwG)

Bitte helfen Sie Ihrem Immobilienmakler dabei, die gesetzlichen Pflichten nach dem Geldwäschegesetz zu erfüllen.

• Zeigen Sie uns bitte Ihren Personalausweis und ermöglichen damit die vorgeschriebene Dokumentation.

209.000 €

Kaufpreis

6

Anzahl Zimmer

4

Anzahl Schlafzimmer

175 m²

Wohnfläche

271 m²

Grundstücksfläche

Adresse

66386 Sankt Ingbert

Preise & Kosten

Kaufpreis
209.000 €
Käufercourtage
3,57 % des Kaufpreises

Angaben zur Immobilie

Objektart
Mehrfamilienhaus
Grundstücksfläche
271 m²
Anzahl Zimmer
6
Anzahl Schlafzimmer
4
Anzahl Badezimmer
2
Anzahl separate WCs
1
Anzahl Balkone
1
Wohnfläche
175 m²
Nutzfläche
60 m²
Baujahr
1920
Zustand des Objektes
Teil bzw. Vollrenovierungsbedürftig
Verfügbar ab
Sofort

Ausstattung

Unterkellert
Ja

Zentrale, ruhige, Lage in St. Ingbert

Ausbaupotential als 2-3 Familienhaus mit Stellplätzen

Umbaupläne bereits vorhanden

Ansprechpartner

Sascha Hertel

Eichenlaub & Dumont Immobilien e.K.

Anbieter

Eichenlaub & Dumont Immobilien e.K.

66133 Saarbrücken

Telefon0681 - 855 486
E-MailDiese E-Mail-Adresse ist vor Spambots geschützt! Zur Anzeige muss JavaScript eingeschaltet sein.
Webhttps://www.eichenlaub-dumont.de

Bilder

Historisches 2-3 Familienhaus mit Ausbaupotential zur Kernsanierung
Historisches 2-3 Familienhaus mit Ausbaupotential zur Kernsanierung
Historisches 2-3 Familienhaus mit Ausbaupotential zur Kernsanierung
Historisches 2-3 Familienhaus mit Ausbaupotential zur Kernsanierung
Historisches 2-3 Familienhaus mit Ausbaupotential zur Kernsanierung
Historisches 2-3 Familienhaus mit Ausbaupotential zur Kernsanierung
Historisches 2-3 Familienhaus mit Ausbaupotential zur Kernsanierung
Historisches 2-3 Familienhaus mit Ausbaupotential zur Kernsanierung
Historisches 2-3 Familienhaus mit Ausbaupotential zur Kernsanierung
Historisches 2-3 Familienhaus mit Ausbaupotential zur Kernsanierung
Historisches 2-3 Familienhaus mit Ausbaupotential zur Kernsanierung
Historisches 2-3 Familienhaus mit Ausbaupotential zur Kernsanierung
Historisches 2-3 Familienhaus mit Ausbaupotential zur Kernsanierung
Historisches 2-3 Familienhaus mit Ausbaupotential zur Kernsanierung
Historisches 2-3 Familienhaus mit Ausbaupotential zur Kernsanierung
Historisches 2-3 Familienhaus mit Ausbaupotential zur Kernsanierung
Historisches 2-3 Familienhaus mit Ausbaupotential zur Kernsanierung
Historisches 2-3 Familienhaus mit Ausbaupotential zur Kernsanierung
Historisches 2-3 Familienhaus mit Ausbaupotential zur Kernsanierung
Historisches 2-3 Familienhaus mit Ausbaupotential zur Kernsanierung
Historisches 2-3 Familienhaus mit Ausbaupotential zur Kernsanierung
Historisches 2-3 Familienhaus mit Ausbaupotential zur Kernsanierung
Historisches 2-3 Familienhaus mit Ausbaupotential zur Kernsanierung