Haus, Kauf, Spiesen - Elversberg
Immobilienportal-saarland.de
Attraktives Reihenmittelhaus als alternative zur Eigentumswohnung mit Balkon und Terrasse in Spiesen

Attraktives Reihenmittelhaus als alternative zur Eigentumswohnung mit Balkon und Terrasse in Spiesen

Objektbeschreibung

Zum Verkauf steht ein gepflegtes Reihenmittelhaus aus dem Baujahr ca. 1940 in hervorragender, zentraler Lage von Spiesen-Elversberg. Die Immobilie bietet auf drei Ebenen großzügigen Wohnraum sowie flexible Nutzungsmöglichkeiten und eignet sich ideal für Familien oder Paare mit Platzbedarf.



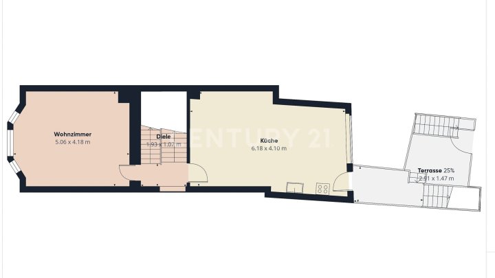
Im Erdgeschoss befinden sich der Zugang zum Haus, der Heizungsraum sowie zwei Abstellräume. Über das Treppenhaus gelangt man in das Obergeschoss, wo der Hauptwohnbereich liegt. Hier eröffnet sich eine großzügige Küche mit einem großen Essbereich; zusätzlich steht ein großes Wohnzimmer zur Verfügung. Weiterhin gibt es drei weitere Räume, die flexibel als Schlafzimmer, Kinder- bzw. Gästezimmer oder Büro genutzt werden können.



Zur Ausstattung gehören zwei Tageslichtbäder: Das eine Bad liegt unmittelbar neben dem Elternschlafzimmer und verfügt über Dusche und WC; das andere ist ein großes Master-Badezimmer mit Badewanne und Dusche, welches zusätzlichen Komfort bietet. Hinter dem Haus befindet sich ein kleiner Balkon, und über eine kleine Treppe erreicht man eine sonnige Dachterrasse, die sich ideal zum Relaxen oder für Terrasse-Aktivitäten eignet.



Der Zustand der Immobilie ist gepflegt, wobei Raum für individuelle Modernisierungen besteht. Die große Küche mit Essbereich eröffnet kreative offene Wohnkonzepte. Die zwei Tageslichtbäder erhöhen den Wohnkomfort und die Alltagsfreundlichkeit. Die sonnigen Außenflächen, bestehend aus Balkon und der hochgelegten Sonnenterrasse, ergänzen das Raumangebot ideal.



Die zentrale Lage in Spiesen-Elversberg gewährleistet unmittelbare Nähe zu Einkaufsmöglichkeiten, Schulen, Kindergärten und weiteren Infrastrukturangeboten. Die Anbindung an öffentliche Verkehrsmittel ist gut, und kurze Wege führen zu lokalen Einrichtungen.



Dieses Reihenmittelhaus vereint historischen Charme mit modernem Wohnkomfort und bietet auf drei Ebenen großzügige Wohnflächen sowie flexible Nutzungsmöglichkeiten. Es eignet sich besonders für Familien, die zentral wohnen möchten und gleichzeitig viel Gestaltungsspielraum suchen.

Lage

Spiesen-Elversberg liegt 1 km südwestlich der Kreisstadt Neunkirchen, 2 km nördlich von St. Ingbert, 3 Lage:

Spiesen-Elversberg ist eine saarländische Gemeinde im Landkreis Neunkirchen, rund 15 km nordöstlich von Saarbrücken.



Stadtteile:km nördlich vom St. Ingberter Stadtteil Rohrbach und 2 km östlich von Friedrichsthal. Die Gemeinde gliedert sich in die Ortsteile Spiesen und Elversberg.















Geschichte:

Das Gebiet wurde bereits in vorgeschichtlicher Zeit besiedelt. Zur Römerzeit befanden sich im Ortsteil Spiesen Waldbauernhöfe, mehrere Heiligtümer nebst Gräberfeld und eine Villa Rustica am Freidelbrunnen. Im Jahr 1800 wurde eine neue katholische Kirche, 1803 ein dazugehöriges Pfarrhaus erbaut. 1813 wurde die Spieser Mühle errichtet.

1872 wurde durch eine Kabinettsorder von König Wilhelm I. von Preußen aus gleich großen Bannteilen der Gemeinden Neunkirchen und Spiesen eine neue Gemeinde unter dem Namen „Elversberg“ gebildet.

Der Galgenbergturm ist das wichtigste Symbol der Gemeinde Spiesen-Elversberg. Er wurde in den Jahren 1937 bis 1939 zur Zeit des Nationalsozialismus von Elversberger Bürgern auf Spieser Grund gebaut und am 8. Juli 1939 als Adolf-Hitler-Turm eingeweiht.



Verkehr:

Spiesen-Elversberg ist durch die Bundesstraße 41, sowie durch die A8 an das überregionale Straßennetz angebunden.

In Spiesen-Elversberg findet man alle Geschäfte des täglichen Bedarfs, Ärzte und Apotheke, sowie Kindergärten, Grund- und Hauptschule.

Sonstiges

Gerne stellen wir Ihnen das Objekt im Zuge einer Besichtigung vor.

Sämtliche Angaben zu diesem Objekt dienen einer ersten Information.



Das Exposé zu diesem Angebot und die darin gemachten Angaben in Wort und Bild und Werten stellen keine Beschaffenheitsvereinbarung dar.



Wert- und Maßangaben sind lediglich ca.-Werte.

CENTURY 21 Homes & Castles übernimmt keine Haftung für die vorliegenden Angaben.

Die Aufteilung entnehmen Sie bitte den beigefügten Grundrissskizzen (unverbindliche Illustration).

Alle Angaben beruhen auf uns vorliegenden Informationen des Auftraggebers nach bestem Wissen und Gewissen.



Das Geldwäschegesetz (GWG) verpflichtet uns, mit Erstkontaktaufnahme Ihre vollständigen Kontaktdaten aufzunehmen.

Daher können wir nur Anfragen bearbeiten, die Ihren vollständigen Namen, Ihre Anschrift und Ihre Telefonnummer enthalten. Hierfür bitten wir höflich um Ihr Verständnis.



Mit Ihrer Erstkontaktaufnahme erhalten Sie von uns auch die Information zu Ihrem gesetzlichen Widerrufsrecht.



Nach Erhalt Ihrer schriftlichen Anfrage, setzen wir uns kurzfristig mit Ihnen in Verbindung zwecks Terminvereinbarung.

119.900 €

Kaufpreis

4

Anzahl Zimmer

130 m²

Wohnfläche

105 m²

Grundstücksfläche

Adresse

66583 Spiesen - Elversberg

Preise & Kosten

Kaufpreis
119.900 €
IST Periode
Monat
Käufercourtage
3.57%
Innencourtage
3.57%
Courtage
Die Käuferprovision beträgt 3,57 % des Kaufpreises inkl. 19% MwSt.

Angaben zur Immobilie

Objektart
Reihenmittel
Grundstücksfläche
105 m²
Größe Balkon/Terrasse
15 m²
Anzahl Terrassen
1
Anzahl Zimmer
4
Anzahl Balkone
1
Wohnfläche
130 m²
Nutzfläche
30 m²
Baujahr
1940
Zustand des Objektes
Gepflegt
Verfügbar ab
15.09.2025

EnergieausweisG

0
>250
Endenergiebedarf
231.95 kWh/(a·m²)
Energieausweis
Bedarf
Endenergiebedarf
231.95
Baujahr lt. Energieausweis
1940
Erstellungsdatum
Ausgestellt ab dem 01.05.2014
Energieeffizenzklasse
G
Primärenergieträger
GAS

Ausstattung

Küche
Einbauküche
heizungsart
Zentralheizung
befeuerung
Gas
Unterkellert
Ja

+ Haus: Massiv gebaut ca. 1940

+ Grundstück: 105m²

+ Wohnfläche: Ca. 130m²

+ Zimmer: 4 Zimmer, eine große Küche und 2 Bäder

+ Böden: Laminat und Fliesen

+ Fenster: Einfach und 2- Fach verglast aus unterschiedlichen Baujahren.

+ Bad: Im Haus befinden sich 2 Tageslichtbadezimmer, ein kleineres neben dem Eltern- Schlafzimmer mit Dusche und WC und ein großes Badezimmer im OG mit Wanne und Dusche.

+ Dach: Satteldach in gutem Allgemeinzustand

+ Keller: Das Haus hat im Erdgeschoss einen Heizungsraum mit Möglichkeit zur Installation für Waschmaschine und Trockner, und 2 weitere Kellerabstellräume.

+ Terrasse: Hinter dem Haus befindet sich eine ca. 15m² große Terrasse zum gemütlichen Verweilen bei schönem Wetter.

Ansprechpartner

Marc Werth

CENTURY 21 Homes & Castles

Anbieter

CENTURY21

66111 Saarbrücken

Telefon0681/59095360
E-MailDiese E-Mail-Adresse ist vor Spambots geschützt! Zur Anzeige muss JavaScript eingeschaltet sein.

Bilder

Attraktives Reihenmittelhaus als alternative zur Eigentumswohnung mit Balkon und Terrasse in Spiesen
Attraktives Reihenmittelhaus als alternative zur Eigentumswohnung mit Balkon und Terrasse in Spiesen
Attraktives Reihenmittelhaus als alternative zur Eigentumswohnung mit Balkon und Terrasse in Spiesen
Attraktives Reihenmittelhaus als alternative zur Eigentumswohnung mit Balkon und Terrasse in Spiesen
Attraktives Reihenmittelhaus als alternative zur Eigentumswohnung mit Balkon und Terrasse in Spiesen
Attraktives Reihenmittelhaus als alternative zur Eigentumswohnung mit Balkon und Terrasse in Spiesen
Attraktives Reihenmittelhaus als alternative zur Eigentumswohnung mit Balkon und Terrasse in Spiesen
Attraktives Reihenmittelhaus als alternative zur Eigentumswohnung mit Balkon und Terrasse in Spiesen
Attraktives Reihenmittelhaus als alternative zur Eigentumswohnung mit Balkon und Terrasse in Spiesen
Attraktives Reihenmittelhaus als alternative zur Eigentumswohnung mit Balkon und Terrasse in Spiesen
Attraktives Reihenmittelhaus als alternative zur Eigentumswohnung mit Balkon und Terrasse in Spiesen
Attraktives Reihenmittelhaus als alternative zur Eigentumswohnung mit Balkon und Terrasse in Spiesen
Attraktives Reihenmittelhaus als alternative zur Eigentumswohnung mit Balkon und Terrasse in Spiesen
Attraktives Reihenmittelhaus als alternative zur Eigentumswohnung mit Balkon und Terrasse in Spiesen
Attraktives Reihenmittelhaus als alternative zur Eigentumswohnung mit Balkon und Terrasse in Spiesen
Attraktives Reihenmittelhaus als alternative zur Eigentumswohnung mit Balkon und Terrasse in Spiesen
Attraktives Reihenmittelhaus als alternative zur Eigentumswohnung mit Balkon und Terrasse in Spiesen
Attraktives Reihenmittelhaus als alternative zur Eigentumswohnung mit Balkon und Terrasse in Spiesen
Attraktives Reihenmittelhaus als alternative zur Eigentumswohnung mit Balkon und Terrasse in Spiesen
Attraktives Reihenmittelhaus als alternative zur Eigentumswohnung mit Balkon und Terrasse in Spiesen
Attraktives Reihenmittelhaus als alternative zur Eigentumswohnung mit Balkon und Terrasse in Spiesen
Attraktives Reihenmittelhaus als alternative zur Eigentumswohnung mit Balkon und Terrasse in Spiesen
Attraktives Reihenmittelhaus als alternative zur Eigentumswohnung mit Balkon und Terrasse in Spiesen
Attraktives Reihenmittelhaus als alternative zur Eigentumswohnung mit Balkon und Terrasse in Spiesen
Attraktives Reihenmittelhaus als alternative zur Eigentumswohnung mit Balkon und Terrasse in Spiesen
Attraktives Reihenmittelhaus als alternative zur Eigentumswohnung mit Balkon und Terrasse in Spiesen
Attraktives Reihenmittelhaus als alternative zur Eigentumswohnung mit Balkon und Terrasse in Spiesen
Attraktives Reihenmittelhaus als alternative zur Eigentumswohnung mit Balkon und Terrasse in Spiesen
Attraktives Reihenmittelhaus als alternative zur Eigentumswohnung mit Balkon und Terrasse in Spiesen
Attraktives Reihenmittelhaus als alternative zur Eigentumswohnung mit Balkon und Terrasse in Spiesen