Haus, Kauf, Konz
Immobilienportal-saarland.de
Ansprechend renovierter Altbau mit Potential zum Mehrfamilienhaus in Konz-Karthaus

Ansprechend renovierter Altbau mit Potential zum Mehrfamilienhaus in Konz-Karthaus

Objektbeschreibung

Dieses ansprechend renovierte Zweifamilienhaus aus der Bauzeit um ungefähr 1900 in Konz-Karthaus begeistert mit modernem Wohnkomfort, flexibler Raumaufteilung und zahlreichen Nutzungsmöglichkeiten. Ob als Mehrgenerationenhaus, Kapitalanlage oder Wohnen & Arbeiten unter einem Dach – hier eröffnen sich viele Optionen. Das großzügige Grundstück mit separatem Lagergebäude und zahlreichen Außenstellplätzen rundet das attraktive Gesamtpaket ab.





Objektbeschreibung



Dieses ansprechend renovierte Zweifamilienhaus in Konz-Karthaus überzeugt durch seine vielseitigen Nutzungsmöglichkeiten und den modernen Ausstattungsstandard.



Aktuell verfügt das Haus über zwei Wohneinheiten, wobei sich durch die baulichen Gegebenheiten mit überschaubarem Aufwand auch eine dritte Einheit realisieren ließe (vorbehaltlich der Genehmigung eines entsprechenden Bauantrags).



Aufteilung:

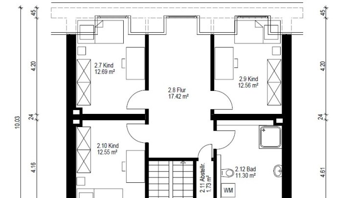
- Erdgeschoss: 3 Zimmer (davon 2 Durchgangszimmer), Küche, Tageslicht-Duschbad, Gäste-WC im Treppenhaus

- Obergeschoss: 2 Zimmer, Küche, Tageslicht-Duschbad en Suite, Gäste-WC

- Dachgeschoss: 3 Zimmer, großzügiger zentraler Flur, Tageslicht-Duschbad



Das Grundstück ist von zwei Straßen aus zugänglich und bietet dadurch eine komfortable Erreichbarkeit. Hinter dem Haupthaus befindet sich zudem ein separates Lagergebäude.



Ein weiteres Highlight sind die zahlreichen Außenstellplätze, die vielseitige Nutzungsmöglichkeiten – sowohl für Bewohner als auch für Gäste oder Kunden – eröffnen.



Das Haus wurde 2023 umfassend renoviert und modernisiert:

- Austausch sämtlicher Fenster (3-fach verglast)

- Erneuerung der Gas-Zentralheizung

- Komplette Modernisierung der Elektrik

- Zwei neuwertige Einbauküchen, bereits im Kaufpreis enthalten

Dank dieser Modernisierungen präsentiert sich die Immobilie in einem gepflegten und sofort bezugsfertigen Zustand.



Erdgeschoss und Dachgeschoss sind aktuell vermietet.

Lage

Konz ist ein an Saar und Mosel gelegener, staatlich anerkannter Fremdenverkehrsort mit ca. 18.000 Einwohnern. Durch seine Lage direkt an Mosel- und Saar-Radweg und die kurze Distanz zu Trier, ebenso wie die gute Anbindung an das benachbarte Luxembourg bietet Konz einen optimalen Standort für Beruf und Freizeit.



Hier stehen zahlreiche Einrichtungen des täglichen Bedarfs zur Verfügung. Es gibt u.a. Einkaufsmöglichkeiten, Ärzte, Kitas, Grund- und weiterführende Schulen, Sportstätten inkl. eines neuen Hallenbades, Restaurants u.v.m.



Nach Trier gelangt man in ca. 7 km. Bis zur luxemburgischen Grenze sind es ungefähr 13 km und zum nächstgelegenen Flughafen Luxemburg 33 km.



Über seine verschiedenen Bahnhöfe ist Konz per Regionalbahn gut mit Saarburg, Trier und Saarbrücken verbunden.





Mikrolage



Die Immobilie liegt zentral im Konzer Stadtteil Karthaus und ist von zwei Straßen aus erreichbar. In Karthaus gibt es eine gute lokale Infrastruktur mit Geschäften, Dienstleistern u.v.m. Die Kita befindet sich in nur 400 m Entfernung, genauso wie die Grundschule oder das Seniorenzentrum.



Weitere Einrichtungen des täglichen Bedarfs wie z.B. Supermärkte, Apotheken, Haus- und Fachärzte Banken, weiterführende Schulen etc. bietet das Konzer Stadtzentrum, das ebenfalls weniger als 2 km entfernt liegt.



Den Bahnhof Kreuz Konz, der an der Strecke Luxemburg-Koblenz liegt, erreicht man von der angebotenen Immobilie aus in nur ca. 1 km; eine Bushaltestelle in ca. 230 m.

Sonstiges

499.000 €

Kaufpreis

7

Anzahl Zimmer

200 m²

Wohnfläche

616 m²

Grundstücksfläche

Adresse

54329 Konz

Preise & Kosten

Kaufpreis
499.000 €
Kaufpreis pro Fläche
2.499 € (m²)
Käufer-Provision
Käufercourtage
3,57%
Courtage
Die vom Käufer zu zahlende Maklerprovision für den Nachweis der Gelegenheit zum Abschluss oder die Vermittlung eines Kaufvertrages beträgt 3,57 Prozent inkl. der gesetzlichen Mehrwertsteuer, bemessen auf den Vertragswert. Die Provision ist verdient, fällig und zahlbar bei Kaufvertragsabschluss. Die Besichtigung einer angebotenen Immobilie oder die Aufnahme von Verhandlungen mit dem Verkäufer sind gleichbedeutend mit der Anerkennung unserer Geschäftsbedingungen.

Angaben zur Immobilie

Objektart
Zweifamilienhaus
Grundstücksfläche
616 m²
Anzahl Zimmer
7
Wohnfläche
200 m²

EnergieausweisF

Energieverbrauchskennwert
190.5 kWh / (a·m²)
0
>250
Gebäudeart
Wohnimmobilie
Energieausweis
Verbrauch
Gültig bis
15.09.2035
Energieverbrauchskennwert
190.5
Erstellungsdatum
Ausgestellt ab dem 01.05.2014
Ausstelldatum
16.09.2025
Energieeffizenzklasse
F
Primärenergieträger
Erdgas schwer

Ausstattung

Küche
Einbauküche
heizungsart
Zentralheizung
befeuerung
Gas
Gäste-WC
Unterkellert
Ja

Ansprechpartner

Melanie Weicherding

Anbieter

Immobilien Weicherding - Your Home Now

Bilder

Ansprechend renovierter Altbau mit Potential zum Mehrfamilienhaus in Konz-Karthaus
Ansprechend renovierter Altbau mit Potential zum Mehrfamilienhaus in Konz-Karthaus
Ansprechend renovierter Altbau mit Potential zum Mehrfamilienhaus in Konz-Karthaus
Ansprechend renovierter Altbau mit Potential zum Mehrfamilienhaus in Konz-Karthaus
Ansprechend renovierter Altbau mit Potential zum Mehrfamilienhaus in Konz-Karthaus
Ansprechend renovierter Altbau mit Potential zum Mehrfamilienhaus in Konz-Karthaus
Ansprechend renovierter Altbau mit Potential zum Mehrfamilienhaus in Konz-Karthaus
Ansprechend renovierter Altbau mit Potential zum Mehrfamilienhaus in Konz-Karthaus
Ansprechend renovierter Altbau mit Potential zum Mehrfamilienhaus in Konz-Karthaus
Ansprechend renovierter Altbau mit Potential zum Mehrfamilienhaus in Konz-Karthaus
Ansprechend renovierter Altbau mit Potential zum Mehrfamilienhaus in Konz-Karthaus
Ansprechend renovierter Altbau mit Potential zum Mehrfamilienhaus in Konz-Karthaus
Ansprechend renovierter Altbau mit Potential zum Mehrfamilienhaus in Konz-Karthaus
Ansprechend renovierter Altbau mit Potential zum Mehrfamilienhaus in Konz-Karthaus
Ansprechend renovierter Altbau mit Potential zum Mehrfamilienhaus in Konz-Karthaus
Ansprechend renovierter Altbau mit Potential zum Mehrfamilienhaus in Konz-Karthaus
Ansprechend renovierter Altbau mit Potential zum Mehrfamilienhaus in Konz-Karthaus
Ansprechend renovierter Altbau mit Potential zum Mehrfamilienhaus in Konz-Karthaus
Ansprechend renovierter Altbau mit Potential zum Mehrfamilienhaus in Konz-Karthaus
Ansprechend renovierter Altbau mit Potential zum Mehrfamilienhaus in Konz-Karthaus
Ansprechend renovierter Altbau mit Potential zum Mehrfamilienhaus in Konz-Karthaus
Ansprechend renovierter Altbau mit Potential zum Mehrfamilienhaus in Konz-Karthaus
Ansprechend renovierter Altbau mit Potential zum Mehrfamilienhaus in Konz-Karthaus
Ansprechend renovierter Altbau mit Potential zum Mehrfamilienhaus in Konz-Karthaus
Ansprechend renovierter Altbau mit Potential zum Mehrfamilienhaus in Konz-Karthaus
Ansprechend renovierter Altbau mit Potential zum Mehrfamilienhaus in Konz-Karthaus
Ansprechend renovierter Altbau mit Potential zum Mehrfamilienhaus in Konz-Karthaus
Ansprechend renovierter Altbau mit Potential zum Mehrfamilienhaus in Konz-Karthaus
Ansprechend renovierter Altbau mit Potential zum Mehrfamilienhaus in Konz-Karthaus
Ansprechend renovierter Altbau mit Potential zum Mehrfamilienhaus in Konz-Karthaus
Ansprechend renovierter Altbau mit Potential zum Mehrfamilienhaus in Konz-Karthaus
Ansprechend renovierter Altbau mit Potential zum Mehrfamilienhaus in Konz-Karthaus
Ansprechend renovierter Altbau mit Potential zum Mehrfamilienhaus in Konz-Karthaus