Haus, Kauf, Schmelz / Hüttersdorf
Immobilienportal-saarland.de
SCHMELZ-HÜTTERSDORF: WOHNHAUS IN RUHIGER LAGE MIT GROSSEM GARTEN!

SCHMELZ-HÜTTERSDORF: WOHNHAUS IN RUHIGER LAGE MIT GROSSEM GARTEN!

Objektbeschreibung

SCHMELZ-HÜTTERSDORF:

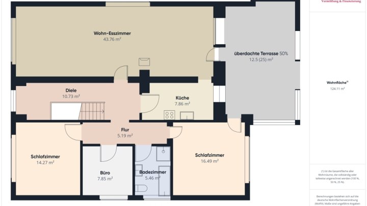
Dieses Einfamilienhaus bietet viel Platz und eine durchdachte Aufteilung über zwei Ebenen. Im Erdgeschoss erwarten Sie ein offener Wohn-Essbereich mit Kaminofen sowie der Zugang zur ca. 25 m² großen, überdachten Terrasse mit Außenkamin, eine Küche, zwei Schlafzimmer, ein Büro, ein Badezimmer sowie Diele und Flur.



Im Untergeschoss stehen zwei Hobbyräume, zwei Kellerräume, ein Heizungsraum, ein Öllagerraum, ein weiterer Flur sowie eine integrierte Garage zur Verfügung.



Der Garten mit kleinem Teich bietet nach etwas Pflege viel Potenzial zum Verweilen und Entspannen. Für Fahrzeuge sind eine Garage, ein Carport und 2–3 Freiplätze vorhanden.



Ein Haus mit viel Raum für individuelle Nutzung in ruhiger Umgebung.

Lage

Hüttersdorf ist ein Ortsteil der Gemeinde Schmelz im Landkreis Saarlouis, Saarland. In Hüttersdorf befindet sich eine Grundschule. Weiterführende Schulen sind in der nahegelegenen Stadt Schmelz erreichbar. Geschäfte für den täglichen Bedarf und größere Einkaufsmärkte befinden sich in unmittelbarer Nähe.



20 km bis D-Saarlouis

45 km bis L-Schengen

45 km bis D-Saarbrücken

Sonstiges

Unser gesamtes Immobilienangebot können Sie unter www.immobilien-bart.de einsehen.



Haben wir Ihr Interesse geweckt? Für einen unverbindlichen Besichtigungstermin stehen wir Ihnen nach vorheriger Terminabsprache gerne zur Verfügung. Bitte haben Sie Verständnis dafür, dass wir Anfragen nur bearbeiten, wenn uns der vollständige Name, die Postanschrift und eine Rufnummer mitgeteilt wird. Ihre Daten werden selbstverständlich streng vertraulich und nur für diese Anfrage verwendet.



Sie möchten diese Immobilie finanzieren?

Vereinbaren Sie mit uns einen Beratungstermin, natürlich kostenfrei und unverbindlich. Aus einem Pool von 100 Banken finden wir, auch für Sie, die passende Finanzierung!



Die Käuferprovision beträgt 3,57 % inkl. MwSt. vom notariell beurkundeten Kaufpreis und ist verdient und fällig mit der notariellen Beurkundung.



Haftungsvorbehalt: Sämtliche Angaben erhielten wir vom Eigentümer und geben diese ohne Haftung weiter. Irrtum und Zwischenverkauf bleiben vorbehalten.

199.800 €

Kaufpreis

6

Anzahl Zimmer

2

Anzahl Schlafzimmer

164,32 m²

Wohnfläche

805 m²

Grundstücksfläche

Adresse

66839 Schmelz / Hüttersdorf

Preise & Kosten

Kaufpreis
199.800 €
Freiplätze
3
Garagen
1
Carports
1
Käufercourtage
3,57 % inkl. MwSt

Angaben zur Immobilie

Objektart
Einfamilienhaus
Grundstücksfläche
805 m²
Anzahl Terrassen
1
Anzahl Zimmer
6
Anzahl Schlafzimmer
2
Anzahl Badezimmer
1
Stellplätze
5
Wohnfläche
164,32 m²
Baujahr
1975
Zustand des Objektes
Gepflegt

EnergieausweisG

0
>250
Endenergiebedarf
216.82 kWh/(a·m²)
Gebäudeart
Wohnimmobilie
Energieausweis
Bedarf
Gültig bis
2035-09-03
Endenergiebedarf
216.82
Baujahr lt. Energieausweis
2003
Erstellungsdatum
Ausgestellt ab dem 01.05.2014
Energieeffizenzklasse
G
Primärenergieträger
OEL

Ausstattung

Boden
Fliesen, Teppich, Laminat
heizungsart
Zentralheizung
befeuerung
Öl

Die Böden sind mit Fliesen und Laminat belegt.

Die Beheizung erfolgt durch eine Öl-Zentralheizung und durch einen Kaminofen.

Besonderheiten:

- Garage, Carport und 2- 3 Freiplätze

- große überdachte Terrasse (ca. 25 m²) mit Kamin

- Garten mit kleinem Teich

- Kaminofen im Wohnbereich

Ansprechpartner

Sebastian Junk

Immobilien Bart GmbH

Anbieter

Immobilien Bart GmbH

66706 Perl-Nennig

Telefon06867 56 10 333
E-MailDiese E-Mail-Adresse ist vor Spambots geschützt! Zur Anzeige muss JavaScript eingeschaltet sein.
Webhttps://www.immobilien-bart.de/

Bilder

SCHMELZ-HÜTTERSDORF: WOHNHAUS IN RUHIGER LAGE MIT GROSSEM GARTEN!
SCHMELZ-HÜTTERSDORF: WOHNHAUS IN RUHIGER LAGE MIT GROSSEM GARTEN!
SCHMELZ-HÜTTERSDORF: WOHNHAUS IN RUHIGER LAGE MIT GROSSEM GARTEN!
SCHMELZ-HÜTTERSDORF: WOHNHAUS IN RUHIGER LAGE MIT GROSSEM GARTEN!
SCHMELZ-HÜTTERSDORF: WOHNHAUS IN RUHIGER LAGE MIT GROSSEM GARTEN!
SCHMELZ-HÜTTERSDORF: WOHNHAUS IN RUHIGER LAGE MIT GROSSEM GARTEN!
SCHMELZ-HÜTTERSDORF: WOHNHAUS IN RUHIGER LAGE MIT GROSSEM GARTEN!
SCHMELZ-HÜTTERSDORF: WOHNHAUS IN RUHIGER LAGE MIT GROSSEM GARTEN!
SCHMELZ-HÜTTERSDORF: WOHNHAUS IN RUHIGER LAGE MIT GROSSEM GARTEN!
SCHMELZ-HÜTTERSDORF: WOHNHAUS IN RUHIGER LAGE MIT GROSSEM GARTEN!
SCHMELZ-HÜTTERSDORF: WOHNHAUS IN RUHIGER LAGE MIT GROSSEM GARTEN!
SCHMELZ-HÜTTERSDORF: WOHNHAUS IN RUHIGER LAGE MIT GROSSEM GARTEN!
SCHMELZ-HÜTTERSDORF: WOHNHAUS IN RUHIGER LAGE MIT GROSSEM GARTEN!
SCHMELZ-HÜTTERSDORF: WOHNHAUS IN RUHIGER LAGE MIT GROSSEM GARTEN!
SCHMELZ-HÜTTERSDORF: WOHNHAUS IN RUHIGER LAGE MIT GROSSEM GARTEN!
SCHMELZ-HÜTTERSDORF: WOHNHAUS IN RUHIGER LAGE MIT GROSSEM GARTEN!
SCHMELZ-HÜTTERSDORF: WOHNHAUS IN RUHIGER LAGE MIT GROSSEM GARTEN!
SCHMELZ-HÜTTERSDORF: WOHNHAUS IN RUHIGER LAGE MIT GROSSEM GARTEN!