Sprache auswählen
779.800 €
Kaufpreis6
Anzahl Zimmer5
Anzahl Schlafzimmer188 m²
Wohnfläche4.000 m²
Grundstücksfläche66706 Perl
FREUDENBURG, am Fuße des 439 m hohen Eiderbergs gelegen, ist eine Ortsgemeinde im Landkreis Trier-Saarburg in Rheinland-Pfalz. Der Ort gehört der Verbandsgemeinde Saarburg an. Südlich des Hauptortes verläuft die Landesgrenze zum Saarland. Freudenburg verfügt über einen Kindergarten und eine Grundschule. Zahlreiche Sport- und Kulturvereine bieten verschiedenste Anregungen. Die Umgebung verfügt über eine große Anzahl von Wanderwegen.
Die Luxemburger Landesgrenze liegt etwa 15 Fahrminuten entfernt. Bushaltestellen für die grenzüberschreitende Busverbindung "SaarLuxBus" befinden sich in Orscholz, Saarburg oder Nennig.
In der nahe gelegenen Stadt Saarburg finden Sie alle Schularten, ein ausgeprägtes Gesundheitswesen und gute Einkaufsmöglichkeiten.
11 km bis D-Saarburg
32 km bis D-Trier
15 km bis L-Remich/Schengen
37 km bis L-Kirchberg
FREUDENBURG: 15 MIN. BIS L-REMICH/L-SCHENGEN
Wir freuen uns, Ihnen dieses nicht alltägliche Angebot vorstellen zu können. Dieser Bauernhof wurde in den letzten 14 Jahren ständig renoviert und befindet sich in einem TOP-ZUSTAND. Gerne besichtigen wir dieses besondere Anwesen mit Ihnen!
BESONDERHEITEN DIESER IMMOBILIE:
- Heizung: neue Scheitholz/- und Öl-Zentralheizung (auf Pelletheizung nachrüstbar)
- große Stallungen und Scheunen
- gepflegtes Anwesen
- verfügbar nach Vereinbarung
Die Raumaufteilung des Wohnhauses ist wie folgt:
Erdgeschoss:
Flur, Wohn-/Esszimmer, Gäste-WC, Büro/Schlafzimmer, Abstellraum, Küche, Waschraum mit Zugang zu den zu den Stallungen, Terrasse und Hinterhaus
Obergeschoss:
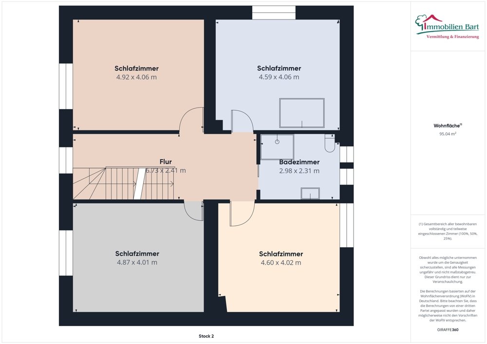
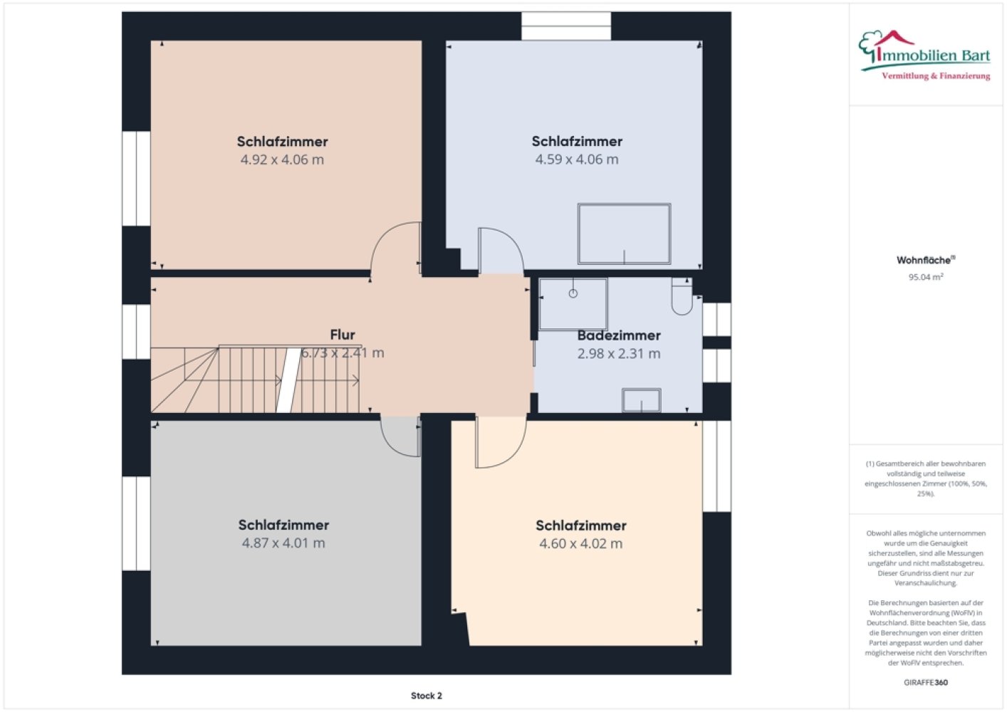
Flur, Badezimmer, 3 Schlafzimmer
Dachgeschoss:
sehr hoher Speicher
Kellergeschoss:
Diele, Allzweckraum, 6 Kellerräume, Heizungsraum mit Holzlager- und Öllagerraum, Diele mit Zugang zu zwei großen Garagen
Die Raumaufteilung des Anbaus ist wie folgt:
Erdgeschoss: Waschküche, Stall
Obergeschoss: Tenne
Kellergeschoss: Waschküche, Garage (Platz für 4 PKW)
Scheune: 2 Zimmer, WC, Ställe, Tenne
Unser gesamtes Immobilienangebot können Sie unter www.immobilien-bart.de einsehen.
Haben wir Ihr Interesse geweckt? Für einen unverbindlichen Besichtigungstermin stehen wir Ihnen nach vorheriger Terminabsprache gerne zur Verfügung. Bitte haben Sie Verständnis dafür, dass wir Anfragen nur bearbeiten, wenn uns der vollständige Name, die Postanschrift und eine Rufnummer mitgeteilt wird. Ihre Daten werden selbstverständlich streng vertraulich und nur für diese Anfrage verwendet.
Sie möchten diese Immobilie finanzieren?
Vereinbaren Sie mit uns einen Beratungstermin, natürlich kostenfrei und unverbindlich. Aus einem Pool von 100 Banken finden wir, auch für Sie, die passende Finanzierung!
Die Käuferprovision beträgt 3,57 % inkl. MwSt. vom notariell beurkundeten Kaufpreis und ist verdient und fällig mit der notariellen Beurkundung.
Haftungsvorbehalt: Sämtliche Angaben erhielten wir vom Eigentümer und geben diese ohne Haftung weiter. Irrtum und Zwischenverkauf bleiben vorbehalten.
Die Böden sind mit Fliesen und Laminat belegt.
Die Beheizung erfolgt durch eine Scheitholz/- und Öl-Heizung.
Ansprechpartner
Immobilien Bart GmbH
Anbieter
66706 Perl-Nennig
Aktivieren Sie den Suchagenten und Sie erhalten die neuesten Angebote zu Ihrer Suche sofort und kostenlos per E-Mail. Sie können Ihren Suchauftrag jederzeit bearbeiten oder beenden.
Suchagenten jetzt aktivieren! Neue Angebote erhalten
Immobilienportal-saarland.de © 2025 | Alle Rechte vorbehalten