Haus, Kauf, Perl / Nennig
Immobilienportal-saarland.de
PERL: 3 WOHNUNGEN + 2 BAUGRUNDSTÜCKE (17 AR) GRENZE L-REMICH

PERL: 3 WOHNUNGEN + 2 BAUGRUNDSTÜCKE (17 AR) GRENZE L-REMICH

Objektbeschreibung

Herzlich willkommen in Perl-NENNIG! Hier bieten wir Ihnen ein Wohnhaus mit ca. 160 m² Wohnfläche und zwei separate Wohnungen (mit 70 m² und 80 m² Wohnfläche) an.



Dieses Angebot verspricht vielfältige Möglichkeiten, da das Haupthaus einen großzügigen Lebensraum bietet und sich die beiden zusätzlichen Wohnungen perfekt vermieten lassen.



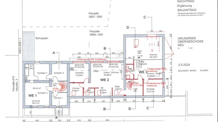
Die Raumaufteilung des Hauses im Erdgeschoss ergibt sich wie folgt:

Flur, Wohnzimmer, Esszimmer mit Zugang zum Garten, Küche, Flur mit Zugang zu den Garagen sowie Zugang zum Garten



Obergeschoss:

Flur, 3 Schlafzimmer (zwei davon mit Zugang zum Bad), Flur mit Zugang zu einer Wohnung



Dachgeschoss:

2 Schlafzimmer



Nebengebäude Erdgeschoss:

2 Garagen, Zugang zu den beiden Wohnungen



Die Aufteilung der beiden Wohnungen ist wie folgt:

Flur, Wohn-/Essbereich mit Küche, Schlafzimmer, Badezimmer

Lage

Nennig ist ein Ortsteil der Gemeinde Perl im Landkreis Merzig-Wadern, direkt vis-à-vis zu L-Remich. Ein Kindergarten bzw. Kita liegen im Ortskern. Die Moselpromenade auf deutscher und auf luxemburgischer Seite lädt zu vielen Freizeitaktivitäten ein. Es bestehen regelmäßige Busverbindungen nach Perl sowie nach Luxemburg. Die Autobahnanbindungen Saarbrücken /Luxemburg sind ca. 5 Autominuten entfernt. Zugverbindungen nach Trier und Frankreich sind fußläufig zu erreichen.

Der Ort Perl liegt ca. 10 Fahrminuten entfernt und weist sich mit einer intakten Infrastruktur wie z.B. mit zahlreichen größeren Einkaufsmärkten, Schulen, u.a. die grenzüberschreitende Gemeinschaftsschule "Schengen-Lyzeum", aus.



06 km bis D-Perl

48 km bis D-Trier

02 km bis L-Remich

28 km bis L-Kirchberg

Sonstiges

Unser gesamtes Immobilienangebot können Sie unter www.immobilien-bart.de einsehen.



Haben wir Ihr Interesse geweckt? Für einen unverbindlichen Besichtigungstermin stehen wir Ihnen nach vorheriger Terminabsprache gerne zur Verfügung. Bitte haben Sie Verständnis dafür, dass wir Anfragen nur bearbeiten, wenn uns der vollständige Name, die Postanschrift und eine Rufnummer mitgeteilt wird. Ihre Daten werden selbstverständlich streng vertraulich und nur für diese Anfrage verwendet.



Sie möchten diese Immobilie finanzieren?

Vereinbaren Sie mit uns einen Beratungstermin, natürlich kostenfrei und unverbindlich. Aus einem Pool von 100 Banken finden wir, auch für Sie, die passende Finanzierung!



Die Käuferprovision beträgt 3,57 % inkl. MwSt. vom notariell beurkundeten Kaufpreis und ist verdient und fällig mit der notariellen Beurkundung.



Haftungsvorbehalt: Sämtliche Angaben erhielten wir vom Eigentümer und geben diese ohne Haftung weiter. Irrtum und Zwischenverkauf bleiben vorbehalten.

794.800 €

Kaufpreis

10

Anzahl Zimmer

7

Anzahl Schlafzimmer

310 m²

Wohnfläche

1.700 m²

Grundstücksfläche

Adresse

66706 Perl / Nennig

Preise & Kosten

Kaufpreis
794.800 €
Käufercourtage
3,57 % inkl. MwSt.

Angaben zur Immobilie

Objektart
Einfamilienhaus
Grundstücksfläche
1.700 m²
Anzahl Zimmer
10
Anzahl Schlafzimmer
7
Anzahl Badezimmer
3
Wohnfläche
310 m²

Ausstattung

Boden
Fliesen, Teppich, Laminat
heizungsart
Zentralheizung
befeuerung
Öl

Die Böden sind mit Fliesen, Laminat und Teppich belegt.

Die Beheizung erfolgt durch eine Ölzentralheizung.

Der Energieausweis ist in Bearbeitung.

Besonderheiten:

- sonnige, sehr ruhige Wohnlage

- direkt an der luxemburgischen Grenze

- Wohnhaus mit Platz für die Familie

- 2 Wohnungen mit 70 m² und 80 m²

- gesamte Grundstücksgröße ca. 17 Ar

- sofort verfügbar

Ansprechpartner

Klaus Bart

Immobilien Bart GmbH

Anbieter

Immobilien Bart GmbH

66706 Perl-Nennig

Telefon06867 56 10 333
E-MailDiese E-Mail-Adresse ist vor Spambots geschützt! Zur Anzeige muss JavaScript eingeschaltet sein.
Webhttps://www.immobilien-bart.de/

Bilder

PERL: 3 WOHNUNGEN + 2 BAUGRUNDSTÜCKE (17 AR) GRENZE L-REMICH
PERL: 3 WOHNUNGEN + 2 BAUGRUNDSTÜCKE (17 AR) GRENZE L-REMICH
PERL: 3 WOHNUNGEN + 2 BAUGRUNDSTÜCKE (17 AR) GRENZE L-REMICH
PERL: 3 WOHNUNGEN + 2 BAUGRUNDSTÜCKE (17 AR) GRENZE L-REMICH
PERL: 3 WOHNUNGEN + 2 BAUGRUNDSTÜCKE (17 AR) GRENZE L-REMICH
PERL: 3 WOHNUNGEN + 2 BAUGRUNDSTÜCKE (17 AR) GRENZE L-REMICH
PERL: 3 WOHNUNGEN + 2 BAUGRUNDSTÜCKE (17 AR) GRENZE L-REMICH
PERL: 3 WOHNUNGEN + 2 BAUGRUNDSTÜCKE (17 AR) GRENZE L-REMICH
PERL: 3 WOHNUNGEN + 2 BAUGRUNDSTÜCKE (17 AR) GRENZE L-REMICH
PERL: 3 WOHNUNGEN + 2 BAUGRUNDSTÜCKE (17 AR) GRENZE L-REMICH
PERL: 3 WOHNUNGEN + 2 BAUGRUNDSTÜCKE (17 AR) GRENZE L-REMICH
PERL: 3 WOHNUNGEN + 2 BAUGRUNDSTÜCKE (17 AR) GRENZE L-REMICH
PERL: 3 WOHNUNGEN + 2 BAUGRUNDSTÜCKE (17 AR) GRENZE L-REMICH
PERL: 3 WOHNUNGEN + 2 BAUGRUNDSTÜCKE (17 AR) GRENZE L-REMICH
PERL: 3 WOHNUNGEN + 2 BAUGRUNDSTÜCKE (17 AR) GRENZE L-REMICH
PERL: 3 WOHNUNGEN + 2 BAUGRUNDSTÜCKE (17 AR) GRENZE L-REMICH
PERL: 3 WOHNUNGEN + 2 BAUGRUNDSTÜCKE (17 AR) GRENZE L-REMICH
PERL: 3 WOHNUNGEN + 2 BAUGRUNDSTÜCKE (17 AR) GRENZE L-REMICH
PERL: 3 WOHNUNGEN + 2 BAUGRUNDSTÜCKE (17 AR) GRENZE L-REMICH