Haus, Kauf, Mettlach / Orscholz
Immobilienportal-saarland.de
GRENZNÄHE: GEPFLEGTES WOHNHAUS MIT 4 GARAGEN IN TOP WOHNLAGE

GRENZNÄHE: GEPFLEGTES WOHNHAUS MIT 4 GARAGEN IN TOP WOHNLAGE

Objektbeschreibung

10 MIN. VON L-REMICH/SCHENGEN: ORSCHOLZ



Inmitten einer naturnahen und beliebten Wohnlage präsentiert sich dieses großzügige Einfamilienhaus als wahres Raumwunder mit vielfältigen Nutzungsmöglichkeiten. Das im Jahr 1973 erbaute Haus überzeugt mit einer Wohnfläche von ca. 255 m², verteilt auf zwei Etagen – ideal für größere Familien oder Paare mit Platzbedarf für Wohnen, Arbeiten und Freizeit unter einem Dach.



Mit insgesamt vier gut geschnittenen Schlafzimmern, mehreren Wohn- und Aufenthaltsräumen sowie einem Sommergarten, der ganzjährig als gemütlicher Rückzugsort dient, bietet diese Immobilie höchsten Wohnkomfort. Die großzügige Raumaufteilung erlaubt individuelle Gestaltungsideen – ob offene Wohnkonzepte, Homeoffice-Bereich oder Hobbyräume.



Das ca. 1.251 m² große Grundstück lädt zum Entspannen im Grünen ein und bietet zudem viel Platz für Gartenliebhaber, spielende Kinder oder gesellige Sommerabende im Freien. Die vier Garagen bieten nicht nur komfortablen Platz für Fahrzeuge, sondern auch zusätzlichen Stauraum.



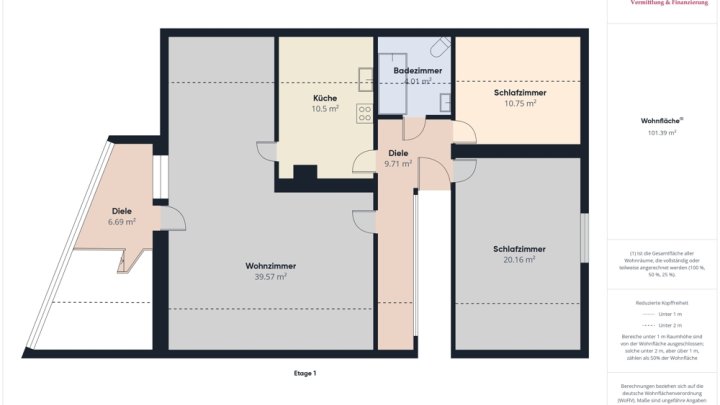
Die Raumaufteilung ist wie folgt:



Erdgeschoss:

Diele, Gäste-WC, Badezimmer, Küche, Wohn-/Esszimmer mit Ausgang zur Terrasse und in den Sommergarten, 2 Schlafzimmer



Obergeschoss:

Diele, Wohn-Esszimmer, Badezimmer, 2 Schlafzimmer



Kellergeschoss:

Diele, Garage, WC, 3 Kellerräume, Heizungsraum, Öllagerraum

Lage

Der Kurort ORSCHOLZ ist der größte Ortsteil der Gemeinde Mettlach im Landkreis Merzig-Wadern. Der heilklimatische Luftkurort Orscholz ist bekannt durch die berühmte Cloef - mit dem einzigartigen Blick auf das Wahrzeichen des Saarlandes - die wunderschöne Saarschleife. Orscholz ist ein idealer Wohnort für Familien mit Kindern. Grundschule, Gesamt- und Gemeinschaftsschule, Kindergarten mit Kita sind vor Ort. Nicht zu vergessen, das bekannte Gesundheitszentrum Saarschleife und die sehr gute Infrastruktur. Grenznah zu L-Remich und L-Schengen.

STÜNDLICHE BUSVERBINDUNGEN NACH LUXEMBURG MIT DEM SAAR-LUX-BUS.

Zum Deutsch-Luxemburgischen Schengen-Lyzeum in Perl besteht eine Busverbindung. Die Autobahnanbindungen Luxemburg und Saarbrücken erreichen Sie in wenigen Fahrminuten.



17 km bis D-Saarburg

19 km bis D-Merzig

14 km bis L-Remich / Schengen

36 km bis L-Kirchberg

Sonstiges

Unser gesamtes Immobilienangebot können Sie unter www.immobilien-bart.de einsehen.



Haben wir Ihr Interesse geweckt? Für einen unverbindlichen Besichtigungstermin stehen wir Ihnen nach vorheriger Terminabsprache gerne zur Verfügung. Bitte haben Sie Verständnis dafür, dass wir Anfragen nur bearbeiten, wenn uns der vollständige Name, die Postanschrift und eine Rufnummer mitgeteilt wird. Ihre Daten werden selbstverständlich streng vertraulich und nur für diese Anfrage verwendet.



Sie möchten diese Immobilie finanzieren?

Vereinbaren Sie mit uns einen Beratungstermin, natürlich kostenfrei und unverbindlich. Aus einem Pool von 100 Banken finden wir, auch für Sie, die passende Finanzierung!



Die Käuferprovision beträgt 3,57 % inkl. MwSt. vom notariell beurkundeten Kaufpreis und ist verdient und fällig mit der notariellen Beurkundung.



Haftungsvorbehalt: Sämtliche Angaben erhielten wir vom Eigentümer und geben diese ohne Haftung weiter. Irrtum und Zwischenverkauf bleiben vorbehalten.

499.800 €

Kaufpreis

6

Anzahl Zimmer

4

Anzahl Schlafzimmer

255 m²

Wohnfläche

1.251 m²

Grundstücksfläche

Adresse

66693 Mettlach / Orscholz

Preise & Kosten

Kaufpreis
499.800 €
Freiplätze
4
Garagen
4
Käufercourtage
3,57 % inkl. MwSt

Angaben zur Immobilie

Objektart
Einfamilienhaus
Grundstücksfläche
1.251 m²
Anzahl Terrassen
1
Anzahl Zimmer
6
Anzahl Schlafzimmer
4
Anzahl Badezimmer
2
Anzahl separate WCs
2
Anzahl Balkone
1
Stellplätze
8
Wohnfläche
255 m²
Nutzfläche
187 m²
Baujahr
1973
Zustand des Objektes
Gepflegt

Ausstattung

Boden
Fliesen, Teppich, Laminat
heizungsart
Zentralheizung
befeuerung
Öl
Unterkellert
teils

Die Böden sind mit Teppich, Laminat und Fliesen belegt.

Die Beheizung erfolgt durch eine Öl-Zentralheizung und Kaminofen.

Der Energieausweis ist in Bearbeitung.

Besonderheiten der Immobilie:

- gepflegter Zustand

- Garten nach Süden ausgerichtet

- PV-Anlage

- großer, gepflegter Garten

- ruhige Lage

- ca. 255 m² Wohnfläche auf zwei Ebenen

- 4 Schlafzimmer

- 4 Garagen und 4 Freiplätze

- Sommergarten

Ansprechpartner

Sebastian Junk

Immobilien Bart GmbH

Anbieter

Immobilien Bart GmbH

66706 Perl-Nennig

Telefon06867 56 10 333
E-MailDiese E-Mail-Adresse ist vor Spambots geschützt! Zur Anzeige muss JavaScript eingeschaltet sein.
Webhttps://www.immobilien-bart.de/

Bilder

GRENZNÄHE: GEPFLEGTES WOHNHAUS MIT 4 GARAGEN IN TOP WOHNLAGE
GRENZNÄHE: GEPFLEGTES WOHNHAUS MIT 4 GARAGEN IN TOP WOHNLAGE
GRENZNÄHE: GEPFLEGTES WOHNHAUS MIT 4 GARAGEN IN TOP WOHNLAGE
GRENZNÄHE: GEPFLEGTES WOHNHAUS MIT 4 GARAGEN IN TOP WOHNLAGE
GRENZNÄHE: GEPFLEGTES WOHNHAUS MIT 4 GARAGEN IN TOP WOHNLAGE
GRENZNÄHE: GEPFLEGTES WOHNHAUS MIT 4 GARAGEN IN TOP WOHNLAGE
GRENZNÄHE: GEPFLEGTES WOHNHAUS MIT 4 GARAGEN IN TOP WOHNLAGE
GRENZNÄHE: GEPFLEGTES WOHNHAUS MIT 4 GARAGEN IN TOP WOHNLAGE
GRENZNÄHE: GEPFLEGTES WOHNHAUS MIT 4 GARAGEN IN TOP WOHNLAGE
GRENZNÄHE: GEPFLEGTES WOHNHAUS MIT 4 GARAGEN IN TOP WOHNLAGE
GRENZNÄHE: GEPFLEGTES WOHNHAUS MIT 4 GARAGEN IN TOP WOHNLAGE
GRENZNÄHE: GEPFLEGTES WOHNHAUS MIT 4 GARAGEN IN TOP WOHNLAGE
GRENZNÄHE: GEPFLEGTES WOHNHAUS MIT 4 GARAGEN IN TOP WOHNLAGE
GRENZNÄHE: GEPFLEGTES WOHNHAUS MIT 4 GARAGEN IN TOP WOHNLAGE
GRENZNÄHE: GEPFLEGTES WOHNHAUS MIT 4 GARAGEN IN TOP WOHNLAGE
GRENZNÄHE: GEPFLEGTES WOHNHAUS MIT 4 GARAGEN IN TOP WOHNLAGE
GRENZNÄHE: GEPFLEGTES WOHNHAUS MIT 4 GARAGEN IN TOP WOHNLAGE
GRENZNÄHE: GEPFLEGTES WOHNHAUS MIT 4 GARAGEN IN TOP WOHNLAGE
GRENZNÄHE: GEPFLEGTES WOHNHAUS MIT 4 GARAGEN IN TOP WOHNLAGE
GRENZNÄHE: GEPFLEGTES WOHNHAUS MIT 4 GARAGEN IN TOP WOHNLAGE
GRENZNÄHE: GEPFLEGTES WOHNHAUS MIT 4 GARAGEN IN TOP WOHNLAGE
GRENZNÄHE: GEPFLEGTES WOHNHAUS MIT 4 GARAGEN IN TOP WOHNLAGE
GRENZNÄHE: GEPFLEGTES WOHNHAUS MIT 4 GARAGEN IN TOP WOHNLAGE
GRENZNÄHE: GEPFLEGTES WOHNHAUS MIT 4 GARAGEN IN TOP WOHNLAGE
GRENZNÄHE: GEPFLEGTES WOHNHAUS MIT 4 GARAGEN IN TOP WOHNLAGE
GRENZNÄHE: GEPFLEGTES WOHNHAUS MIT 4 GARAGEN IN TOP WOHNLAGE
GRENZNÄHE: GEPFLEGTES WOHNHAUS MIT 4 GARAGEN IN TOP WOHNLAGE