10 MIN. VON L-REMICH/SCHENGEN: ORSCHOLZ
Inmitten einer naturnahen und beliebten Wohnlage präsentiert sich dieses großzügige Einfamilienhaus als wahres Raumwunder mit vielfältigen Nutzungsmöglichkeiten. Das im Jahr 1973 erbaute Haus überzeugt mit einer Wohnfläche von ca. 255 m², verteilt auf zwei Etagen – ideal für größere Familien oder Paare mit Platzbedarf für Wohnen, Arbeiten und Freizeit unter einem Dach.
Mit insgesamt vier gut geschnittenen Schlafzimmern, mehreren Wohn- und Aufenthaltsräumen sowie einem Sommergarten, der ganzjährig als gemütlicher Rückzugsort dient, bietet diese Immobilie höchsten Wohnkomfort. Die großzügige Raumaufteilung erlaubt individuelle Gestaltungsideen – ob offene Wohnkonzepte, Homeoffice-Bereich oder Hobbyräume.
Das ca. 1.251 m² große Grundstück lädt zum Entspannen im Grünen ein und bietet zudem viel Platz für Gartenliebhaber, spielende Kinder oder gesellige Sommerabende im Freien. Die vier Garagen bieten nicht nur komfortablen Platz für Fahrzeuge, sondern auch zusätzlichen Stauraum.
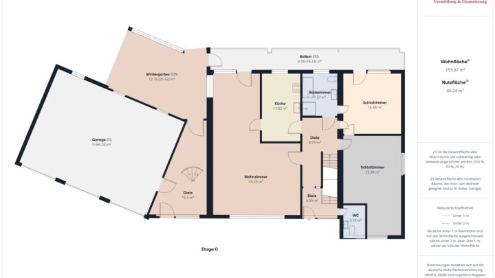
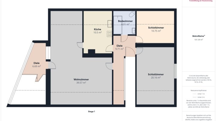
Die Raumaufteilung ist wie folgt:
Erdgeschoss:
Diele, Gäste-WC, Badezimmer, Küche, Wohn-/Esszimmer mit Ausgang zur Terrasse und in den Sommergarten, 2 Schlafzimmer
Obergeschoss:
Diele, Wohn-Esszimmer, Badezimmer, 2 Schlafzimmer
Kellergeschoss:
Diele, Garage, WC, 3 Kellerräume, Heizungsraum, Öllagerraum
Der Kurort ORSCHOLZ ist der größte Ortsteil der Gemeinde Mettlach im Landkreis Merzig-Wadern. Der heilklimatische Luftkurort Orscholz ist bekannt durch die berühmte Cloef - mit dem einzigartigen Blick auf das Wahrzeichen des Saarlandes - die wunderschöne Saarschleife. Orscholz ist ein idealer Wohnort für Familien mit Kindern. Grundschule, Gesamt- und Gemeinschaftsschule, Kindergarten mit Kita sind vor Ort. Nicht zu vergessen, das bekannte Gesundheitszentrum Saarschleife und die sehr gute Infrastruktur. Grenznah zu L-Remich und L-Schengen.
STÜNDLICHE BUSVERBINDUNGEN NACH LUXEMBURG MIT DEM SAAR-LUX-BUS.
Zum Deutsch-Luxemburgischen Schengen-Lyzeum in Perl besteht eine Busverbindung. Die Autobahnanbindungen Luxemburg und Saarbrücken erreichen Sie in wenigen Fahrminuten.
17 km bis D-Saarburg
19 km bis D-Merzig
14 km bis L-Remich / Schengen
36 km bis L-Kirchberg
Unser gesamtes Immobilienangebot können Sie unter www.immobilien-bart.de einsehen.
Haben wir Ihr Interesse geweckt? Für einen unverbindlichen Besichtigungstermin stehen wir Ihnen nach vorheriger Terminabsprache gerne zur Verfügung. Bitte haben Sie Verständnis dafür, dass wir Anfragen nur bearbeiten, wenn uns der vollständige Name, die Postanschrift und eine Rufnummer mitgeteilt wird. Ihre Daten werden selbstverständlich streng vertraulich und nur für diese Anfrage verwendet.
Sie möchten diese Immobilie finanzieren?
Vereinbaren Sie mit uns einen Beratungstermin, natürlich kostenfrei und unverbindlich. Aus einem Pool von 100 Banken finden wir, auch für Sie, die passende Finanzierung!
Die Käuferprovision beträgt 3,57 % inkl. MwSt. vom notariell beurkundeten Kaufpreis und ist verdient und fällig mit der notariellen Beurkundung.
Haftungsvorbehalt: Sämtliche Angaben erhielten wir vom Eigentümer und geben diese ohne Haftung weiter. Irrtum und Zwischenverkauf bleiben vorbehalten.