Haus, Kauf, Riegelsberg
Immobilienportal-saarland.de
Freistehendes 1-FH mit Einliegerwohnung, Garten + 2 Garagen

Freistehendes 1-FH mit Einliegerwohnung, Garten + 2 Garagen

Objektbeschreibung

Willkommen im Herzen von Riegelsberg, wo dieses wunderbare 1-Familienhaus Architektenhaus mit Einliegerwohnung auf Sie wartet.



Ursprünglich in massiver Bauweise 1976 erstellt, war dieses Anwesen immer im Eigentum der Erbauerfamilie.



Mit seiner großzügigen Raumaufteilung und der praktischen Erschließung auf Vorder- und Rückseite des Anwesens, bietet die Immobilie den zukünftigen Eigentümern viel Gestaltungsspielraum und zahlreiche Optionen der weiteren Nutzung.



Sei es die Kombination von Wohnen und Arbeiten, die Gestaltung als Mehrgenerationenhaus, oder die Kombination aus Eigennutzung und Anlageobjekt durch die, an eine sehr zuverlässige Dame, vermietete Einliegerwohnung.



Im EG betritt man das Haus durch die großzügige Diele mit offenem Treppenhaus zum DG und zum UG. Daran anschließend befindet sich eine praktische Garderobennische und das Gäste-WC. Die Küche und das großzügige Wohnzimmer erreicht man ebenfalls über diesen Bereich. Diese beiden Räume bieten einen Zugang zum Kaminzimmer, das mit großen Glasflächen im Stil eines Wintergartens gestaltet ist.



Masterbad, Master Bedroom mit Loggia und zwei weitere Schlafzimmer befinden sich auch auf dieser Ebene.



Im DG erreicht man über die offene Galerie drei weitere Räume, einen davon mit Bad en-suite und einer kleinen Sauna.



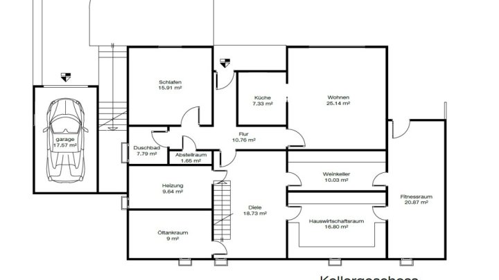
Im UG des Hauses befinden sich die Keller- und Technikräume und die Einliegerwohnung mit separatem Eingang auf der Gebäuderückseite. Ohne größeren Aufwand lässt sich hier auch wieder ein direkter Zugang zur ELW herstellen.



Es gibt zudem zwei Garagen mit jeweilgen Stellplatzmöglichkeiten davor. Eine auf der Ebene des EG und eine, erreichbar über eine Zufahrt neben dem Grundstück, auf der Gebäuderückseite.



Gerne zeigen wir Ihnen diese Immobilie, deren Preis ausdrücklich verhandelbar ist bei einer persönlichen Begehgung, um mit Ihnen alle Optionen der zukünftigen Nutzung nach einer Modernisierung zu besprechen.



Wir freuen uns auf Ihre Anfrage.

Lage

Ursprünglich wurde eine Anhöhe westlich der Straße von Saarbrücken nach Trier als "Riegelsberg" bezeichnet. Dort steht heute der "Hindenburgturm".



Die Gemeinde Riegelsberg gehört heute durch ihre günstige Lage nördlich von Saarbrücken zu den bevorzugten Wohnlagen im Speckgürtel der Landeshauptstadt.



Die Immobilie selbst liegt im Herzen der Gemeinde Riegelsberg und ist nur wenige Gehminuten zu den wichtigsten Einrichtungen wie Supermärkten (ca. 250m), Wochenmarkt (ca. 250m), Ärzte und Apotheke (ca. 250m), Kindergarten (ca. 450m), Grund- und

Gemeinschaftsschule (ca. 400m) entfernt.

Viele Vereine sowie das Freibad Riegelsberg sind ebenfalls fußläufig erreichbar.

Als naturverbundener Mensch kann man es sich in dem wunderbaren Garten gemütlich machen oder eine Wanderung in dem nahen Waldgebiet starten.



Nicht zuletzt durch die verkehrstechnische Anbindung an das Autobahnnetz (A1) oder den Saarbahnanschluss oder durch die intakte Infrastruktur im Ort selbst, findet man hier eine hohe Wohn- und Lebensqualität vor.

Sonstiges

Selbstverständlich stehen wir Ihnen gerne mit weiteren Informationen zum Objekt, sowie für Besichtigungen, auch Samstags oder am frühen Abend, zur Verfügung.



Bei Interesse senden Sie uns bitte eine Anfrage mit Ihren vollständigen Kontaktdaten, inkl. E-Mail Adresse, Anschrift und Telefonnummer.



Alle im Exposé genannten Objektangaben und Informationen beruhen auf Angaben des Auftraggebers. Für die Richtigkeit und Vollständigkeit wird keine Haftung übernommen.



Hinweis zum Energieausweis:

Wir weisen alle Auftraggeber auf die aktuellen gesetzlichen Regelungen zur Vorlage eines Energieausweises hin. Im Einzelfalle ist der Ausweis zum Zeitpunkt der Erstellung des Exposé in Bearbeitung, also noch nicht erstellt und wird später nachgereicht. Wir bitten dies zu entschuldigen.

Ergänzender Hinweis: Ein übergebener Energieausweis stellt keine Beschaffenheitsvereinbarung dar. Unser Haftungsauschluss bezieht sich auch auf die darin enthaltenen Daten. Es besteht keine Garantie auf Vollständigkeit und Richtigkeit des Inhalts.

399.000 €

Kaufpreis

10

Anzahl Zimmer

7

Anzahl Schlafzimmer

303 m²

Wohnfläche

725 m²

Grundstücksfläche

Adresse

Weiherstraße 19
66292 Riegelsberg

Preise & Kosten

Kaufpreis
399.000 €
Freiplätze
4
Garagen
2
Käufercourtage
3,57% inkl. MwSt.

Angaben zur Immobilie

Objektart
Einfamilienhaus
Grundstücksfläche
725 m²
Anzahl Terrassen
1
Anzahl Zimmer
10
Anzahl Schlafzimmer
7
Anzahl Badezimmer
3
Anzahl separate WCs
2
Anzahl Balkone
1
Stellplätze
6
Einliegerwohnung
Wohnfläche
303 m²
Nutzfläche
102 m²
Baujahr
1976
Zustand des Objektes
Gepflegt
Verfügbar ab
Sofort

Karte

Ausstattung

heizungsart
Zentralheizung
befeuerung
Öl
Kabel / Sat- TV
Unterkellert
Ja

Die Ausstattung und der Standard der technischen Gewerke entstammt weitestgehend

dem Baujahr.

Um einem neuen Eigentümer eine bessere Einschätzung der Kosten bei einer (Komplett-)

Sanierung zu vermitteln, liegt zwíschenzeitlich das Angebot eines Generalübernehmers vor,

das bei Bedarf eingesehen werden kann.

Freistehendes hochwertig erbautes Anwesen

Einliegerwohnung (vermietet) mit eigenem Eingang

Hauptwohnung auf zwei Ebenen im EG und DG

Attraktives Grundstück in ruhiger und bevorzugter Lage

Stellplatzmöglichkeiten auf dem Grundstück

2 abgeschlossene Einzelgaragen

Wintergarten mit Kamin

Großzügiger Abstellraum (z.B. für Fahrräder, Skier, etc.) mit ebenerdigem Ausgang

Ansprechpartner

Sascha Hertel

Eichenlaub & Dumont Immobilien e.K.

Anbieter

Eichenlaub & Dumont Immobilien e.K.

66133 Saarbrücken

Telefon0681 - 855 486
E-MailDiese E-Mail-Adresse ist vor Spambots geschützt! Zur Anzeige muss JavaScript eingeschaltet sein.
Webhttps://www.eichenlaub-dumont.de

Bilder

Freistehendes 1-FH mit Einliegerwohnung, Garten + 2 Garagen
Freistehendes 1-FH mit Einliegerwohnung, Garten + 2 Garagen
Freistehendes 1-FH mit Einliegerwohnung, Garten + 2 Garagen
Freistehendes 1-FH mit Einliegerwohnung, Garten + 2 Garagen
Freistehendes 1-FH mit Einliegerwohnung, Garten + 2 Garagen
Freistehendes 1-FH mit Einliegerwohnung, Garten + 2 Garagen
Freistehendes 1-FH mit Einliegerwohnung, Garten + 2 Garagen
Freistehendes 1-FH mit Einliegerwohnung, Garten + 2 Garagen
Freistehendes 1-FH mit Einliegerwohnung, Garten + 2 Garagen
Freistehendes 1-FH mit Einliegerwohnung, Garten + 2 Garagen
Freistehendes 1-FH mit Einliegerwohnung, Garten + 2 Garagen
Freistehendes 1-FH mit Einliegerwohnung, Garten + 2 Garagen
Freistehendes 1-FH mit Einliegerwohnung, Garten + 2 Garagen
Freistehendes 1-FH mit Einliegerwohnung, Garten + 2 Garagen
Freistehendes 1-FH mit Einliegerwohnung, Garten + 2 Garagen
Freistehendes 1-FH mit Einliegerwohnung, Garten + 2 Garagen
Freistehendes 1-FH mit Einliegerwohnung, Garten + 2 Garagen
Freistehendes 1-FH mit Einliegerwohnung, Garten + 2 Garagen
Freistehendes 1-FH mit Einliegerwohnung, Garten + 2 Garagen
Freistehendes 1-FH mit Einliegerwohnung, Garten + 2 Garagen
Freistehendes 1-FH mit Einliegerwohnung, Garten + 2 Garagen
Freistehendes 1-FH mit Einliegerwohnung, Garten + 2 Garagen
Freistehendes 1-FH mit Einliegerwohnung, Garten + 2 Garagen
Freistehendes 1-FH mit Einliegerwohnung, Garten + 2 Garagen
Freistehendes 1-FH mit Einliegerwohnung, Garten + 2 Garagen
Freistehendes 1-FH mit Einliegerwohnung, Garten + 2 Garagen
Freistehendes 1-FH mit Einliegerwohnung, Garten + 2 Garagen
Freistehendes 1-FH mit Einliegerwohnung, Garten + 2 Garagen
Freistehendes 1-FH mit Einliegerwohnung, Garten + 2 Garagen
Freistehendes 1-FH mit Einliegerwohnung, Garten + 2 Garagen
Freistehendes 1-FH mit Einliegerwohnung, Garten + 2 Garagen
Freistehendes 1-FH mit Einliegerwohnung, Garten + 2 Garagen
Freistehendes 1-FH mit Einliegerwohnung, Garten + 2 Garagen
Freistehendes 1-FH mit Einliegerwohnung, Garten + 2 Garagen
Freistehendes 1-FH mit Einliegerwohnung, Garten + 2 Garagen
Freistehendes 1-FH mit Einliegerwohnung, Garten + 2 Garagen
Freistehendes 1-FH mit Einliegerwohnung, Garten + 2 Garagen
Freistehendes 1-FH mit Einliegerwohnung, Garten + 2 Garagen
Freistehendes 1-FH mit Einliegerwohnung, Garten + 2 Garagen
Freistehendes 1-FH mit Einliegerwohnung, Garten + 2 Garagen
Freistehendes 1-FH mit Einliegerwohnung, Garten + 2 Garagen