Haus, Kauf, Überherrn / Felsberg
Immobilienportal-saarland.de
Großzügiges Architektenhaus mit Einliegerwohnung und Weitblick über das Saartal zu verkaufen

Großzügiges Architektenhaus mit Einliegerwohnung und Weitblick über das Saartal zu verkaufen

Objektbeschreibung

Dieses großzügige Architektenhaus in Oberfelsberg, Nähe Saarlouis, bietet einen Ort an dem Ruhe, Raum und Raffinesse aufeinandertreffen. Dieses außergewöhnliche Anwesen wurde 2001 erbaut, 2022 umfassend modernisiert und bietet heute ein luxuriöses Wohngefühl auf ca. 430 m2 Wohnfläche - eingebettet in ein ca. 4.400 m2 großes Grundstück mit Weitblick über das Saartal.



Ob als Mehrgenerationenhaus, großzügiger Familienwohnsitz oder stilvolle Kombination aus Leben und Arbeiten - hier erwarten Sie Wohnmöglichkeiten, die Individualität und Komfort vereinen.



Highlights auf einen Blick:

- Sonnige, unverbaubare Hanglage mit Weitblick über das Saartal

- Separate Einliegerwohnung mit eigenem Eingang - ideal für Gäste, Familie oder zur Vermietung

- Großzügiger Wellnessbereich mit Sauna, Sonnenbank & Whirlpool

- Exklusives Bad en Suite und klimatisierte Räume

- Gepflegter Garten mit Gartenhaus, Pool und mehreren Terrassen

- Zwei hochwertige Einbauküchen, Galerie-Bereich, Kachelofen & viel Stauraum

- Moderne Ausstattung: Alarmanlage, Solaranlage, Wallbox, Doppelgarage mit direktem Zugang ins Haus



Raumaufteilung:

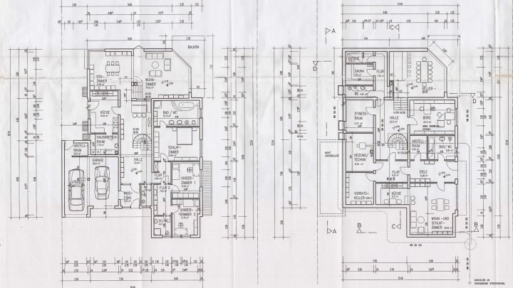
Im Erdgeschoss empfängt Sie ein repräsentativer Eingangsbereich, der einen stilvollen ersten Eindruck vermittelt. Das großzügige und lichtdurchflutete Wohn- und Esszimmer beeindruckt mit großen Schiebe-Panoramafenstern, die für eine helle und offene Wohnatmosphäre sorgen, sowie einem eindrucksvollen Kamin, der an kühleren Tagen für behagliche Wärme sorgt. Die angrenzende Küche ist mit einer Einbauküche ausgestattet und bietet zudem einen direkten Zugang zum Garten. Ebenfalls auf dieser Ebene befindet sich das Elternschlafzimmer mit einem komfortablen Bad en Suite, in welchem sich ein Whirlpool und eine Dusche befinden. Ergänzt wird das Raumangebot durch ein weiteres Kinder- oder Gästezimmer, das über eine praktische Ankleide sowie ein eigenes Bad verfügt. Von der Garage besteht ein direkter Zugang in das Erdgeschoss.



Das Dachgeschoss bietet eine offene Galerie, die sich ideal als Arbeits- oder Lesebereich nutzen lässt und dem Haus zusätzliche Großzügigkeit verleiht. Hier kann ein weiterer Balkon genutzt werden, von welchem man die Aussicht noch besser genießen kann.



Im Untergeschoss stehen weitere vielseitig nutzbare Räume zur Verfügung. Hier befindet sich eine separate Einliegerwohnung mit eigener Küche und Bad, die sich hervorragend für Gäste, Familienangehörige oder auch zur Vermietung eignet. Darüber hinaus lädt ein Wellnessbereich mit Sauna und Sonnenbank zum Entspannen ein. Ergänzt wird diese Ebene durch einen großzügigen Raum, der beispielsweise als Hobby- oder Fitnessraum genutzt werden kann sowie einen praktischen HWR.



Besonders erwähnenswert:

- Die Immobilie wurde 2022 umfassend renoviert - bezugsfertig ohne weiteren Aufwand

- Durch die Einliegerwohnung ergeben sich attraktive Mieteinnahmen oder flexible Nutzungsmöglichkeiten

- Ruhige Lage, dennoch gute Anbindung nach Saarlouis, Saarbrücken & Luxemburg - ideal für Berufspendler oder Grenzgänger





Weitere aktuelle Angebote finden Sie auf unserer Webseite:

www.schaeferimmosaar.de

Lage

Diese Immobile befindet sich in Felsberg, einem Ortsteil der Gemeinde Überherrn im Landkreis Saarlouis.



Felsberg verfügt über eine gute Verkehrsanbindung. Die nahegelegenen Autobahnen A8 und A620 bieten schnelle Verbindungen in die umliegenden Städte wie Saarbrücken, nach Luxemburg und Frankreich. Zudem ist die Gemeinde durch gut ausgebaute Landesstraßen mit den benachbarten Gemeinden und Städten verbunden. Öffentliche Verkehrsmittel, wie Buslinien, gewährleisten eine bequeme Anbindung an das regionale Verkehrsnetz. Die Innenstadt von Saarlouis kann ebenfalls in weniger als 10 min mit dem Auto erreicht werden.



In Felsberg und den umliegenden Ortschaften finden Sie alle notwendigen Einrichtungen des täglichen Bedarfs. Es gibt mehrere Supermärkte, Bäckereien, Metzgereien und Einzelhandelsgeschäfte. Auch Apotheken, Ärzte, Kindergärten und Schulen sind in unmittelbarer Nähe vorzufinden.



Die bedeutende Sehenswürdigkeit in Felsberg ist die sogenannte "Teufelsburg", von der man einen genauso schönen Fernblick genießen kann, wie von dieser exklusiven Immobilie selbst.

Sonstiges

Besichtigungstermine:

Gerne stellen wir auf Anfrage weitere Unterlagen zu diesem Objekt zur Verfügung und vereinbaren einen Besichtigungstermin mit Ihnen.



Nehmen Sie gerne Kontakt mit uns auf, unter der Telefonnummer 06831 / 50 845 18 oder auch per Mail.



Wir freuen uns auf Ihre Anfrage!





Provisionshinweis:

Käuferprovision: 2,975 % inkl. gesetzlicher MwSt.

Der Maklervertrag mit uns kommt durch die Besichtigung der Inanspruchnahme unserer Maklertätigkeit in Textform zustande, wie z.B. insbesondere die Unterschrift des Besichtigungsnachweises, des Maklervertrages und/oder des Objekt-Exposés.



Die Höhe der Courtage richtet sich nach den ab dem 23.12.2020 in Kraft getretenen gesetzlichen Regelungen zur Teilung der Maklercourtage. Hiernach wird die Courtage für beide Parteien (Eigentümer und Käufer) 2,975 % inkl. gesetzlicher MwSt. auf den Kaufpreis betragen und ist bei notariellem Vertrag verdient und fällig. Die Höhe der Bruttocourtage unterliegt einer Anpassung bei Steuersatzänderung.



Die Grunderwerbssteuer, Notar- und Grundbuchkosten sind vom Käufer zu tragen.





Haftungsausschluss:

Die in diesem Exposé enthaltenen Angaben sind vertraulich zu behandeln. Die Weitergabe an Dritte ist unzulässig. Alle Angaben stammen vom Verkäufer. Die Firma Schäfer Immobilien übernimmt daher keine Haftung für die Richtigkeit der Angaben. Insbesondere die Angaben zur Wohnfläche, zur Nutzfläche und zur Aufteilung der Wohn-/Nutzfläche sind von uns nicht durch ein eigenes Aufmaß oder eine Wohnflächenberechnung kontrolliert worden. Die Angaben zum Baujahr sind nicht durch eine Einsicht in die Bauakte überprüft worden. Das Angebot ist freibleibend. Irrtum und Zwischenverkauf vorbehalten.

799.000 €

Kaufpreis

8

Anzahl Zimmer

6

Anzahl Schlafzimmer

430 m²

Wohnfläche

4.400 m²

Grundstücksfläche

Adresse

66802 Überherrn / Felsberg

Preise & Kosten

Kaufpreis
799.000 €
Freiplätze
1
Garagen
2
Käufercourtage
2,975 % inkl. MwSt.

Angaben zur Immobilie

Objektart
Einfamilienhaus
Grundstücksfläche
4.400 m²
Anzahl Terrassen
1
Anzahl Zimmer
8
Anzahl Schlafzimmer
6
Anzahl Badezimmer
3
Anzahl separate WCs
1
Anzahl Balkone
2
Stellplätze
3
Einliegerwohnung
Wohnfläche
430 m²
Baujahr
2001
Zustand des Objektes
Gepflegt

EnergieausweisC

0
>250
Endenergiebedarf
86.30 kWh/(a·m²)
Gebäudeart
Wohnimmobilie
Energieausweis
Bedarf
Gültig bis
2026-06-25
Endenergiebedarf
86.30
Baujahr lt. Energieausweis
1999
Erstellungsdatum
Ausgestellt ab dem 01.05.2014
Energieeffizenzklasse
C
Primärenergieträger
OEL

Ausstattung

Kamin
heizungsart
Zentralheizung, Fussbodenheizung
befeuerung
Öl
Sauna
Bauweise
Massiv
Dachboden
Gäste-WC
Unterkellert
Ja

Ansprechpartner

Claudia Schäfer

Schäfer Immobilien

Anbieter

Schäfer Immobilien

66740 Saarlouis

Telefon06831-5084518
E-MailDiese E-Mail-Adresse ist vor Spambots geschützt! Zur Anzeige muss JavaScript eingeschaltet sein.
Webwww.schäferimmo.de

Bilder

Großzügiges Architektenhaus mit Einliegerwohnung und Weitblick über das Saartal zu verkaufen
Großzügiges Architektenhaus mit Einliegerwohnung und Weitblick über das Saartal zu verkaufen
Großzügiges Architektenhaus mit Einliegerwohnung und Weitblick über das Saartal zu verkaufen
Großzügiges Architektenhaus mit Einliegerwohnung und Weitblick über das Saartal zu verkaufen
Großzügiges Architektenhaus mit Einliegerwohnung und Weitblick über das Saartal zu verkaufen
Großzügiges Architektenhaus mit Einliegerwohnung und Weitblick über das Saartal zu verkaufen
Großzügiges Architektenhaus mit Einliegerwohnung und Weitblick über das Saartal zu verkaufen
Großzügiges Architektenhaus mit Einliegerwohnung und Weitblick über das Saartal zu verkaufen
Großzügiges Architektenhaus mit Einliegerwohnung und Weitblick über das Saartal zu verkaufen
Großzügiges Architektenhaus mit Einliegerwohnung und Weitblick über das Saartal zu verkaufen
Großzügiges Architektenhaus mit Einliegerwohnung und Weitblick über das Saartal zu verkaufen
Großzügiges Architektenhaus mit Einliegerwohnung und Weitblick über das Saartal zu verkaufen
Großzügiges Architektenhaus mit Einliegerwohnung und Weitblick über das Saartal zu verkaufen
Großzügiges Architektenhaus mit Einliegerwohnung und Weitblick über das Saartal zu verkaufen
Großzügiges Architektenhaus mit Einliegerwohnung und Weitblick über das Saartal zu verkaufen
Großzügiges Architektenhaus mit Einliegerwohnung und Weitblick über das Saartal zu verkaufen
Großzügiges Architektenhaus mit Einliegerwohnung und Weitblick über das Saartal zu verkaufen
Großzügiges Architektenhaus mit Einliegerwohnung und Weitblick über das Saartal zu verkaufen
Großzügiges Architektenhaus mit Einliegerwohnung und Weitblick über das Saartal zu verkaufen
Großzügiges Architektenhaus mit Einliegerwohnung und Weitblick über das Saartal zu verkaufen
Großzügiges Architektenhaus mit Einliegerwohnung und Weitblick über das Saartal zu verkaufen
Großzügiges Architektenhaus mit Einliegerwohnung und Weitblick über das Saartal zu verkaufen
Großzügiges Architektenhaus mit Einliegerwohnung und Weitblick über das Saartal zu verkaufen
Großzügiges Architektenhaus mit Einliegerwohnung und Weitblick über das Saartal zu verkaufen
Großzügiges Architektenhaus mit Einliegerwohnung und Weitblick über das Saartal zu verkaufen
Großzügiges Architektenhaus mit Einliegerwohnung und Weitblick über das Saartal zu verkaufen
Großzügiges Architektenhaus mit Einliegerwohnung und Weitblick über das Saartal zu verkaufen
Großzügiges Architektenhaus mit Einliegerwohnung und Weitblick über das Saartal zu verkaufen