Haus, Kauf, Mettlach
Immobilienportal-saarland.de
WOHNHAUS - NEUBAU - MIT GRUNDSTÜCK IN METTLACH

WOHNHAUS - NEUBAU - MIT GRUNDSTÜCK IN METTLACH

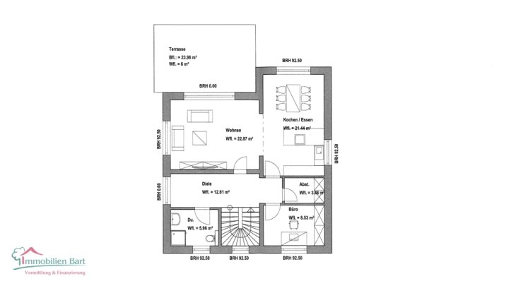
Objektbeschreibung

METTLACH-KEUCHINGEN:

In einer ruhigen Seitenstraße bieten wir Ihnen dieses Projekt, Neubau eines massiven Wohnhauses, auf einem 5,4 Ar großen Grundstück an.



BESONDERHEITEN:



- Baujahr 2026

- teilunterkellert

- 3 Schlafzimmer plus Büro

- 2 Bäder



Schlüsselfertiges Bauen gemäß Baubeschreibung

Sie bestimmen noch den kompletten Innenausbau

Weitere Informationen erhalten Sie gerne auf Anfrage

Lage

Mettlach liegt im Herzen des Dreiländerecks. Rund um die Saarschleife, nahe der Grenze zu Luxemburg und Frankreich gelegen, finden Sie alles was das Herz begehrt. Ein Geheimtipp für alle, die Ruhe und Entspannung suchen, aber auch für diejenigen die ihre Freizeit aktiv genießen wollen. Hier können Sie viel erleben: Radfahren, Wandern und Ausflüge in die Kulturstädte jenseits der Grenzen Trier, Luxemburg, Saarbrücken oder Metz haben für jeden etwas zu bieten. Mettlach verfügt über eine intakte Infrastruktur. Geschäfte für den täglichen Bedarf befinden sich in unmittelbarer Nähe. Die Autobahnanbindungen Saarbrücken und Luxemburg sind in wenigen Fahrminuten gut zu erreichen.



06 km bis D-Orscholz

09 km bis D-Merzig

20 km bis L-Remich

42 km bis L-Kirchberg

Sonstiges

Unser gesamtes Immobilienangebot können Sie unter www.immobilien-bart.de einsehen.



Haben wir Ihr Interesse geweckt? Für einen unverbindlichen Besichtigungstermin stehen wir Ihnen nach vorheriger Terminabsprache gerne zur Verfügung. Bitte haben Sie Verständnis dafür, dass wir Anfragen nur bearbeiten, wenn uns der vollständige Name, die Postanschrift und eine Rufnummer mitgeteilt wird. Ihre Daten werden selbstverständlich streng vertraulich und nur für diese Anfrage verwendet.



Sie möchten diese Immobilie finanzieren?

Vereinbaren Sie mit uns einen Beratungstermin, natürlich kostenfrei und unverbindlich. Aus einem Pool von 100 Banken finden wir, auch für Sie, die passende Finanzierung!



Die Käuferprovision beträgt 1,785 % inkl. MwSt. vom notariell beurkundeten Kaufpreis und ist verdient und fällig mit der notariellen Beurkundung.



Haftungsvorbehalt: Sämtliche Angaben erhielten wir vom Eigentümer und geben diese ohne Haftung weiter. Irrtum und Zwischenverkauf bleiben vorbehalten.

548.800 €

Kaufpreis

5

Anzahl Zimmer

3

Anzahl Schlafzimmer

145 m²

Wohnfläche

540 m²

Grundstücksfläche

Adresse

66693 Mettlach

Preise & Kosten

Kaufpreis
548.800 €
Garagen
1
Käufercourtage
1,785 % inkl. MwSt

Angaben zur Immobilie

Objektart
Einfamilienhaus
Grundstücksfläche
540 m²
Anzahl Terrassen
1
Anzahl Zimmer
5
Anzahl Schlafzimmer
3
Anzahl Badezimmer
2
Stellplätze
1
Wohnfläche
145 m²
Nutzfläche
40 m²
Baujahr
2026
Zustand des Objektes
Projektiert

Ausstattung

Boden
Fliesen, Laminat
befeuerung
Luft/Wasser Wärmepumpe
Unterkellert
teils

Ansprechpartner

Klaus Bart

Immobilien Bart GmbH

Anbieter

Immobilien Bart GmbH

66706 Perl-Nennig

Telefon06867 56 10 333
E-MailDiese E-Mail-Adresse ist vor Spambots geschützt! Zur Anzeige muss JavaScript eingeschaltet sein.
Webhttps://www.immobilien-bart.de/

Bilder

WOHNHAUS - NEUBAU - MIT GRUNDSTÜCK IN METTLACH
WOHNHAUS - NEUBAU - MIT GRUNDSTÜCK IN METTLACH
WOHNHAUS - NEUBAU - MIT GRUNDSTÜCK IN METTLACH
WOHNHAUS - NEUBAU - MIT GRUNDSTÜCK IN METTLACH
WOHNHAUS - NEUBAU - MIT GRUNDSTÜCK IN METTLACH