Haus, Kauf, Merzig
Immobilienportal-saarland.de
MERZIG: 627 M² WOHN-/ NUTZFLÄCHE, IMMOBILIE IN DER FUßGÄNGERZONE

MERZIG: 627 M² WOHN-/ NUTZFLÄCHE, IMMOBILIE IN DER FUßGÄNGERZONE

Objektbeschreibung

Dieses attraktive Wohn- und Geschäftshaus befindet sich in zentraler Lage von Merzig, direkt in der Innenstadt. Durch seine hervorragende Lage und die vielseitige Nutzungsmöglichkeit bietet das Objekt sowohl für Kapitalanleger als auch für Eigennutzer interessante Perspektiven.



Das Gebäude besteht aus einem Altbau sowie einem Neubau, der im Jahr 1961 errichtet wurde. Im Zuge dieser Erweiterung wurde der Altbau vollständig kernsaniert und mit dem Neubau baulich verbunden. So entstand ein harmonisches Gesamtobjekt mit funktionaler Raumaufteilung und solider Bausubstanz.



Im Erdgeschoss befindet sich ein großzügiges Ladenlokal mit einer Fläche von ca. 207 m². Die Einheit verfügt über eine große Schaufensterfront, zwei Toiletten und einen Abstellraum. Das Ladenlokal steht derzeit leer und bietet vielfältige Gestaltungsmöglichkeiten für Einzelhandel, Dienstleistung oder Gastronomie.



Das 1. Obergeschoss wird als Arztpraxis auf ca. 220 m² genutzt und ist langfristig vermietet, was stabile Mieteinnahmen gewährleistet. Die Praxisräume sind gepflegt und funktional geschnitten.



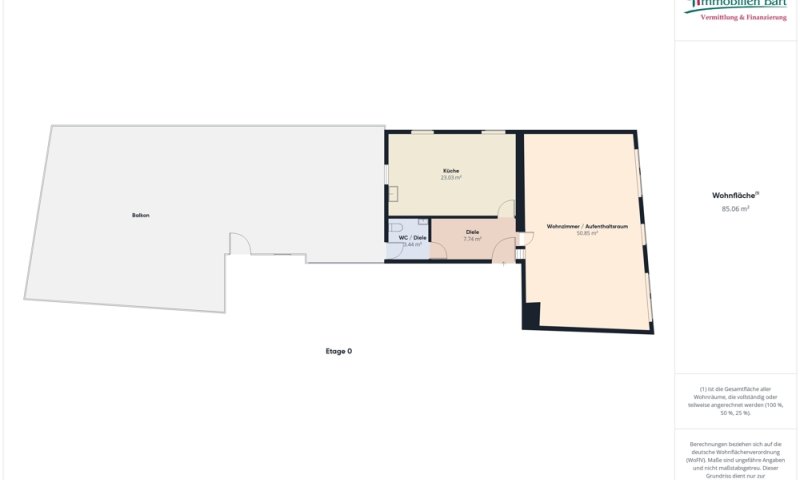
Im 2. Obergeschoss und Dachgeschoss befindet sich eine großzügige Wohnung mit rund 160 m² Wohnfläche. Die Raumaufteilung gestaltet sich wie folgt: Garderobe, Abstellraum, WC, Küche, Wohn- und Essbereich, vier Schlafzimmer sowie zwei Bäder. Besonders hervorzuheben ist die großzügige Dachterrasse mit einer Fläche von ca. 110 m², die einen herrlichen Ausblick und vielfältige Nutzungsmöglichkeiten bietet – ideal zum Entspannen oder geselligen Beisammensein.



Das Kellergeschoss verfügt über eine Gesamtfläche von ca. 200 m² und gliedert sich in eine Garage (ca. 30 m²), einen Privatkeller (ca. 50 m²) sowie einen Gewerbekeller (ca. 120 m²) mit Pausenraum und zwei Toiletten. Zusätzlich sind zwei weitere Kellerräume sowie der Heizungsraum vorhanden.



Das Objekt vereint attraktive Renditechancen mit vielseitigen Nutzungsmöglichkeiten in bester Merziger Lage.

Lage

Merzig liegt verkehrsgünstig direkt an der A8 und B51 zwischen Saarbrücken und Trier. Die Stadt Luxemburg ist ca. 50 km entfernt. Die Autobahnanbindung ist in wenigen Fahrminuten gut zu erreichen. Mit seiner reizvollen Lage, direkt an der Saar, ist Merzig ein idealer Ort für vielfältige Freizeitgestaltungen und Einkaufsmöglichkeiten.



19 km bis D-Saarlouis

44 km bis D-Saarbrücken

25 km bis L-Schengen

55 km bis L-Stadt

Sonstiges

Unser gesamtes Immobilienangebot können Sie unter www.immobilien-bart.de einsehen.



Haben wir Ihr Interesse geweckt? Für einen unverbindlichen Besichtigungstermin stehen wir Ihnen nach vorheriger Terminabsprache gerne zur Verfügung. Bitte haben Sie Verständnis dafür, dass wir Anfragen nur bearbeiten, wenn uns der vollständige Name, die Postanschrift und eine Rufnummer mitgeteilt wird. Ihre Daten werden selbstverständlich streng vertraulich und nur für diese Anfrage verwendet.



Sie möchten diese Immobilie finanzieren?

Vereinbaren Sie mit uns einen Beratungstermin, natürlich kostenfrei und unverbindlich. Aus einem Pool von 100 Banken finden wir, auch für Sie, die passende Finanzierung!



Die Käuferprovision beträgt 3,57 % inkl. MwSt. vom notariell beurkundeten Kaufpreis und ist verdient und fällig mit der notariellen Beurkundung.



Haftungsvorbehalt: Sämtliche Angaben erhielten wir vom Eigentümer und geben diese ohne Haftung weiter. Irrtum und Zwischenverkauf bleiben vorbehalten.

684.800 €

Kaufpreis

16

Anzahl Zimmer

4

Anzahl Schlafzimmer

160 m²

Wohnfläche

271 m²

Grundstücksfläche

Adresse

66663 Merzig

Preise & Kosten

Kaufpreis
684.800 €
Käufercourtage
3,57 % inkl. MwSt

Angaben zur Immobilie

Objektart
Haus
Grundstücksfläche
271 m²
Anzahl Terrassen
1
Anzahl Zimmer
16
Anzahl Schlafzimmer
4
Anzahl Badezimmer
2
Anzahl separate WCs
8
Stellplätze
1
Wohnfläche
160 m²
Nutzfläche
627 m²
Baujahr
1898
Verkaufsstatus
offen
Objekt ist vermietet

EnergieausweisD

Energieverbrauchskennwert
157.3 kWh / (a·m²)
0
>250
Gebäudeart
Gewerbeimmobilie
Energieausweis
Verbrauch
Gültig bis
2028-12-17
Energieverbrauchskennwert
157.3
Baujahr lt. Energieausweis
1898
Erstellungsdatum
Ausgestellt ab dem 01.05.2014
Energieeffizenzklasse
D
Primärenergieträger
GAS
Stromverbrauchskennwert kWh/(·a)
7.700
Heizenergie­verbrauchs­kennwert kWh/(·a)
10.120

Ausstattung

Boden
Fliesen, Teppich, Kunststoff
heizungsart
Zentralheizung
befeuerung
Gas
Unterkellert
Ja

Besonderheiten dieser Immobilie:

- zentrale Innenstadtlage von Merzig

- Kombination aus Altbau und Neubau von 1961

- Altbau im Zuge des Neubaus vollständig kernsaniert

- drei Nutzungseinheiten: Ladenlokal, Arztpraxis und Wohnung auf 2 Etagen

- Ladenlokal (ca. 207 m²) mit großer Schaufensterfront -- leerstehend

- Arztpraxis (ca. 220 m²) im 1. Obergeschoss – langfristig vermietet

- Wohnung (ca. 160 m²) über 2. Obergeschoss und Dachgeschoss

- Kellergeschoss mit ca. 200 m² Nutzfläche

- 4 Schlafzimmer mit maßgeschreinerten Einbauschränken, eines davon mit Waschgelegenheit

- vielseitige Nutzungsmöglichkeiten für Wohnen und Gewerbe

- Attraktive Renditechancen durch langfristige Vermietung

- Heizkessel von 2013

- ein stillgelegter Personenaufzug ist vorhanden und kann gegebenenfalls wieder in Betrieb genommen werden

Ansprechpartner

Nora Jacob

Immobilien Bart GmbH

Anbieter

Immobilien Bart GmbH

66706 Perl-Nennig

Telefon06867 56 10 333
E-MailDiese E-Mail-Adresse ist vor Spambots geschützt! Zur Anzeige muss JavaScript eingeschaltet sein.
Webhttps://www.immobilien-bart.de/

Bilder

MERZIG: 627 M² WOHN-/ NUTZFLÄCHE, IMMOBILIE IN DER FUßGÄNGERZONE
MERZIG: 627 M² WOHN-/ NUTZFLÄCHE, IMMOBILIE IN DER FUßGÄNGERZONE
MERZIG: 627 M² WOHN-/ NUTZFLÄCHE, IMMOBILIE IN DER FUßGÄNGERZONE
MERZIG: 627 M² WOHN-/ NUTZFLÄCHE, IMMOBILIE IN DER FUßGÄNGERZONE
MERZIG: 627 M² WOHN-/ NUTZFLÄCHE, IMMOBILIE IN DER FUßGÄNGERZONE
MERZIG: 627 M² WOHN-/ NUTZFLÄCHE, IMMOBILIE IN DER FUßGÄNGERZONE
MERZIG: 627 M² WOHN-/ NUTZFLÄCHE, IMMOBILIE IN DER FUßGÄNGERZONE
MERZIG: 627 M² WOHN-/ NUTZFLÄCHE, IMMOBILIE IN DER FUßGÄNGERZONE
MERZIG: 627 M² WOHN-/ NUTZFLÄCHE, IMMOBILIE IN DER FUßGÄNGERZONE
MERZIG: 627 M² WOHN-/ NUTZFLÄCHE, IMMOBILIE IN DER FUßGÄNGERZONE
MERZIG: 627 M² WOHN-/ NUTZFLÄCHE, IMMOBILIE IN DER FUßGÄNGERZONE
MERZIG: 627 M² WOHN-/ NUTZFLÄCHE, IMMOBILIE IN DER FUßGÄNGERZONE
MERZIG: 627 M² WOHN-/ NUTZFLÄCHE, IMMOBILIE IN DER FUßGÄNGERZONE
MERZIG: 627 M² WOHN-/ NUTZFLÄCHE, IMMOBILIE IN DER FUßGÄNGERZONE