Gewerbeobjekt mit Werkstatthalle, Bürotrakt und großzügigem Außenbereich in 66482 Zweibrücken
Dieses vielseitig nutzbare Gewerbeobjekt befindet sich in einem etablierten Industriegebiet auf dem ehemaligen Flugplatz in Zweibrücken. Die Liegenschaft bietet eine ideale Kombination aus großzügigen Hallenflächen und modernen Büroeinheiten und ist vollständig eingezäunt. Das Gelände verfügt über ausreichend Außenflächen mit Stellplätzen für bis zu 12 PKW, was sowohl für Kundenverkehr als auch für Mitarbeiter attraktiv ist.
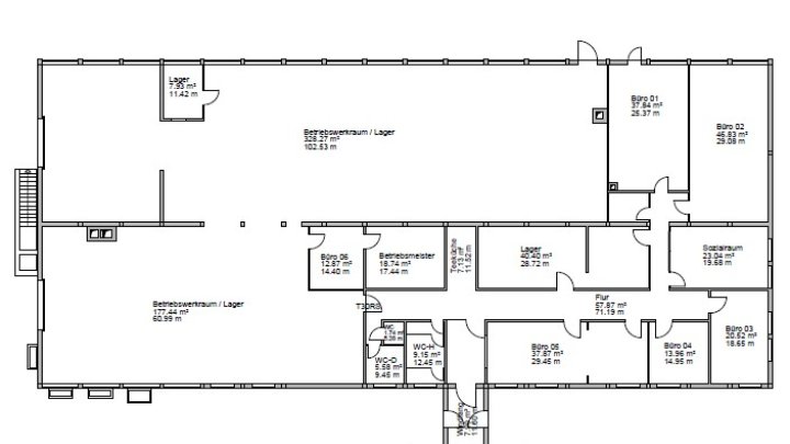
Das Gebäude wurde zwischen 2003 und 2019 umfassend modernisiert und präsentiert sich heute in einem gepflegten Zustand. Es erstreckt sich über ein Untergeschoss sowie ein großzügiges Erdgeschoss mit insgesamt ca. 1.073 m² Nutzfläche.
Raumaufteilung:
Untergeschoss (ca. 68 m²):
- Ehemaliger Heizungstechnikraum
- Ehemaliges Öllager
Erdgeschoss (ca. 1.006 m²):
- Zwei große Betriebswerkhallen mit über 500 m² Fläche, ideal für Produktion, Werkstatt oder Lager
- Separater Besprechungsraum (ca. 73 m²)
- Sechs helle und gut geschnittene Büroräume mit Größen zwischen ca. 13 und 47 m²
- Sozialraum, Teeküche sowie getrennte Damen- und Herren-WCs
- Lagerflächen für Materialien oder Akten
- Empfangsbereich/Windfang
- Flur- und Erschließungsflächen mit ausreichend Bewegungsfreiheit
Besonderheiten:
- Flexible Nutzungsmöglichkeiten für Handwerksbetriebe, Produktion oder Logistik
- Repräsentativer Eingang mit funktionalem Grundrisskonzept
- Die Lage im Gewerbegebiet auf dem Flugplatz Zweibrücken bietet ein ruhiges, zugleich aber strategisch vorteilhaftes Umfeld für Unternehmen, die eine verkehrsgünstige Anbindung und ausreichend Raum zur Entfaltung benötigen.
- Flugplatz Zweibrücken - Gewerbe, Multimedia-Internet-Park und Outlet-Shopping mit direktem Autobahnanschluss
- mittelständische Unternehmen und kleine
Handwerksbetriebe im direkten Umfeld Gewerbepark aus den Bereichen:
- Produktion (z.B Kubota)
- Dienstleistung (z.B. Kundenzentrum John Deere)
- Logistik
- Luftfahrtwerften
- Kfz-Testcenter für Automotiv-Entwicklung
- Sonderlandeplatz
- Entfernungen:
Autobahnanschluss:
A8 – 2 km
Bahnhöfe
Bahnhof Zweibrücken – 3 km
Flughäfen
Saarbrücken – 41 km
Frankfurt-Hahn – 130 km
Frankfurt – 169 km
Zweibrücken - in unmittelbarer Nähe
Oberzentren
Zweibrücken – 10 km
Kaiserslautern – 63 km
Frankfurt – 178 km
- Eine gute Verkehrsanbindung wird über die in wenigen Minuten entfernte Fernstraßenanbindung nach Saarbrücken, Kaiserslautern und Pirmasens gewährleistet (Bundesstraße B10 und nahe gelegene Autobahnanbindung A8/A62). In wenigen Minuten erreichen Sie das Stadtzentrum von Zweibrücken.
Der Makler-Vertrag mit uns und/oder unserem Beauftragten kommt durch die Bestätigung der Inanspruchnahme unserer Maklertätigkeit in Textform zustande, wie z.B. insbesondere die Unterschrift des Suchkundenvertrages und/oder des Objekt-Exposés. Die Höhe der Courtage richtet sich nach den ab dem 23.12.2020 in Kraft getretenen gesetzlichen Regelungen zur Teilung der Maklercourtage. Hiernach wird die Courtage regelmäßig für beide Parteien (Eigentümer und Käufer) 3,57 % auf den Kaufpreis inklusive gesetzlicher Umsatzsteuer betragen und ist bei notariellem Vertragsabschluss verdient und fällig. Die Höhe der Bruttocourtage unterliegt einer Anpassung bei Steuersatzänderung. Immobilia GmbH und ggf. deren Beauftragte erhalten einen unmittelbaren Zahlungsanspruch gegenüber dem Käufer (Vertrag zugunsten Dritter, § 328 BGB). Wir haben mit dem Verkäufer einen Maklervertrag in gleicher Höhe abgeschlossen. Grunderwerbssteuer, Notar- und Gerichtskosten trägt der Käufer.
Alleinverkauf durch die Fa. Immobilia GmbH
Ihr Ansprechpartner : Immobilia GmbH , 66482 Zweibrücken , Poststraße 19 , Immobilienberater Kai Goedicke B.A. Architektur, Tel. Nr. 06332 - 903460 , Email : kai.goedicke@immo-gessner.de
Unsere Objekte befindet sich im freien Verkauf. Wir sind auch für den Eigentümer tätig.
Die Objektdaten wurden uns vom Eigentümer genannt und sind ohne Gewähr.
Die Fälligkeit der Provision entsteht mit dem Abschluss des Kauf bzw. Mietvertrages .
Es gelten die Provisionen wie im Exposé angezeigt.
Die in den Exposé und Beschreibungen u. a. enthaltenen Angaben basieren auf Informationen des Verkäufers. Zu eigenen Nachforschungen ist die Fa. Immobilia GmbH nicht verpflichtet. Sie übernimmt deshalb keine Haftung für die Richtigkeit und Vollständigkeit der Angaben, es sei denn, die Unrichtigkeit beruht auf grobem Verschulden der Fa. Immobilia GmbH.
Besichtigungstermine sind jederzeit nach Absprache möglich.
Energieausweis in Bearbeitung!