Haus, Kauf, Zweibrücken
Immobilienportal-saarland.de
NEUBAU - Wohnen am Jacobyberg – Doppelhaushälfte mit Garten in Toplage von 66482 Zweibrücken

NEUBAU - Wohnen am Jacobyberg – Doppelhaushälfte mit Garten in Toplage von 66482 Zweibrücken

Objektbeschreibung

Die modernen Doppelhaushälften am Jacobyberg in Zweibrücken vereinen eine ruhige Wohnlage mit einer durchdachten Architektur und einer zeitgemäßen Bauweise. Auf den jeweils rund 240 m² großen Grundstücken in vorderer Reihe entstanden drei Doppelhäuser mit insgesamt sechs Wohneinheiten. Jede Einheit überzeugt durch eine Wohnfläche von etwa 123 m², die sich auf zwei Vollgeschosse verteilt.



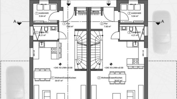
Im Erdgeschoss befindet sich der großzügige Wohn- und Essbereich mit angeschlossener, offener Küche. Von hier aus gelangt man direkt auf die Terrasse. Ein Gäste-WC, der Hausanschlussraum sowie ein praktischer Abstellraum ergänzen dies.



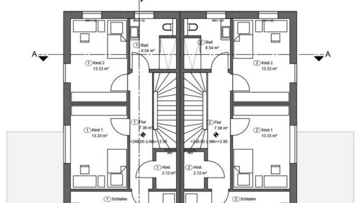
Über die Treppe gelangt man ins Obergeschoss. Hier erwarten Sie ein helles Tageslichtbad mit bodengleicher Dusche sowie drei weitere Räume, die flexibel als Schlaf-, Kinder- oder Arbeitszimmer genutzt werden können. Ein zusätzlicher Abstellraum bietet weiteren Platz..



Im Kaufpreis enthalten sind sämtliche Planungsleistungen, darunter die Architektenleistungen, die statische Berechnung sowie die Wärmebedarfsberechnung. Zudem ist ein Energieausweis gemäß den §§ 79 ff. des Gebäudeenergiegesetzes (GEG) vom 08.08.2020 enthalten. Die Häuser werden in der Energieeffizienzklasse KfW 55 erstellt.

Mit der Installation einer Photovoltaikanlage (3,8 kWp, ohne Speicher) für rund 6.500 € lässt sich sogar die Klasse KfW 40 erreichen.



Ein weiterer Pluspunkt: Die angebotenen Doppelhaushälften sind derzeit vermietet und erzielen eine jährliche Nettokaltmiete von 18.600 €. Damit eignen sie sich sowohl als attraktives Eigenheim als auch als solide Kapitalanlage mit nachhaltiger Rendite.







Als Immobilienkäufer oder auch Interessent profitieren Sie von unserer Expertise als Immobilienmakler und von unserer langjährigen Partnerschaft zu Kreditinstituten und freiberuflichen Finanzierern. .







Aufteilung einer Doppelhaushälfte:



DHH mit ca. 123,10 m² Wfl.:





Erdgeschoss mit ca. 59,74 m² Wfl. :



- HAR

- Flur

- Gäste-WC

- Wohnen/Essen/Kochen

- Abstellraum außen

- Terrasse (1/4 x 13,7m²)





Obergeschoss mit ca. 63,36 m² Wfl. :



- Flur

- Elternschlafzimmer

- Kind 1

- Kind 2

- Bad

- Abstellraum

Lage

Die modernen Neubau-Doppelhaushälften am Jacobyberg verbinden ruhiges Wohnen in naturnaher Umgebung mit den Vorzügen einer zentralen Stadtlage. Das Wohngebiet zählt zu den bevorzugten Wohnadressen in Zweibrücken.



Alle Einrichtungen des täglichen Bedarfs – Einkaufsmöglichkeiten, Ärzte, Apotheken sowie vielfältige Gastronomie – befinden sich in unmittelbarer Nähe und sind schnell erreichbar. Kindergärten, Grund- und weiterführende Schulen sind in wenigen Minuten erreichbar.



Die Innenstadt von Zweibrücken, sowie das bekannte Zweibrücken Fashion Outlet sind nur einen kurzen Weg entfernt. Gleichzeitig laden die umliegenden Grünflächen, Spazier- und Radwege rund um den Jacobyberg zu Erholung und Freizeitaktivitäten direkt vor der Haustür ein.



Auch verkehrstechnisch überzeugt die Lage: Der Anschluss an den öffentlichen Nahverkehr ist fußläufig erreichbar, und über die nahegelegene A8 und A62 sind die Städte Homburg, Saarbrücken und Kaiserslautern hervorragend angebunden.

Sonstiges

Alleinverkauf durch die Fa. Immobilia GmbH

PROVISIONSFREI !!!





Ihr Ansprechpartner : Immobilia GmbH , 66482 Zweibrücken , Poststraße 19 , Immobilienberater Luca Geßner, Tel. Nr. 06332 - 903460 , Email : immobilia@immo-gessner.de



Unsere Objekte befindet sich im freien Verkauf. Wir sind auch für den Eigentümer tätig.

Die Objektdaten wurden uns vom Eigentümer genannt und sind ohne Gewähr.



Die in den Exposé und Beschreibungen u. a. enthaltenen Angaben basieren auf Informationen des Verkäufers. Zu eigenen Nachforschungen ist die Fa. Immobilia GmbH nicht verpflichtet. Sie übernimmt deshalb keine Haftung für die Richtigkeit und Vollständigkeit der Angaben, es sei denn, die Unrichtigkeit beruht auf grobem Verschulden der Fa. Immobilia GmbH.



Besichtigungstermine sind jederzeit nach Absprache möglich.

449.000 €

Kaufpreis

4

Anzahl Zimmer

3

Anzahl Schlafzimmer

123 m²

Wohnfläche

240 m²

Grundstücksfläche

Adresse

66482 Zweibrücken

Preise & Kosten

Kaufpreis
449.000 €
Freiplätze
2

Angaben zur Immobilie

Objektart
Doppelhaushälfte
Grundstücksfläche
240 m²
Anzahl Terrassen
1
Anzahl Zimmer
4
Anzahl Schlafzimmer
3
Anzahl Badezimmer
1
Anzahl separate WCs
1
Stellplätze
2
Wohnfläche
123 m²
Baujahr
2023
Objekt ist vermietet
Verfügbar ab
ab sofort

EnergieausweisAPLUS

0
>250
Endenergiebedarf
17.8 kWh/(a·m²)
Gebäudeart
Wohnimmobilie
Energieausweis
Bedarf
Endenergiebedarf
17.8
Warmwasser enthalten
Energieeffizenzklasse
APLUS
Primärenergieträger
Wärmepumpe

Ausstattung

Stellplatzart
Freiplatz
Bad
Dusche, Fenster
Boden
Fliesen
heizungsart
Fussbodenheizung
befeuerung
Luft/Wasser Wärmepumpe
Dachform
Flachdach
Bauweise
Massiv
Gäste-WC

- Das Dach ist als Flachdach in Stahlbetonbauweise hergestellt.

- Alle Fenster und Fenstertüren haben elektrische Rollläden in den Wohnbereichen von Erdgeschoss und Obergeschoss

- Die Außenfensterbänke sind in Aluminium farblich passend zu den Fenstern ausgeführt.

- Die Fenster werden als Kunststofffenster in der Farbe Anthrazit ausgeführt.

- Die Fenster erhalten eine 3-fach lsolierverglasung.

- Alle Wände und Decken sind weiß gestrichen. Die Decken mit zusätzlicher Malervliestapete.

- Im Bereich des Treppenaufgangs ist eine Stahlwangentreppe mit Holzstufen und Glasgeländer montiert.

- Jedes Haus ist mit einer Luft-Wasser-Wärmepumpe der Firma Viessmann entsprechend der Wärmebedarfsberechnung nach GEG-Nachweis ausgestattet.

Die Temperatur wird über einzelraumgesteuerte Thermostate im Gebäude geregelt.

- Alle Fußböden verfügen über eine Fußbodenheizung und sind gefliest.

- Badezimmer mit großer begehbarer Dusche

- Gäste-WC

- Abstellraum im EG und OG

- Terrasse (teilweise überdacht) mit Garten

Ansprechpartner

Immobilia GmbH

66482 Zweibrücken

Anbieter

Immobilia GmbH IVD

66482 Zweibrücken

Telefon06332/903460
Webhttps://www.facebook.com/ImmobiliaZW/

Bilder

NEUBAU - Wohnen am Jacobyberg – Doppelhaushälfte mit Garten in Toplage von 66482 Zweibrücken
NEUBAU - Wohnen am Jacobyberg – Doppelhaushälfte mit Garten in Toplage von 66482 Zweibrücken
NEUBAU - Wohnen am Jacobyberg – Doppelhaushälfte mit Garten in Toplage von 66482 Zweibrücken
NEUBAU - Wohnen am Jacobyberg – Doppelhaushälfte mit Garten in Toplage von 66482 Zweibrücken
NEUBAU - Wohnen am Jacobyberg – Doppelhaushälfte mit Garten in Toplage von 66482 Zweibrücken
NEUBAU - Wohnen am Jacobyberg – Doppelhaushälfte mit Garten in Toplage von 66482 Zweibrücken
NEUBAU - Wohnen am Jacobyberg – Doppelhaushälfte mit Garten in Toplage von 66482 Zweibrücken
NEUBAU - Wohnen am Jacobyberg – Doppelhaushälfte mit Garten in Toplage von 66482 Zweibrücken
NEUBAU - Wohnen am Jacobyberg – Doppelhaushälfte mit Garten in Toplage von 66482 Zweibrücken
NEUBAU - Wohnen am Jacobyberg – Doppelhaushälfte mit Garten in Toplage von 66482 Zweibrücken