Wohnung, Kauf, Zerf
Immobilienportal-saarland.de
NEUBAU PENTHOUSEWOHNUNG MIT 3 SCHALFZIMMERN

NEUBAU PENTHOUSEWOHNUNG MIT 3 SCHALFZIMMERN

Objektbeschreibung

In attraktiver Lage entsteht ab März 2026 ein modernes Neubauprojekt mit insgesamt 24 Wohneinheiten, das voraussichtlich im März 2028 fertiggestellt wird. Das Bauvorhaben vereint zeitgemäße Architektur mit hoher Wohnqualität und Komfort.



Die Wohnungen werden großzügig und lichtdurchflutet gestaltet und bieten vielfältige Grundrisslösungen, die sowohl Single wie Paare als auch Familien ansprechen. Jede Einheit verfügt über einen eigenen Kellerraum im Untergeschoss, so dass zusätzlicher Stauraum für die Bewohner vorhanden ist.



Ein Personenaufzug verbindet alle Etagen komfortabel miteinander und sorgt für barrierearmes Wohnen. Die Ausstattung der Wohnungen entspricht modernen Wohnstandards. In allen Räumen wird eine Fußbodenheizung installiert, die für behagliche Wärme und ein angenehmes Raumklima sorgt.



Zur Wohnung kann optional ein Außenstellplatz für 5.000 € oder ein Tiefgaragenstellplatz für 30.000 € erworben werden. Damit wird eine flexible und komfortable Parkmöglichkeit gewährleistet.



Dieses Neubauprojekt verbindet durchdachte Grundrisse, moderne Ausstattung und eine attraktive Lage zu einem zukunftssicheren Wohnkonzept.



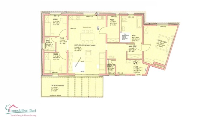
Die Raumaufteilung ist wie folgt:



Penthouse:

Flur, Gäste-WC, Abstellraum, Wohn-Essbereich mit offener Küche und Ausgang zur Dachterrasse, 2 Schlafzimmer mit eigenem Badezimmer, Schlafzimmer mit Ankleide und eigenem Badezimmer

Lage

Zerf liegt idyllisch im Naturpark Saar-Hunsrück, eingebettet in waldreiche Höhenlagen entlang von Großbach und Ruwer. Die Gemeinde, Teil der Verbandsgemeinde Saarburg-Kell, gilt als staatlich anerkannter Erholungsort und Grundzentrum. Zerf umfasst mehrere Ortsteile (Niederzerf, Oberzerf, Frommersbach) und weitere Wohnplätze mit attraktiven Freizeit- und Wohnangeboten, wie etwa den Ruwer-Hochwald-Radweg auf einer ehemaligen Bahntrasse. Die Infrastruktur in Niederzerf bietet Grundschule, Kindergarten, Einkaufsmöglichkeiten und Ärzte – die Anbindung per Bahn und Autobahn ist ebenfalls solide gegeben.

Sonstiges

Unser gesamtes Immobilienangebot können Sie unter www.immobilien-bart.de einsehen.



Haben wir Ihr Interesse geweckt? Für einen unverbindlichen Besichtigungstermin stehen wir Ihnen nach vorheriger Terminabsprache gerne zur Verfügung. Bitte haben Sie Verständnis dafür, dass wir Anfragen nur bearbeiten, wenn uns der vollständige Name, die Postanschrift und eine Rufnummer mitgeteilt wird. Ihre Daten werden selbstverständlich streng vertraulich und nur für diese Anfrage verwendet.



Sie möchten diese Immobilie finanzieren?

Vereinbaren Sie mit uns einen Beratungstermin, natürlich kostenfrei und unverbindlich. Aus einem Pool von 100 Banken finden wir, auch für Sie, die passende Finanzierung!



Der Kauf dieser Immobilie ist für den Käufer provisionsfrei!



Haftungsvorbehalt: Sämtliche Angaben erhielten wir vom Eigentümer und geben diese ohne Haftung weiter. Irrtum und Zwischenverkauf bleiben vorbehalten.

627.438 €

Kaufpreis

4

Anzahl Zimmer

149,39 m²

Wohnfläche

Adresse

54314 Zerf

Preise & Kosten

Kaufpreis
627.438 €
Stellplatzkaufpreis Tiefgarage
30.000 €
Tiefgaragen
1
Stellplatzkaufpreis Freiplatz
5.000 €
Freiplätze
1
Käufercourtage
provisionsfrei

Angaben zur Immobilie

Objektart
Penthouse
Anzahl Zimmer
4
Anzahl Schlafzimmer
3
Anzahl Badezimmer
2
Anzahl separate WCs
1
Anzahl Balkone
1
Stellplätze
2
Wohnfläche
149,39 m²

Ausstattung

heizungsart
Fussbodenheizung
befeuerung
Luft/Wasser Wärmepumpe
Aufzug
Personenaufzug

Besonderheiten:

- Neubauprojekt mit 24 Wohneinheiten

- geplanter Baubeginn: März 2026

- voraussichtliche Fertigstellung: März 2028

- jede Wohnung mit eigenem Kellerraum im Untergeschoss

- Personenaufzug für bequemen Zugang zu allen Etagen

- Fußbodenheizung in allen Räumen

- Außenstellplatz optional für 5.000 €

- Tiefgaragenstellplatz optional für 30.000 €

Ansprechpartner

Klaus Bart

Immobilien Bart GmbH

Anbieter

Immobilien Bart GmbH

66706 Perl-Nennig

Telefon06867 56 10 333
E-MailDiese E-Mail-Adresse ist vor Spambots geschützt! Zur Anzeige muss JavaScript eingeschaltet sein.
Webhttps://www.immobilien-bart.de/

Bilder

NEUBAU PENTHOUSEWOHNUNG MIT 3 SCHALFZIMMERN
NEUBAU PENTHOUSEWOHNUNG MIT 3 SCHALFZIMMERN
NEUBAU PENTHOUSEWOHNUNG MIT 3 SCHALFZIMMERN
NEUBAU PENTHOUSEWOHNUNG MIT 3 SCHALFZIMMERN
NEUBAU PENTHOUSEWOHNUNG MIT 3 SCHALFZIMMERN
NEUBAU PENTHOUSEWOHNUNG MIT 3 SCHALFZIMMERN
NEUBAU PENTHOUSEWOHNUNG MIT 3 SCHALFZIMMERN
NEUBAU PENTHOUSEWOHNUNG MIT 3 SCHALFZIMMERN
NEUBAU PENTHOUSEWOHNUNG MIT 3 SCHALFZIMMERN