Wohnung, Kauf, Saarbrücken / Malstatt
Immobilienportal-saarland.de
3-ZKB Wohnung mit Balkon in zentraler Lage

3-ZKB Wohnung mit Balkon in zentraler Lage

Objektbeschreibung

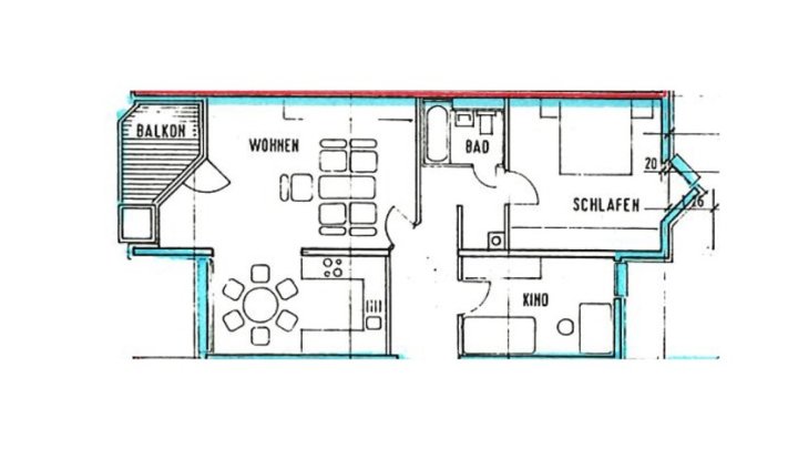
Angeboten wird mit dieser sehr gepflegten 3-ZKB Eigentumswohnung eine schöne und helle Immobilie im 2.OG eines Wohn- und Geschäftshauses (mit Aufzug) in zentraler Lage in Saarbrücken, direkt am Malstatter Markt.



In unmittelbarer Nähe befinden sich die Haltestellen für den ÖPNV und zahlreiche Geschäfte und sonstige Einrichtungen des öffentlichen Lebens.



Nach dem Betreten der Wohnung gelangt man in den Flur, von dem aus die große Wohnküche, ein Schlafzimmer, das Bad und der Abstellraum zugänglich sind.



Das Wohnzimmer ist entweder über die Küche oder über eine Tür im Flur erreichbar.



Im Küchenbereich befindet sich ein Anschluss für die Waschmaschine.



Dort ist auch der Ausgang auf den kleinen Balkon, der eine schöne Süd-Ausrichtung besitzt mit unverbautem Blick in Richtung der Saar.



Ein Stellplatz in der hauseigenenen Tiefgarage kann optional angemietet werden.



Aktuell ist diese Wohnung an sehr zuverlässige Mieter vergeben. Damit eignet sich die Immobilie als sicheres Anlageobjekt ebenso wie für die - perspektivische - Eigennutzung.



Gerne informieren wir Sie im persönlichen Dialog über die Details des aktuellen Mietvertrages und übermitteln Ihnen die weitergehenden Informationen zum Hausgeld und der Wohnanlage selbst.



Wir freuen uns auf Ihre Nachricht. Bitte kontaktieren Sie uns dabei unter Angabe Ihrer vollständigen Kontaktdaten.

Lage

Die Landeshauptstadt Saarbrücken gehört mit Ihrer Universität, der Fachhochschule, den Sehenswürdigkeiten wie der Ludwigskirche, den Winterbergkliniken, zahlreichen kulturellen Einrichtungen und der Bahnhofstraße als der „längsten“ Einkaufsstraße des Saarlandes zu den bevorzugten Wohngebieten im Südwesten Deutschlands.



Saarbrücken zeichnet sich dabei durch seine zentrale Lage im Dreiländereck Deutschland/Frankreich/Luxemburg aus.

Mit dem Flughafen in Saarbrücken-Ensheim, dem Eurobahnhof, der Saarbahn und den zahlreichen Autobahnanschlüssen an die Bundesautobahnen A1, A620, A6 und A623 sind die Wege immer kurz und die infrastrukturelle Anbindung schnell und bequem.



Das Saarland selbst ist mit seinem Waldanteil von nahezu 1/3 das „grünste“ Bundesland. Viele Ausflugsziele sorgen dafür, dass nicht nur das bekannte Motto „gudd gess“ hier leicht umsetzbar ist, sondern auch das Freizeitleben nicht zu kurz kommt.



Nicht zuletzt sorgt die Offenheit und Freundlichkeit der Menschen hier dafür, dass die Wohn- und Lebensqualität in Saarbrücken ausgesprochen hoch ist.

Sonstiges

Selbstverständlich stehen wir Ihnen gerne mit weiteren Objektinformationen und für Besichtigungen zur Verfügung.



Alle im Exposé genannten Objektangaben und Informationen beruhen auf Angaben des Auftraggebers. Für die Richtigkeit und Vollständigkeit wird keine Haftung übernommen.



Hinweis zum Energieausweis:

Wir weisen alle Auftraggeber auf die aktuellen gesetzlichen Regelungen zur Vorlage eines Energieausweises hin. Im Einzelfalle ist der Ausweis zum Zeitpunkt der Erstellung des Exposé in Bearbeitung, also noch nicht erstellt und wird später nachgereicht. Wir bitten dies zu entschuldigen.

Ergänzender Hinweis: Ein übergebener Energieausweis stellt keine Beschaffenheitsvereinbarung dar. Unser Haftungsauschluss bezieht sich auch auf die darin enthaltenen Daten.



Die Pflichten nach dem Geldwäschegesetz (GwG)

• Der Gesetzgeber schreibt vor, dass Vertragspartner vor der Begründung einer Geschäftsbeziehung zu identifizieren sind. (§3 GwG). Immobilienmakler haben diese Sorgfaltspflicht einzuhalten. Die Identifizierung des Kaufinteressenten durch den Immobilienmakler muss erfolgt sein, bevor die Aufnahme der Kaufvertragsverhandlungen ermöglicht wird.

• Bei der Identifizierung sind entweder Name, Geburtsdatum und –Ort, Staatsangehörigkeit, Anschrift, Personalausweisnummer und ausstellende Behörde festzuhalten oder es ist der Ausweis zu kopieren.

• Darüber hinaus hat der Makler zu klären, ob der Kunde im eigenen wirtschaftlichen Interesse handelt oder für einen Dritten.

• Festgehalten werden muss auch, ob es sich bei dem Vertragspartner und ggf. wirtschaftlichen Berechtigten um eine Politisch exponierte Person (PeP) handelt.

• Als Kunde sind Sie verpflichtet, dem Immobilienmakler den Ausweis vorzulegen und die entsprechenden Auskünfte zu erteilen (§4 Abs. 6 GwG)

Bitte helfen Sie Ihrem Immobilienmakler dabei, die gesetzlichen Pflichten nach dem Geldwäschegesetz zu erfüllen.

• Zeigen Sie uns bitte Ihren Personalausweis und ermöglichen damit die vorgeschriebene Dokumentation.

159.000 €

Kaufpreis

3

Anzahl Zimmer

85 m²

Wohnfläche

Sofort

Verfügbar ab

Adresse

Malstatter Markt 4
66115 Saarbrücken / Malstatt

Preise & Kosten

Kaufpreis
159.000 €
Käufercourtage
3,57% inkl. MwSt.

Angaben zur Immobilie

Objektart
Etagenwohnung
Anzahl Zimmer
3
Anzahl Schlafzimmer
2
Anzahl Badezimmer
1
Anzahl Balkone
1
Wohnfläche
85 m²
Objekt ist vermietet
Verfügbar ab
Sofort

Karte

Ausstattung

heizungsart
Fernheizung
Aufzug
Personenaufzug
Kabel / Sat- TV

Laminatböden in allen Wohnräumen

Bad mit Wanne

Abstellraum in der Wohnung

Balkon

Kellerraum

Parkplätze im öffentlichen Raum

Ansprechpartner

Sascha Hertel

Eichenlaub & Dumont Immobilien e.K.

Anbieter

Eichenlaub & Dumont Immobilien e.K.

66133 Saarbrücken

Telefon0681 - 855 486
E-MailDiese E-Mail-Adresse ist vor Spambots geschützt! Zur Anzeige muss JavaScript eingeschaltet sein.
Webhttps://www.eichenlaub-dumont.de

Bilder

3-ZKB Wohnung mit Balkon in zentraler Lage
3-ZKB Wohnung mit Balkon in zentraler Lage
3-ZKB Wohnung mit Balkon in zentraler Lage
3-ZKB Wohnung mit Balkon in zentraler Lage
3-ZKB Wohnung mit Balkon in zentraler Lage
3-ZKB Wohnung mit Balkon in zentraler Lage
3-ZKB Wohnung mit Balkon in zentraler Lage
3-ZKB Wohnung mit Balkon in zentraler Lage
3-ZKB Wohnung mit Balkon in zentraler Lage
3-ZKB Wohnung mit Balkon in zentraler Lage
3-ZKB Wohnung mit Balkon in zentraler Lage