Immobilia GmbH präsentiert:
Eine exklusive Gewerbeimmobilie mit Büroflächen und vielseitigen Nutzungsmöglichkeiten
Willkommen zu Ihrem neuen Geschäftsstandort in Zweibrücken! Diese exquisite Gewerbeimmobilie bietet nicht nur eine erstklassige Büro- und Gewerbefläche von insgesamt ca. 273 m², sondern auch eine beeindruckende Liste von Annehmlichkeiten, die Ihren geschäftlichen Erfolg unterstützen werden.
Lage und Grundstück:
Das Büro- und Gewerbegebäude befindet sich auf einem großzügigen Grundstück von 1000 m² inmitten des begehrten Gewerbegebiets Süd in Zweibrücken. Das Baujahr der Immobilie im Jahr 2000 verspricht moderne Ausstattung und effiziente Bauweise. Eine große gepflasterte Hofeinfahrt führt zu Ihrem neuen Geschäftssitz, der vollständig eingezäunt ist und durch ein elektrisches Tor gesichert wird.
Ausstattungsmerkmale und Aufteilung:
Zwei Garagen und ein Carport bieten umfangreiche Möglichkeiten für Fahrzeugunterbringung und Lagerung.
Eine Dachterrasse im Obergeschoss lädt zu entspannten Arbeitspausen oder geschäftlichen Veranstaltungen im Freien ein.
Ein massives Treppenhaus verbindet beide Etagen miteinander und gewährleistet einen reibungslosen Zugang zu allen Bereichen der Immobilie.
Raumaufteilung:
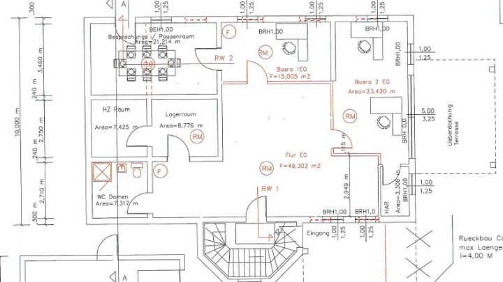
Das Erdgeschoss umfasst eine großzügige Büro- und Gewerbefläche von ca. 135 m², die mit einem großen zentralen Flur, mehreren Büros, Besprechungs- und Pausenräumen sowie einem Badezimmer mit bodengleicher Dusche vielfältige Nutzungsmöglichkeiten bietet.
Im Obergeschoss erwarten Sie weitere ca. 138 m² Büro- und Gewerbefläche, verteilt auf eine voll ausgestattete Küche, mehrere Büros mit Zugang zu überdachten Terrassen, ein weiteres Badezimmer sowie einen Abstellraum.
Perfekte Balance zwischen Funktionalität und Ästhetik:
Diese Gewerbeimmobilie besticht nicht nur durch ihre erstklassige Ausstattung und vielseitige Raum-aufteilung, sondern auch durch ihre ästhetische Gestaltung. Genießen Sie die optimale Arbeitsum-gebung und setzen Sie neue Maßstäbe für Ihr Un-ternehmen in Zweibrücken.
Büro- und Gewerbefläche gesamt ca. 273 m² (Erdgeschoss + Obergeschoss)
Garage 1 mit ca. 35 m² Nutzfläche
Garage 2 mit ca. 30 m² Nutzfläche
Erdgeschoss mit ca. 135 m² Büro- und Gewerbefläche
- Großer zentraler Flur mit ca. 49 m²
- Büro 1
- Büro 2 mit Ausgang auf eine überdachte Terrasse und zusätzlichem Hausanschlussraum
- Besprechungs- und Pausenraum
- Lager- und Technikraum mit weiterem Zugang zum Heizraum
- Badezimmer mit zusätzlicher bodengleicher Dusche
Obergeschoss mit ca. 138 m² Büro- und Gewerbefläche
- Großer zentraler Flur mit ca. 35 m²
- Küche mit Einbauküche im Flurbereich integriert
- Büro 1 mit Ausgang auf eine überdachte Terrasse
- Büro 2 mit Ausgang auf eine überdachte Terrasse
- Büro 3
- Büro 4
- Büro 5
- Badezimmer mit zusätzlicher Dusche und Fenster
- Abstellraum
Attraktive Gewerbeimmobilie im Herzen von Zweibrücken
Diese einzigartige Gewerbeimmobilie befindet sich im begehrten Gewerbegebiet Süd in Zweibrücken. Das Gewerbegebiet Süd ist bekannt für seine ausgezeichnete Infrastruktur und seine strategisch günstige Lage.
Perfekte Anbindung
Das Gewerbegebiet Süd ist verkehrstechnisch optimal angebunden. Die Autobahnen A8 und A62 sind nur wenige Fahrminuten entfernt und bieten eine schnelle Anbindung an wichtige Wirtschaftszentren wie Saarbrücken, Kaiserslautern und Pirmasens. Darüber hinaus sorgen die nahegelegenen Bundesstraßen und Landstraßen für eine ausgezeichnete Erreichbarkeit per Auto. Auch der öffentliche Nahverkehr ist hervorragend ausgebaut, mit Bushaltestellen in unmittelbarer Nähe der Immobilie.
Infrastruktur und Versorgung
In unmittelbarer Umgebung der Gewerbeimmobilie finden sich zahlreiche Einkaufsmöglichkeiten, Restaurants und Dienstleister. Auch Schulen, Kindergärten und weitere öffentliche Einrichtungen sind gut erreichbar. Die zentrale Lage ermöglicht es Ihren Mitarbeitern und Kunden, alle Annehmlichkeiten des täglichen Lebens in kurzer Zeit zu erreichen.
Wachstumsregion Zweibrücken
Zweibrücken ist eine dynamische Stadt mit einem starken Wirtschaftswachstum. Das Gewerbegebiet Süd gilt als einer der attraktivsten Standorte für Unternehmen in der Region. Hier profitieren Sie von einer florierenden Wirtschaft, einem gut ausgebildeten Arbeitskräftepotenzial und einer lebendigen Unternehmenslandschaft.
Fazit
Diese Gewerbeimmobilie im Gewerbegebiet Süd bietet Ihnen eine hervorragende Lage mit optimaler Anbindung und vielfältigen Möglichkeiten für Ihr Unternehmen. Nutzen Sie diese Gelegenheit und sichern Sie sich Ihren Platz in einer aufstrebenden Region der Süd-West Pfalz.
Der Makler-Vertrag mit uns und/oder unserem Beauftragten kommt durch die Bestätigung der Inanspruchnahme unserer Maklertätigkeit in Textform zustande, wie z.B. insbesondere die Unterschrift des Suchkundenvertrages und/oder des Objekt-Exposés. Die Höhe der Courtage richtet sich nach den ab dem 23.12.2020 in Kraft getretenen gesetzlichen Regelungen zur Teilung der Maklercourtage. Hiernach wird die Courtage regelmäßig für beide Parteien (Eigentümer und Käufer) 3,57 % auf den Kaufpreis inklusive gesetzlicher Umsatzsteuer betragen und ist bei notariellem Vertragsabschluss verdient und fällig. Die Höhe der Bruttocourtage unterliegt einer Anpassung bei Steuersatzänderung. Immobilia GmbH und ggf. deren Beauftragte erhalten einen unmittelbaren Zahlungsanspruch gegenüber dem Käufer (Vertrag zugunsten Dritter, § 328 BGB). Wir haben mit dem Verkäufer einen Maklervertrag in gleicher Höhe abgeschlossen. Grunderwerbssteuer, Notar- und Gerichtskosten trägt der Käufer.
Alleinverkauf durch die Fa. Immobilia GmbH
Ihr Ansprechpartner : Immobilia GmbH , 66482 Zweibrücken , Poststraße 19 , Immobilienberater Kai Goedicke B.A. Architektur , Tel. Nr. 06332 - 903460 , Email : Kai.Goedicke@immo-gessner.de
Unsere Objekte befindet sich im freien Verkauf. Wir sind auch für den Eigentümer tätig.
Die Objektdaten wurden uns vom Eigentümer genannt und sind ohne Gewähr.
Die Fälligkeit der Provision entsteht mit dem Abschluss des Kauf bzw. Mietvertrages .
Es gelten die Provisionen wie im Exposé angezeigt.
Die in den Exposé und Beschreibungen u. a. enthaltenen Angaben basieren auf Informationen des Verkäufers. Zu eigenen Nachforschungen ist die Fa. Immobilia GmbH nicht verpflichtet. Sie übernimmt deshalb keine Haftung für die Richtigkeit und Vollständigkeit der Angaben, es sei denn, die Unrichtigkeit beruht auf grobem Verschulden der Fa. Immobilia GmbH.
Besichtigungstermine sind jederzeit nach Absprache möglich.
Energieausweis in Bearbeitung!