Sprache auswählen
548.800 €
Kaufpreis5
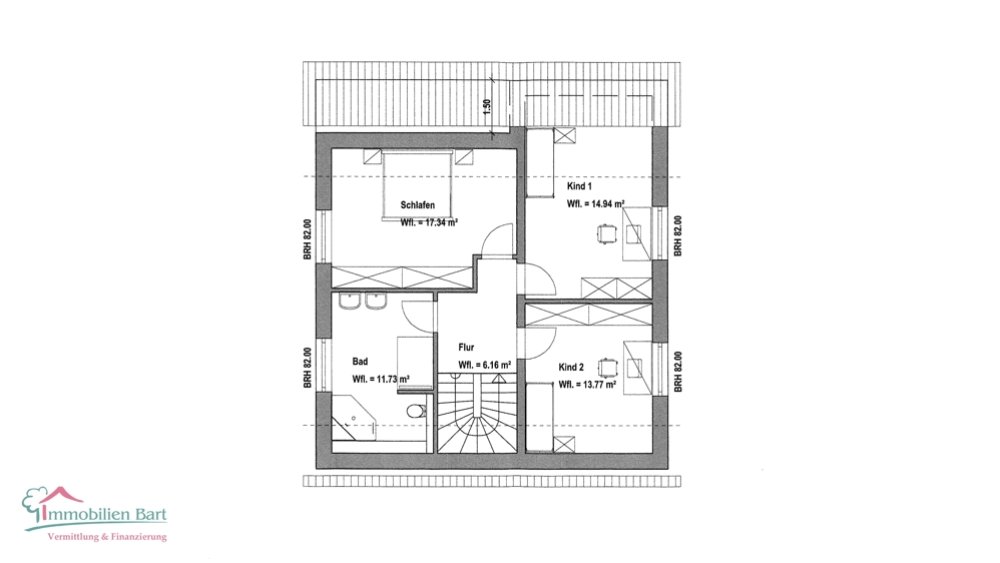
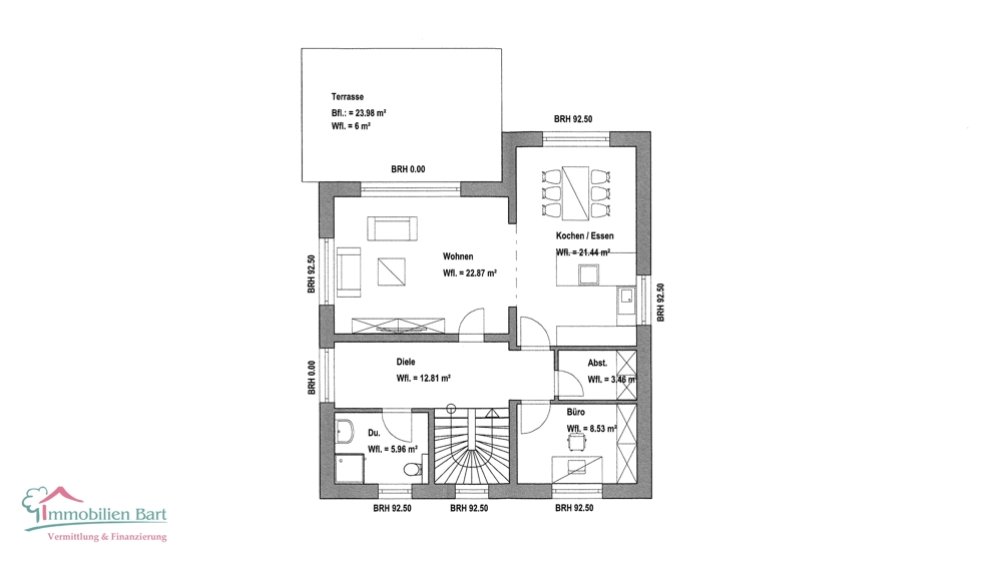
Anzahl Zimmer3
Anzahl Schlafzimmer145 m²
Wohnfläche540 m²
Grundstücksfläche66693 Mettlach
Mettlach liegt im Herzen des Dreiländerecks. Rund um die Saarschleife, nahe der Grenze zu Luxemburg und Frankreich gelegen, finden Sie alles was das Herz begehrt. Ein Geheimtipp für alle, die Ruhe und Entspannung suchen, aber auch für diejenigen die ihre Freizeit aktiv genießen wollen. Hier können Sie viel erleben: Radfahren, Wandern und Ausflüge in die Kulturstädte jenseits der Grenzen Trier, Luxemburg, Saarbrücken oder Metz haben für jeden etwas zu bieten. Mettlach verfügt über eine intakte Infrastruktur. Geschäfte für den täglichen Bedarf befinden sich in unmittelbarer Nähe. Die Autobahnanbindungen Saarbrücken und Luxemburg sind in wenigen Fahrminuten gut zu erreichen.
06 km bis D-Orscholz
09 km bis D-Merzig
20 km bis L-Remich
42 km bis L-Kirchberg
METTLACH-KEUCHINGEN:
In einer ruhigen Seitenstraße bieten wir Ihnen dieses Projekt, Neubau eines massiven Wohnhauses, auf einem 5,4 Ar großen Grundstück an.
BESONDERHEITEN:
- Baujahr 2026
- teilunterkellert
- 3 Schlafzimmer plus Büro
- 2 Bäder
Schlüsselfertiges Bauen gemäß Baubeschreibung
Sie bestimmen noch den kompletten Innenausbau
Weitere Informationen erhalten Sie gerne auf Anfrage
Unser gesamtes Immobilienangebot können Sie unter www.immobilien-bart.de einsehen.
Haben wir Ihr Interesse geweckt? Für einen unverbindlichen Besichtigungstermin stehen wir Ihnen nach vorheriger Terminabsprache gerne zur Verfügung. Bitte haben Sie Verständnis dafür, dass wir Anfragen nur bearbeiten, wenn uns der vollständige Name, die Postanschrift und eine Rufnummer mitgeteilt wird. Ihre Daten werden selbstverständlich streng vertraulich und nur für diese Anfrage verwendet.
Sie möchten diese Immobilie finanzieren?
Vereinbaren Sie mit uns einen Beratungstermin, natürlich kostenfrei und unverbindlich. Aus einem Pool von 100 Banken finden wir, auch für Sie, die passende Finanzierung!
Die Käuferprovision beträgt 1,785 % inkl. MwSt. vom notariell beurkundeten Kaufpreis und ist verdient und fällig mit der notariellen Beurkundung.
Haftungsvorbehalt: Sämtliche Angaben erhielten wir vom Eigentümer und geben diese ohne Haftung weiter. Irrtum und Zwischenverkauf bleiben vorbehalten.
Ansprechpartner
Immobilien Bart GmbH
Anbieter
66706 Perl-Nennig
Aktivieren Sie den Suchagenten und Sie erhalten die neuesten Angebote zu Ihrer Suche sofort und kostenlos per E-Mail. Sie können Ihren Suchauftrag jederzeit bearbeiten oder beenden.
Suchagenten jetzt aktivieren! Neue Angebote erhalten
Immobilienportal-saarland.de © 2025 | Alle Rechte vorbehalten