Sprache auswählen
2.249.800 €
Kaufpreis8
Anzahl Zimmer4
Anzahl Schlafzimmer341 m²
Wohnfläche1.113 m²
Grundstücksfläche54457 Wincheringen
Die Moselgemeinde Wincheringen befindet sich direkt an der Grenze zu Luxemburg. Die Grenzbrücke Wincheringen/Wormeldange ist in nur 5 Minuten, Luxemburg in 30 Minuten, erreichbar. Das öffentliche Verkehrsnetz, auch nach Luxemburg, ist gut ausgebaut. Wincheringen verfügt ebenfalls über einen Bahnhof mit regelmäßigen Anbindungen nach Trier und Perl mit weiterführenden Schulen, Universitäten und medizinischer Versorgung. Wincheringen selbst verfügt über eine Kindertagesstätte sowie eine Grundschule mit bilingualem Zweig. Zahlreiche Sport- und Kulturvereine bieten verschiedenste Anregungen. Wincheringen besticht sowohl durch seine zentrale Lage als auch durch seine Familien- und Kinderfreundlichkeit.
05 km bis L-Wormeldange
17 km bis D-Saarburg
24 km bis D-Trier
30 km bis L-Kirchberg
GRENZNÄHE LUXEMBURG:
Hier in WINCHERINGEN "AUF MONT" bieten wir Ihnen diese exklusive Villa (KAMPA HAUS) mit einer Wohnfläche von ca. 341 m² auf einem 11,1 Ar großen Grundstück an. Die lichtdurchfluteten Räume bieten eine sehr angenehme Wohnatmosphäre. Eine große Lounge mit Zugang zur Terrasse eignet sich ideal um Gäste zu empfangen. Die Immobilie verfügt über eine Doppelgarage und eine großzügige Terrasse mit beheizbarem Pool mit Gegenstromanlage.
Besonderheiten:
- beheizbarer Pool mit Gegenstromanlage
- große Terrasse
- helle, lichtdurchflutete Räume
- exklusive Küche im Kaufpreis enthalten
- BWT Entkalkungsanlage für Trinkwasser
- Garten
- Gartenhaus
- Doppelgarage mit großer Einfahrt
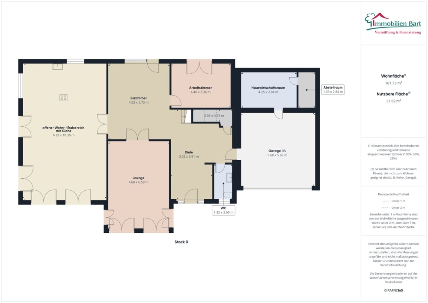
Die Raumaufteilung ist wie folgt:
Erdgeschoss:
Diele mit Zugang zur Doppelgarage, Gäste-WC, Esszimmer, Arbeitszimmer, offener Wohn-/Essbereich mit Küche und Zugang zur Terrasse und zum Garten, Lounge
Obergeschoss:
Flur, Badezimmer, Gästezimmer, Kinderzimmer mit angrenzendem Wohnzimmer/Spielzimmer, Elternschlafzimmer mit angrenzender Ankleide und Zugang zum Elternbadezimmer
Dachgeschoss:
großer Speicher
Unser gesamtes Immobilienangebot können Sie unter www.immobilien-bart.de einsehen.
Haben wir Ihr Interesse geweckt? Für einen unverbindlichen Besichtigungstermin stehen wir Ihnen nach vorheriger Terminabsprache gerne zur Verfügung. Bitte haben Sie Verständnis dafür, dass wir Anfragen nur bearbeiten, wenn uns der vollständige Name, die Postanschrift und eine Rufnummer mitgeteilt wird. Ihre Daten werden selbstverständlich streng vertraulich und nur für diese Anfrage verwendet.
Sie möchten diese Immobilie finanzieren?
Vereinbaren Sie mit uns einen Beratungstermin, natürlich kostenfrei und unverbindlich. Aus einem Pool von 100 Banken finden wir, auch für Sie, die passende Finanzierung!
Die Käuferprovision beträgt 3,57 % inkl. MwSt. vom notariell beurkundeten Kaufpreis und ist verdient und fällig mit der notariellen Beurkundung.
Haftungsvorbehalt: Sämtliche Angaben erhielten wir vom Eigentümer und geben diese ohne Haftung weiter. Irrtum und Zwischenverkauf bleiben vorbehalten.
Die Böden sind mit Fliesen und Echtholz belegt.
Die Beheizung erfolgt durch eine Luft/Wasser-Wärmepumpe und Fußbodenheizung.
Ansprechpartner
Anbieter
66706 Perl-Nennig
Aktivieren Sie den Suchagenten und Sie erhalten die neuesten Angebote zu Ihrer Suche sofort und kostenlos per E-Mail. Sie können Ihren Suchauftrag jederzeit bearbeiten oder beenden.
Suchagenten jetzt aktivieren! Neue Angebote erhalten
Immobilienportal-saarland.de © 2025 | Alle Rechte vorbehalten