Fitten ist ein Stadtteil der Stadt Merzig im Landkreis Merzig-Wadern (Saarland). In Fitten verfügt über einen Kindergarten.
Grundschule, Geschäfte für den täglichen Bedarf, eine Apotheke, Ärzte sowie zahlreiche Restaurants befinden sich in den Nachbarorten Ballern und Hilbringen. Die Autobahnanbindungen Saarbrücken-Luxemburg sind in ca. 5 Fahrminuten zu erreichen. Die Kernstadt Merzig ist in ca. 9 Fahrminuten entfernt.
22 km bis D-Saarlouis
25 km bis L-Schengen
53 km bis L-Kirchberg
Objektbeschreibung
Dieses großzügige Wohnhaus befindet sich auf einem ca. 1.054 m² großen Grundstück in ruhiger, naturnaher Lage und überzeugt durch seinen gepflegten Gesamtzustand sowie viel Platz für die ganze Familie.
Das Haupthaus, gebaut Anfang der 1960er Jahre, wurde im Jahr 1975 durch einen Anbau erweitert, sodass heute insgesamt fünf Schlafzimmer und eine flexible Raumaufteilung zur Verfügung stehen. Durch die gelungene Kombination aus Altbaucharme und Anbau entsteht eine behagliche Wohnatmosphäre mit viel Gestaltungsspielraum.
Das Anwesen verfügt über eine Doppelgarage sowie einen zusätzlichen Außenstellplatz. Der großzügige Garten bietet sonnige Rückzugsorte und einen idyllischen Blick ins Grüne, ideal für Erholung und Freizeit.
Dank der ruhigen und naturnahen Wohnlage eignet sich die Immobilie perfekt für Familien oder naturverbundene Menschen, die Wert auf großzügiges Wohnen in gepflegter Umgebung legen.
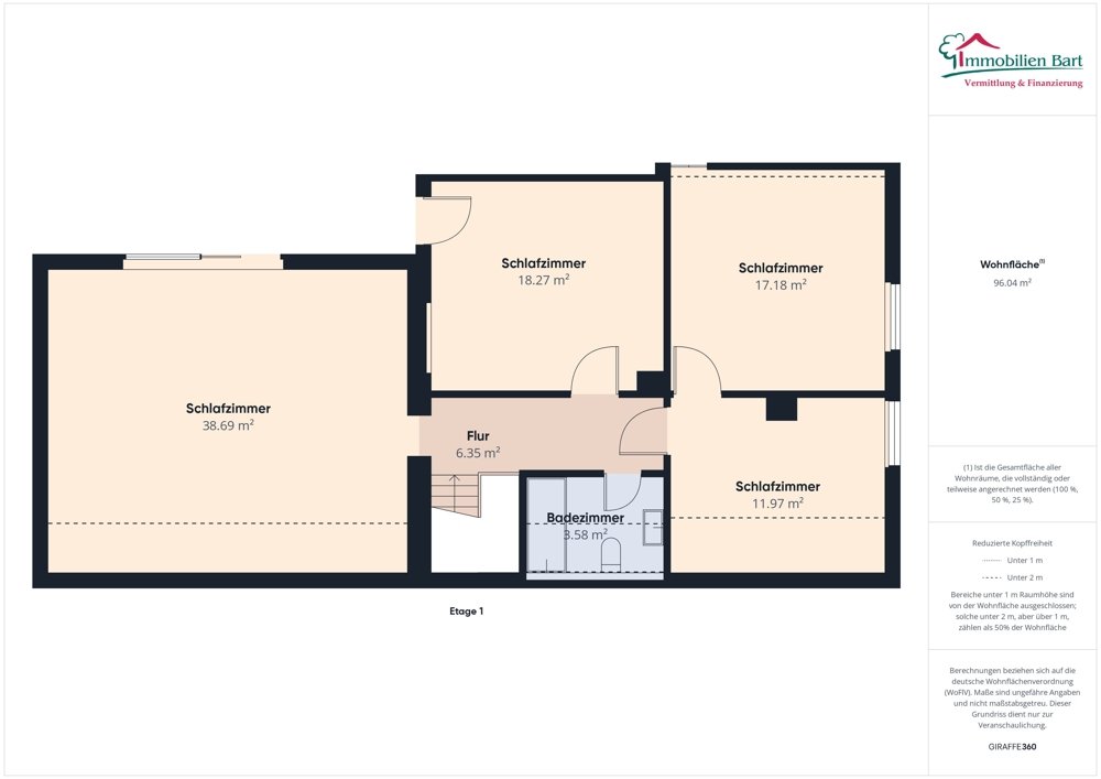
Die Raumaufteilung ergibt sich wie folgt:
Erdgeschoss:
Diele, Wohnzimmer mit Zugang zum Balkon, Esszimmer mit Zugang zum Balkon, Küche, Schlafzimmer, Badezimmer
Obergeschoss:
Flur, 4 Schlafzimmer, eins davon mit Zugang zum Balkon, Badezimmer
Unser gesamtes Immobilienangebot können Sie unter www.immobilien-bart.de einsehen.
Haben wir Ihr Interesse geweckt? Für einen unverbindlichen Besichtigungstermin stehen wir Ihnen nach vorheriger Terminabsprache gerne zur Verfügung. Bitte haben Sie Verständnis dafür, dass wir Anfragen nur bearbeiten, wenn uns der vollständige Name, die Postanschrift und eine Rufnummer mitgeteilt wird. Ihre Daten werden selbstverständlich streng vertraulich und nur für diese Anfrage verwendet.
Sie möchten diese Immobilie finanzieren?
Vereinbaren Sie mit uns einen Beratungstermin, natürlich kostenfrei und unverbindlich. Aus einem Pool von 100 Banken finden wir, auch für Sie, die passende Finanzierung!
Die Käuferprovision beträgt 3,57 % inkl. MwSt. vom notariell beurkundeten Kaufpreis und ist verdient und fällig mit der notariellen Beurkundung.
Haftungsvorbehalt: Sämtliche Angaben erhielten wir vom Eigentümer und geben diese ohne Haftung weiter. Irrtum und Zwischenverkauf bleiben vorbehalten.
Ausstattung
Boden
Parkett, Kunststoff
heizungsart
Zentralheizung
befeuerung
Öl
Unterkellert
Ja
Die Heizung erfolgt durch eine Öl-Zentralheizung.
Besonderheiten:
- großzügiges Grundstück mit ca. 1.054 m² Fläche
- ruhige, naturnahe Wohnlage mit schönem Blick ins Grüne
- fünf Schlafzimmer
- gepflegtes Anwesen mit vielfältigen Nutzungsmöglichkeiten
Als Kapitalanlage oder Eigenbedarf kleines Reihenhaus zentral gelegen mit Terrasse ohne Wiesenfläche
95 m² Wohnfläche • 149 m² Grundstücksfläche • 3 Anzahl Zimmer • 2 Anzahl Schlafzimmer • 2 Anzahl Badezimmer
Sie haben nicht das passende gefunden? - Aktivieren Sie den Suchagenten
Aktivieren Sie den Suchagenten und Sie erhalten die neuesten Angebote zu Ihrer Suche sofort und kostenlos per E-Mail. Sie können Ihren Suchauftrag jederzeit bearbeiten oder beenden. Suchagenten jetzt aktivieren! Neue Angebote erhalten