Sprache auswählen
349.800 €
Kaufpreis5
Anzahl Zimmer4
Anzahl Schlafzimmer152 m²
Wohnfläche749 m²
Grundstücksfläche66706 Perl
Im grenzenlosen Dreiländereck Deutschland, Luxemburg und Frankreich liegt der charmante und beliebte Ort Perl. Der ideale Wohnort für Pendler. Zahlreiche Sehenswürdigkeiten liegen in der Gemeinde oder in den Nachbargegenden. Eine intakte Infrastruktur wie z.B. zahlreiche größere Einkaufsmärkte, Schulen, u.a. die grenzüberschreitende Gemeinschaftsschule "Schengen-Lyzeum", Kindergarten mit Krippe, etc., sind fußläufig zu erreichen. Die Autobahnanbindungen Saarbrücken-Luxemburg sind in wenigen Fahrminuten gut zu erreichen.
02 km bis L-Schengen
24 km bis D-Merzig
27 km bis D-Saarburg
Hier in PERL bieten wir Ihnen dieses ca. 152 m² große Wohnhaus in ruhiger Wohnlage an.
Besonderheiten dieser Immobile:
- GRENZE L-SCHENGEN/L-REMICH
- gepflegtes Anwesen
- Top-ruhige Lage
- Garten nach Südwesten ausgerichtet
- 4 Schlafzimmer
- 2 Badezimmer + Gäste-WC
- Garage
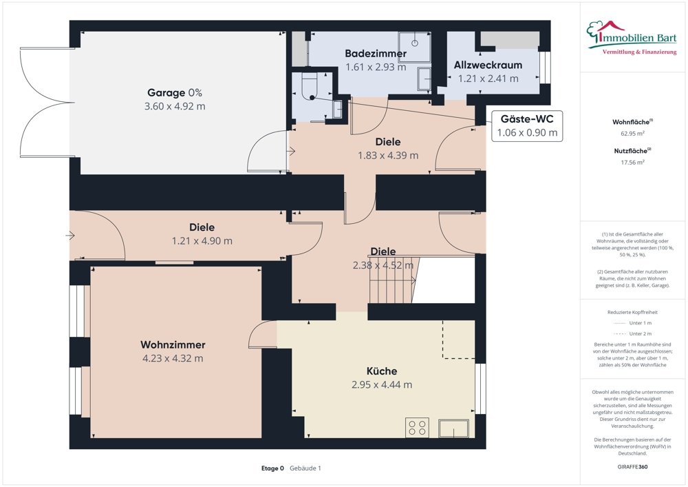
Die Raumaufteilung ist wie folgt:
Erdgeschoss:
Diele, Küche, Wohnzimmer, Badezimmer, Gäste-WC, Allzweckraum, Zugang zur Garage
Obergeschoss:
Diele, 4 Schlafzimmer (1 davon mit sep. Ankleide), Badezimmer
Kellergeschoss:
Gewölbekeller, Heizungsraum
Unser gesamtes Immobilienangebot können Sie unter www.immobilien-bart.de einsehen.
Haben wir Ihr Interesse geweckt? Für einen unverbindlichen Besichtigungstermin stehen wir Ihnen nach vorheriger Terminabsprache gerne zur Verfügung. Bitte haben Sie Verständnis dafür, dass wir Anfragen nur bearbeiten, wenn uns der vollständige Name, die Postanschrift und eine Rufnummer mitgeteilt wird. Ihre Daten werden selbstverständlich streng vertraulich und nur für diese Anfrage verwendet.
Sie möchten diese Immobilie finanzieren?
Vereinbaren Sie mit uns einen Beratungstermin, natürlich kostenfrei und unverbindlich. Aus einem Pool von 100 Banken finden wir, auch für Sie, die passende Finanzierung!
Die Käuferprovision beträgt 3,57 % inkl. MwSt. vom notariell beurkundeten Kaufpreis und ist verdient und fällig mit der notariellen Beurkundung.
Haftungsvorbehalt: Sämtliche Angaben erhielten wir vom Eigentümer und geben diese ohne Haftung weiter. Irrtum und Zwischenverkauf bleiben vorbehalten.
Die Böden sind mit Fliesen, Holzdielen und PVC belegt.
Die Beheizung erfolgt durch eine Öl-Zentralheizung.
Ansprechpartner
Immobilien Bart GmbH
Anbieter
66706 Perl-Nennig
Aktivieren Sie den Suchagenten und Sie erhalten die neuesten Angebote zu Ihrer Suche sofort und kostenlos per E-Mail. Sie können Ihren Suchauftrag jederzeit bearbeiten oder beenden.
Suchagenten jetzt aktivieren! Neue Angebote erhalten
Immobilienportal-saarland.de © 2025 | Alle Rechte vorbehalten