Der Kurort ORSCHOLZ ist der größte Ortsteil der Gemeinde Mettlach im Landkreis Merzig-Wadern. Der heilklimatische Luftkurort Orscholz ist bekannt durch die berühmte Cloef - mit dem einzigartigen Blick auf das Wahrzeichen des Saarlandes - die wunderschöne Saarschleife. Orscholz ist ein idealer Wohnort für Familien mit Kindern. Grundschule, Gesamt- und Gemeinschaftsschule, Kindergarten mit Kita sind vor Ort. Nicht zu vergessen, das bekannte Gesundheitszentrum Saarschleife und die sehr gute Infrastruktur. Grenznah zu L-Remich und L-Schengen.
STÜNDLICHE BUSVERBINDUNGEN NACH LUXEMBURG MIT DEM SAAR-LUX-BUS.
Zum Deutsch-Luxemburgischen Schengen-Lyzeum in Perl besteht eine Busverbindung. Die Autobahnanbindungen Luxemburg und Saarbrücken erreichen Sie in wenigen Fahrminuten.
17 km bis D-Saarburg
19 km bis D-Merzig
14 km bis L-Remich / Schengen
36 km bis L-Kirchberg
Objektbeschreibung
15 MINUTEN VON L-REMICH/SCHENGEN: ORSCHOLZ
Dieses gepflegte Wohnhaus in ruhiger Lage von Orscholz bietet vielseitige Nutzungsmöglichkeiten und eignet sich ideal für Familien die viel Platz benötigen.
Das Haus erstreckt sich über drei Etagen – Erdgeschoss, Obergeschoss und Kellergeschoss – und kann als Einfamilienhaus oder als Zweifamilienhaus genutzt werden. Die abgeschlossene Wohnung im Erdgeschoss ermöglicht komfortables Wohnen auf einer Ebene. Die Wohnung im Obergeschoss ist derzeit noch offen gestaltet und lässt sich flexibel nach eigenen Vorstellungen unterteilen.
Der großzügige Keller bietet reichlich Stauraum sowie vielfältige Nutzungsmöglichkeiten – sei es als Hobbyraum, Werkstatt oder Lagerfläche.
Zum Haus gehört eine Garage sowie sechs Außenstellplätze – ideal für Familien mit mehreren Fahrzeugen oder Besucher. Der schön angelegte Garten lädt zum Verweilen ein und bietet viel Platz zur Erholung oder für gärtnerische Aktivitäten.
Ein ideales Objekt für alle, die großzügiges Wohnen mit Gestaltungsspielraum in einer attraktiven Umgebung suchen.
Die Raumaufteilung ergibt sich wie folgt:
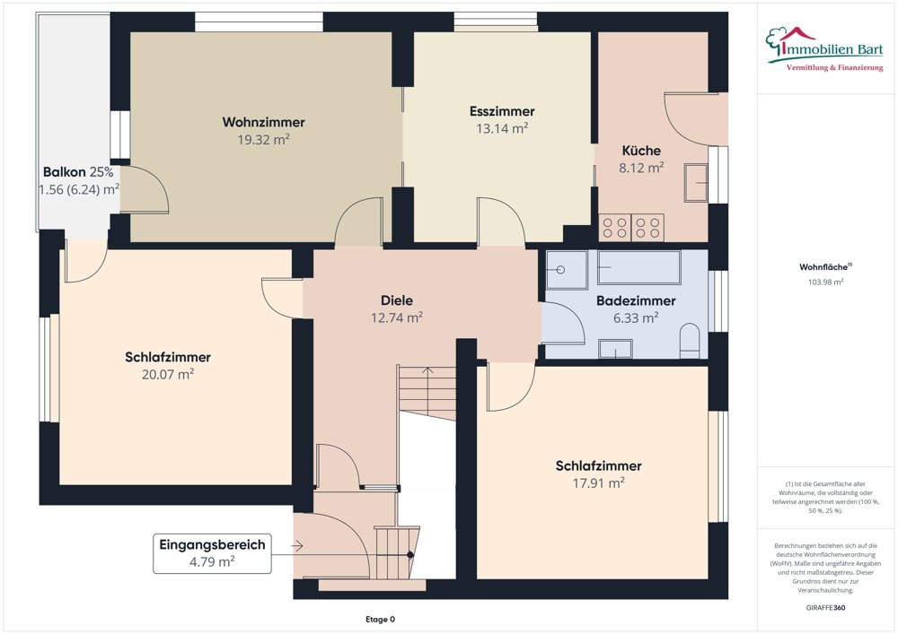
Erdgeschoss:
Eingangsbereich, Diele, Küche mit Zugang zum Garten, Wohn-Esszimmer mit Zugang zum Balkon, Schlafzimmer mit Zugang zum Balkon, Schlafzimmer, Badezimmer
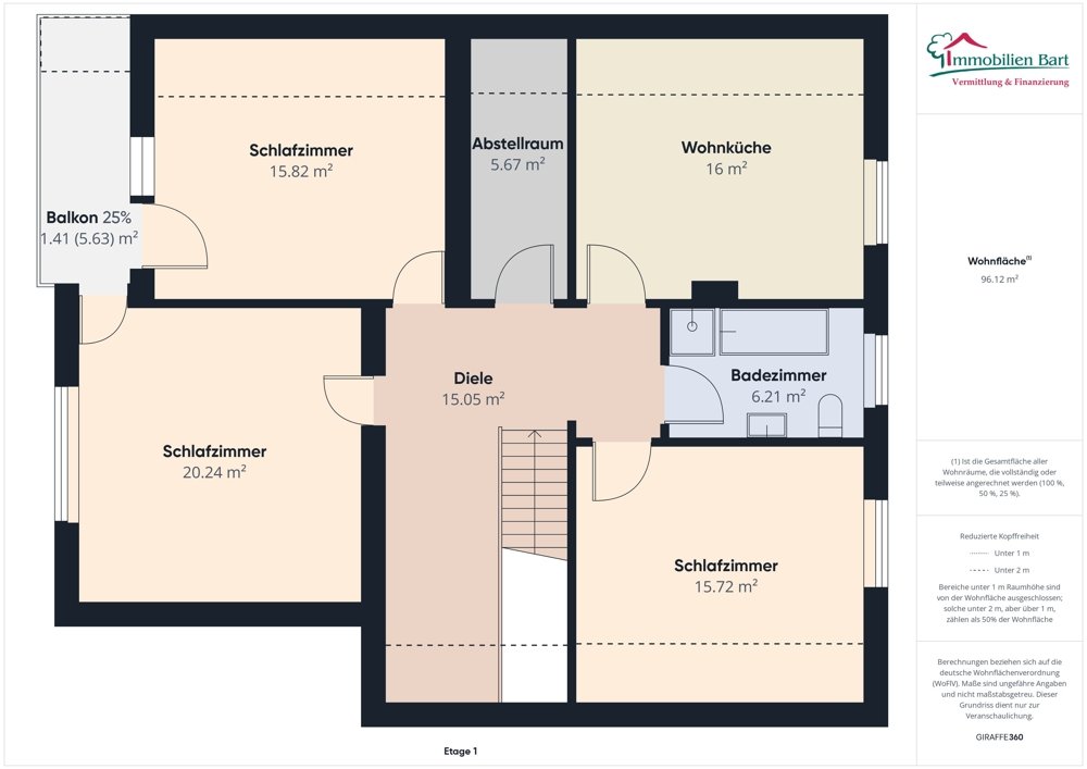
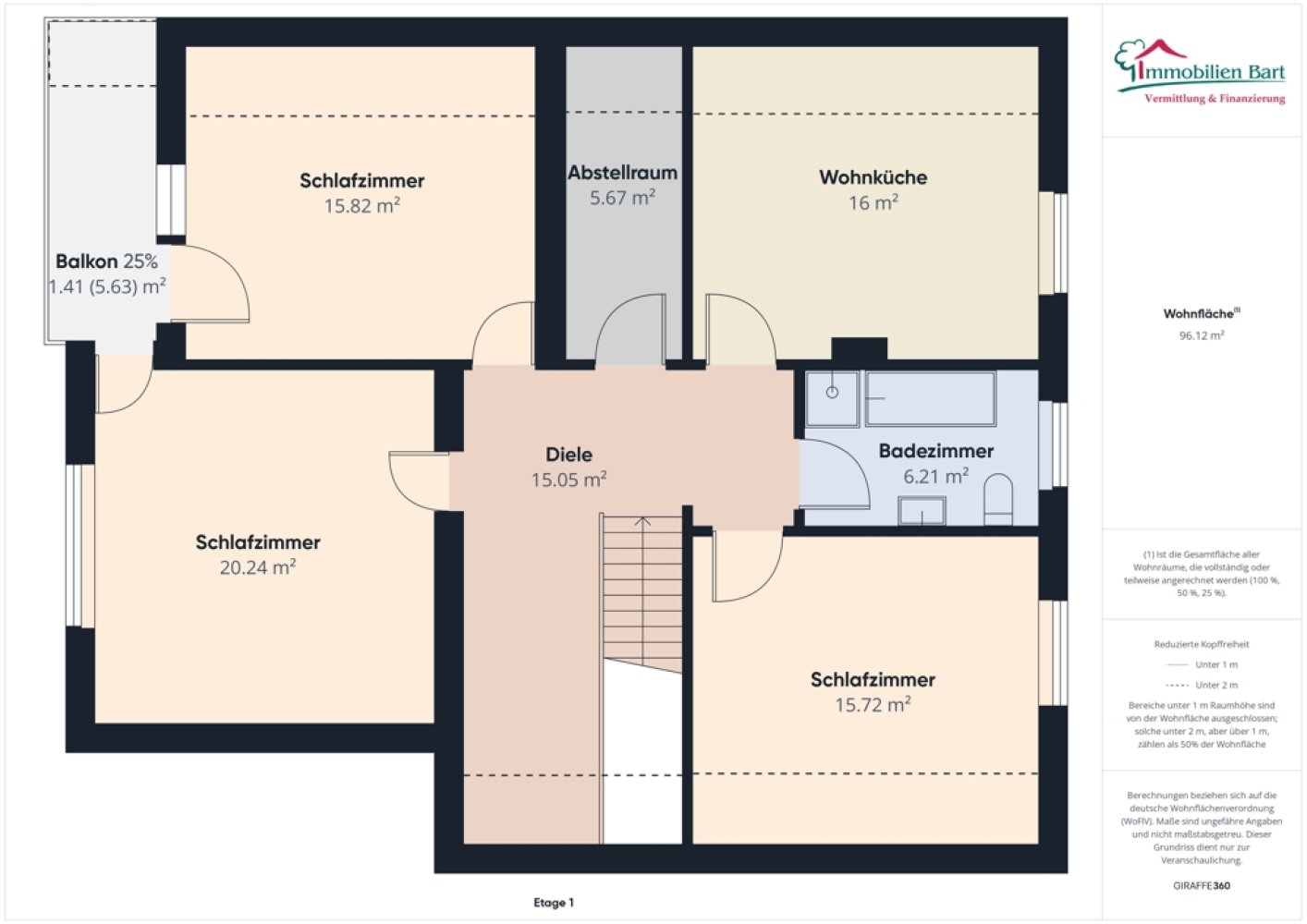
Obergeschoss:
Diele, Wohnküche, 3 Schlafzimmer (zwei davon mit Zugang zum Balkon), Abstellraum, Badezimmer
Kellergeschoss:
Flur, 3 Kellerräume, Waschküche mit WC und Zugang zum Garten
Sonstiges
Unser gesamtes Immobilienangebot können Sie unter www.immobilien-bart.de einsehen.
Haben wir Ihr Interesse geweckt? Für einen unverbindlichen Besichtigungstermin stehen wir Ihnen nach vorheriger Terminabsprache gerne zur Verfügung. Bitte haben Sie Verständnis dafür, dass wir Anfragen nur bearbeiten, wenn uns der vollständige Name, die Postanschrift und eine Rufnummer mitgeteilt wird. Ihre Daten werden selbstverständlich streng vertraulich und nur für diese Anfrage verwendet.
Sie möchten diese Immobilie finanzieren?
Vereinbaren Sie mit uns einen Beratungstermin, natürlich kostenfrei und unverbindlich. Aus einem Pool von 100 Banken finden wir, auch für Sie, die passende Finanzierung!
Die Käuferprovision beträgt 3,57 % inkl. MwSt. vom notariell beurkundeten Kaufpreis und ist verdient und fällig mit der notariellen Beurkundung.
Haftungsvorbehalt: Sämtliche Angaben erhielten wir vom Eigentümer und geben diese ohne Haftung weiter. Irrtum und Zwischenverkauf bleiben vorbehalten.
Ausstattung
heizungsart
Etagenheizung
befeuerung
Elektro
Unterkellert
Ja
Die Beheizung erfolgt mittels Nachtspeicherheizung.
Sie haben nicht das passende gefunden? - Aktivieren Sie den Suchagenten
Aktivieren Sie den Suchagenten und Sie erhalten die neuesten Angebote zu Ihrer Suche sofort und kostenlos per E-Mail. Sie können Ihren Suchauftrag jederzeit bearbeiten oder beenden. Suchagenten jetzt aktivieren! Neue Angebote erhalten