Sprache auswählen
364.800 €
Kaufpreis5
Anzahl Zimmer3
Anzahl Schlafzimmer228 m²
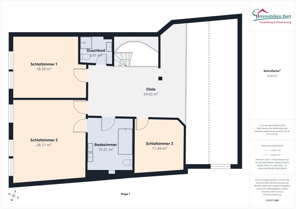
Wohnfläche200 m²
Grundstücksfläche54441 Kirf / Meurich
Kirf-Meurich ist eine Ortsgemeinde im Landkreis Trier-Saarburg in Rheinland-Pfalz. Sie gehört der Verbandsgemeinde Saarburg an. Kirf liegt in direkter Grenznähe zu Luxemburg. Der Grenzübergang L-Remich sowie der Autobahnanschluss A13 Richtung Luxemburg/A8 Richtung Saarbrücken sind etwa 15 Minuten entfernt. Bushaltestellen für die grenzüberschreitende Busverbindung "SaarLuxBus" befinden sich in den umliegenden Nachbarorten.
Die Kleinstadt Saarburg befindet sich nur 10 km entfernt und verfügt über zahlreiche Einkaufs- und Freizeitmöglichkeiten mit attraktiven Ausflugszielen. Außerdem befindet sich hier ein Krankenhaus sowie mehrere Fach-Arztpraxen und Apotheken, Kindertagesstätten, Grundschulen und weiterführende Schulen sowie ein Bahnhof.
11 km bis D- Saarburg
23 km bis D- Merzig
12 km bis L- Remich
12 km bis L- Wormeldange
10 MINUTEN BIS L - REMICH / SCHENGEN!
Hier in KIRF-MEURICH bieten wir Ihnen dieses charmante Wohnhaus an.
Mit einer Wohnfläche von ca. 228 m² gewährt die Immobilie nicht nur viel Platz für die Familie sondern beeindruckt jeden mit der tollen Aussicht ins Grüne.
Die Raumaufteilung ist wie folgt:
Erdgeschoss:
Diele, Hauswirtschaftsraum, Gäste-WC, Korridor, Küche mit Abstellraum, Wohn-Esszimmer mit Loggia und Zugang zum Balkon
Obergeschoss:
Diele, 3 Schlafzimmer, 2 Badezimmer
Kellergeschoss:
großer Partykeller, Heizungsraum und Öltankkeller, 2 Kellerräume
Unser gesamtes Immobilienangebot können Sie unter www.immobilien-bart.de einsehen.
Haben wir Ihr Interesse geweckt? Für einen unverbindlichen Besichtigungstermin stehen wir Ihnen nach vorheriger Terminabsprache gerne zur Verfügung. Bitte haben Sie Verständnis dafür, dass wir Anfragen nur bearbeiten, wenn uns der vollständige Name, die Postanschrift und eine Rufnummer mitgeteilt wird. Ihre Daten werden selbstverständlich streng vertraulich und nur für diese Anfrage verwendet.
Sie möchten diese Immobilie finanzieren?
Vereinbaren Sie mit uns einen Beratungstermin, natürlich kostenfrei und unverbindlich. Aus einem Pool von 100 Banken finden wir, auch für Sie, die passende Finanzierung!
Die Käuferprovision beträgt 3,57 % inkl. MwSt. vom notariell beurkundeten Kaufpreis und ist verdient und fällig mit der notariellen Beurkundung.
Haftungsvorbehalt: Sämtliche Angaben erhielten wir vom Eigentümer und geben diese ohne Haftung weiter. Irrtum und Zwischenverkauf bleiben vorbehalten.
Die Böden sind mit Fliesen und Laminat ausgestattet
Die Beheizung erfolgt durch eine Öl-Zentralheizung
Besonderheiten der Immobilie:
- Baujahr 1998!
- offenes und großzügiges Wohnen
- unverbaubarer Weitblick
- 3 Schlafzimmer
- Balkon
- Keller
- großer Partykeller
Ansprechpartner
Immobilien Bart GmbH
Anbieter
66706 Perl-Nennig
Aktivieren Sie den Suchagenten und Sie erhalten die neuesten Angebote zu Ihrer Suche sofort und kostenlos per E-Mail. Sie können Ihren Suchauftrag jederzeit bearbeiten oder beenden.
Suchagenten jetzt aktivieren! Neue Angebote erhalten
Immobilienportal-saarland.de © 2025 | Alle Rechte vorbehalten