Hilbringen ist einer von 17 Stadtteilen der Stadt Merzig im Landkreis Merzig-Wadern (Saarland) und liegt gegenüber der Kernstadt am linken Saarufer und verfügt über eine intakte Infrastruktur. Geschäfte für den täglichen Bedarf sind fußläufig zu erreichen. Eine Apothekte, Ärzte sowie zahlreiche Restaurants befinden sich ebenfalls im Ortskern. Die Autobahnanbindungen Saarbrücken-Luxemburg sind in einer Fahrminute zu erreichen. Die Kernstadt Merzig ist in ca. 5 Fahrminunten entfernt.
04 km bis D-Merzig
21 km bis D-Saarlouis
25 km bis L-Schengen
53 km bis L-Kirchberg
Objektbeschreibung
Dieses großzügige Anwesen vereint Wohnen, Vermieten und gewerbliche Nutzung in einem attraktiven Gesamtpaket. Es besteht aus einem Wohnhaus, einer separaten Wohnung sowie einer voll ausgestatteten Gaststätte mit Gastraum, Küche und Nebenräumen – ideal für Selbstständige, Gastronomen oder Investoren.
Das Wohnhaus verfügt über 3–4 Schlafzimmer, einen Wohnbereich, Küche, Bad und einen Balkon. Es besteht jedoch ein deutlicher Sanierungsbedarf – ideal für Käufer, die ein Objekt nach eigenen Vorstellungen renovieren möchten.
Über der Gaststätte befindet sich eine separate Wohnung mit drei Schlafzimmern und einem Balkon – ideal zur Eigennutzung oder Vermietung.
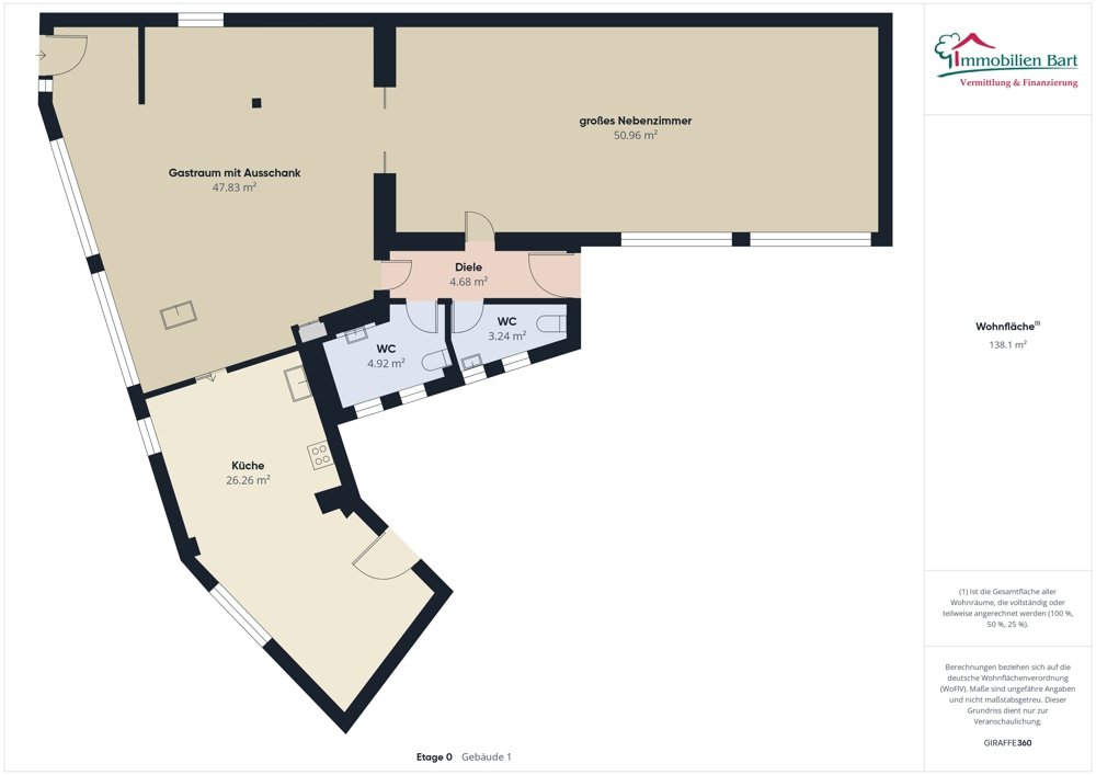
Die angeschlossene Gaststätte verfügt über einen einladenden Gastraum mit Thekenbereich, einer voll ausgestatteten Küche, Lagerflächen und sanitäre Anlagen.
Je nach Ausstattung und Konzept lässt sich der gastronomische Betrieb zeitnah wieder aufnehmen oder an neue Ideen anpassen.
Das Grundstück bietet ausreichend Stellplätze.
Ein Objekt mit großem Potenzial für vielfältige Nutzung – ob zur Eigennutzung, teilweisen Vermietung oder gewerblichen Weiterführung.
Sonstiges
Unser gesamtes Immobilienangebot können Sie unter www.immobilien-bart.de einsehen.
Haben wir Ihr Interesse geweckt? Für einen unverbindlichen Besichtigungstermin stehen wir Ihnen nach vorheriger Terminabsprache gerne zur Verfügung. Bitte haben Sie Verständnis dafür, dass wir Anfragen nur bearbeiten, wenn uns der vollständige Name, die Postanschrift und eine Rufnummer mitgeteilt wird. Ihre Daten werden selbstverständlich streng vertraulich und nur für diese Anfrage verwendet.
Sie möchten diese Immobilie finanzieren?
Vereinbaren Sie mit uns einen Beratungstermin, natürlich kostenfrei und unverbindlich. Aus einem Pool von 100 Banken finden wir, auch für Sie, die passende Finanzierung!
Die Käuferprovision beträgt 3,57 % inkl. MwSt. vom notariell beurkundeten Kaufpreis und ist verdient und fällig mit der notariellen Beurkundung.
Haftungsvorbehalt: Sämtliche Angaben erhielten wir vom Eigentümer und geben diese ohne Haftung weiter. Irrtum und Zwischenverkauf bleiben vorbehalten.
Ausstattung
Boden
Fliesen
heizungsart
Zentralheizung
befeuerung
Gas
Unterkellert
teils
Die Böden sind mit Fliesen, Laminat sowie Parkett belegt.
Die Beheizung in beiden Gebäuden erfolgt durch eine Gas-Zentralheizung.
Der Energieausweis ist in Bearbeitung.
Besonderheiten:
- Großzügiges Anwesen mit vielseitiger Nutzungsmöglichkeit: Wohnen, Vermieten und Gewerbe
- Voll ausgestattete Gaststätte mit Gastraum, Küche, Lager und sanitären Anlagen
- Separate Wohnung mit 3 Schlafzimmern und Balkon – ideal zur Eigennutzung oder Vermietung
- Wohnhaus mit 3–4 Schlafzimmern, Balkon und Sanierungsbedarf – viel Raum für individuelle Gestaltung
- Zahlreiche Stellplätze auf dem Grundstück vorhanden
- Attraktives Gesamtpaket für Selbstständige, Gastronomen oder Investoren
Im Klingeltal- Besonderes Einfamilienhaus mit Grundstück in bester Lage von 66482 Zweibrücken
195 m² Wohnfläche • 1.278 m² Grundstücksfläche • 6 Anzahl Zimmer • 4 Anzahl Schlafzimmer • 2 Anzahl Badezimmer
Sie haben nicht das passende gefunden? - Aktivieren Sie den Suchagenten
Aktivieren Sie den Suchagenten und Sie erhalten die neuesten Angebote zu Ihrer Suche sofort und kostenlos per E-Mail. Sie können Ihren Suchauftrag jederzeit bearbeiten oder beenden. Suchagenten jetzt aktivieren! Neue Angebote erhalten