Sprache auswählen
299.800 €
Kaufpreis5
Anzahl Zimmer3
Anzahl Schlafzimmer160 m²
Wohnfläche547 m²
Grundstücksfläche54450 Freudenburg
FREUDENBURG, am Fuße des 439 m hohen Eiderbergs gelegen, ist eine Ortsgemeinde im Landkreis Trier-Saarburg in Rheinland-Pfalz. Der Ort gehört der Verbandsgemeinde Saarburg an. Südlich des Hauptortes verläuft die Landesgrenze zum Saarland. Freudenburg verfügt über einen Kindergarten und eine Grundschule. Zahlreiche Sport- und Kulturvereine bieten verschiedenste Anregungen. Die Umgebung verfügt über eine große Anzahl von Wanderwegen.
Die Luxemburger Landesgrenze liegt etwa 15 Fahrminuten entfernt. Bushaltestellen für die grenzüberschreitende Busverbindung "SaarLuxBus" befinden sich in Orscholz, Saarburg oder Nennig.
In der nahe gelegenen Stadt Saarburg finden Sie alle Schularten, ein ausgeprägtes Gesundheitswesen und gute Einkaufsmöglichkeiten.
11 km bis D-Saarburg
32 km bis D-Trier
15 km bis L-Remich/Schengen
37 km bis L-Kirchberg
+15 MIN. BIS L-REMICH:
Hier in FREUDENBURG, bieten wir Ihnen dieses gepflegte Einfamilienhaus in ruhiger, sonniger Höhenlage an. Das Wohnhaus befindet sich auf einem ca. 5,4 Ar großen Grundstück und verfügt über eine Wohnfläche von ca. 160 m². Sowohl Garten als auch Wintergarten bieten einen unverbauten Weitblick.
EIN ANGRENZENDES BAUGRUNDSTÜCK, CA. 5 AR, KANN ZU 100.000 € ZUSÄTZLICH ERWORBEN WERDEN.
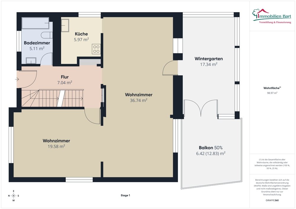
Die Raumaufteilung ist wie folgt:
Erdgeschoss:
Flur, Küche, Badezimmer, großer Wohn-/Essbereich mit Ausgang zum Wintergarten und dem Balkon
Obergeschoss:
Flur, 3 Schlafzimmer, Badezimmer
Kellergeschoss:
Kellerraum mit Duschbad, Heizungsraum, Werkstatt, Garage
Unser gesamtes Immobilienangebot können Sie unter www.immobilien-bart.de einsehen.
Haben wir Ihr Interesse geweckt? Für einen unverbindlichen Besichtigungstermin stehen wir Ihnen nach vorheriger Terminabsprache gerne zur Verfügung. Bitte haben Sie Verständnis dafür, dass wir Anfragen nur bearbeiten, wenn uns der vollständige Name, die Postanschrift und eine Rufnummer mitgeteilt wird. Ihre Daten werden selbstverständlich streng vertraulich und nur für diese Anfrage verwendet.
Sie möchten diese Immobilie finanzieren?
Vereinbaren Sie mit uns einen Beratungstermin, natürlich kostenfrei und unverbindlich. Aus einem Pool von 100 Banken finden wir, auch für Sie, die passende Finanzierung!
Die Käuferprovision beträgt 3,57 % inkl. MwSt. vom notariell beurkundeten Kaufpreis und ist verdient und fällig mit der notariellen Beurkundung.
Haftungsvorbehalt: Sämtliche Angaben erhielten wir vom Eigentümer und geben diese ohne Haftung weiter. Irrtum und Zwischenverkauf bleiben vorbehalten.
Die Böden sind mit Fliesen und Vinyl belegt.
Die Heizung erfolgt durch eine Öl-Zentralheizung.
Besonderheiten:
- unverbauter Weitblick
- ruhige, sonnige Höhenlage
- Garage
- Wintergarten
- kurzfristig verfügbar
Ansprechpartner
Immobilien Bart GmbH
Anbieter
66706 Perl-Nennig
Aktivieren Sie den Suchagenten und Sie erhalten die neuesten Angebote zu Ihrer Suche sofort und kostenlos per E-Mail. Sie können Ihren Suchauftrag jederzeit bearbeiten oder beenden.
Suchagenten jetzt aktivieren! Neue Angebote erhalten
Immobilienportal-saarland.de © 2025 | Alle Rechte vorbehalten