Die Liegenschaft befindet sich in der Mittelstadt St. Ingbert, im Saarpfalz-Kreis. Sie liegt in einem gewachsenen Wohnumfeld mit überwiegend Ein- und Zweifamilienhäusern. Die Innenstadt von St. Ingbert ist fußläufig schnell erreichbar, ebenso wie eine Bushaltestelle mit Anbindung an das Stadtzentrum von St. Ingbert und die umliegenden Stadtteile.
Die hervorragende Verkehrsanbindung an die A6 verleiht der Lage eine besondere Attraktivität. Einkaufsmöglichkeiten, zentrale Infrastruktureinrichtungen und Naherholungsgebiete befinden sich in unmittelbarer Nähe.
Entfernungen zu wichtigen Punkten des täglichen Lebens:
• Stadtzentrum St. Ingbert – ca. 0,9 km
• Supermarkt – ca. 0,7 km
• Grundschule – ca.
1,3 km
• Gymnasium – ca. 0,9 km
• Waldgebiet – ca. 0,9 km
• Bahnhof – ca. 1,1 km
Verkehrsanbindung:
• Autobahn A6 – ca. 1,4 km
Umliegende Städte und Einrichtungen:
• Universität des Saarlandes – ca. 9 km
• Flughafen Saarbrücken – ca. 8 km
• Saarbrücken (Zentrum) – ca. 15 km
• Homburg (Uniklinik) – ca. 22 km
Objektbeschreibung
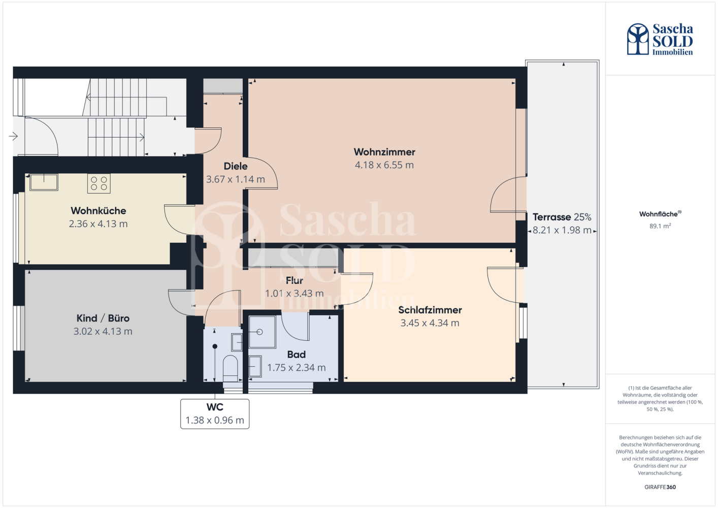
Diese helle 3-Zimmer-Wohnung befindet sich im Erdgeschoss eines gepflegten und ruhigen Mehrfamilienhauses mit insgesamt drei Wohneinheiten.
Die Wohnung besticht durch ihre lichtdurchfluteten Räume, den durchdachten Grundriss und einen direkten Zugang ins Freie. Von sowohl dem Wohnzimmer als auch dem Schlafzimmer gelangen Sie auf die Terrasse, die zum Entspannen einlädt. Ein kleiner Gartenanteil rundet das attraktive Außenangebot ab.
Im Kellergeschoss stehen Ihnen ein eigener, abschließbarer Kellerraum sowie ein gemeinschaftlich genutzter Waschraum zur Verfügung. Zusätzlich ist ein Gemeinschaftsraum vorhanden, der von allen Bewohnern genutzt werden kann.
Ein fest zugeordneter Parkplatz gehört nicht zur Wohnung. In der Straße stehen jedoch ausreichend öffentliche Parkmöglichkeiten zur Verfügung.
Die Verwaltung der Liegenschaft wird derzeit eigenständig durch die Bewohner durchgeführt. Derzeit bestehen keine Instandhaltungsrücklagen. Diese Gegebenheiten wurden bei der Festlegung des Verkaufspreises berücksichtigt.
Sonstiges
Bitte beachten Sie:
Auf Wunsch der Verkäufer findet eine Besichtigung ausschließlich mit Interessenten statt, die ihre Bonität nachgewiesen haben.
Die Käuferprovision beträgt 3,57 % inkl. MwSt. vom notariell beurkundeten Kaufpreis verdient und fällig bei notarieller Beurkundung. Wir haben mit dem Verkäufer einen provisionspflichtigen Maklervertrag in gleicher Höhe abgeschlossen.
Hinweis zum Widerrufsrecht für Verbraucher:
Nach § 355 BGB hat der Verbraucher (gilt nicht für Unternehmer) ein 14-tägiges Widerrufsrecht gegenüber dem Unternehmer/Makler. Mit der Novellierung des Verbraucherrechts im Juni 2014 sind auch Maklerunternehmen verpflichtet, Kunden über ihre gesetzlichen Widerrufsrechte zu informieren.
Zeitgleich mit Ihrer Anfrage via Email, Telefon, Fax, SMS oder Brief erhalten Sie von uns eine notwendige gesetzesgemäße Widerrufsbelehrung mit den entsprechenden Belehrungen.
Alle Informationen basieren auf Angaben Dritter (Eigentümer, Behörden, etc.). Der Makler hat keine eigene Berechnung der Wohnfläche durchgeführt. Eine Einsicht in die Bauakte zur Überprüfung des Baujahres hat nicht stattgefunden. Für die Richtigkeit und Vollständigkeit der vorliegenden Angaben übernimmt der Makler keine Haftung. Das Exposé zu diesem Angebot sowie die darin gemachten Angaben in Wort, Bild und Werten stellen keine Beschaffenheitsvereinbarung dar. Wert- und Maßangaben sind lediglich ca.-Werte. Der Makler übernimmt keine Haftung für die vorliegenden Angaben. Änderungen, Irrtümer und Zwischenverkauf bleiben vorbehalten.
Ausstattung
Bad
Dusche, Fenster
Küche
Einbauküche
Boden
Fliesen, Laminat
heizungsart
Zentralheizung
befeuerung
Öl
Ausstattungsqualität
Standard
Gartennutzung
Abstellraum
Gebäude:
• Massivbauweise
• Wohneinheiten: 3
• Heizung: zentrale Ölheizung (ca. 2009)
Ausstattung der Wohnung:
• Fußböden: Fliesen, Laminat und PVC
• Wände: Rauputz, Tapete, Bäder gefliest
• Fenster: Holz und Kunststoff, isolierverglast, manuelle Rollläden (Baujahre: 2014, 1999, 1997 und 1976)
• Innentüren: Holz
Laufende Kosten der Wohnung (1 Person, Stand 2024):
Sie haben nicht das passende gefunden? - Aktivieren Sie den Suchagenten
Aktivieren Sie den Suchagenten und Sie erhalten die neuesten Angebote zu Ihrer Suche sofort und kostenlos per E-Mail. Sie können Ihren Suchauftrag jederzeit bearbeiten oder beenden. Suchagenten jetzt aktivieren! Neue Angebote erhalten