Die Verbandsgemeinde Spiesen-Elversberg, bestehend aus den namensgebenden Ortsteilen, liegt verkehrsgünstig in der Nähe zur Biosphärenstadt St. Ingbert.
Auch die Anbindung an die saarländische Landeshauptstadt Saarbrücken und den Industriestandort Neunkirchen ist durch die Autobahnzubringer zur A8 und A6 hervorragend.
Der Ort selbst besitzt eine sehr gute Infrastruktur mit allen Einrichtungen des öffentlichen Lebens.
Durch die einerseits ländlich geprägte Lage und der andererseits positiven wirtschaftlichen Entwicklung des Ortes, bietet Spiesen-Elversberg einen attraktiven Platz zum Leben und Arbeiten.
Objektbeschreibung
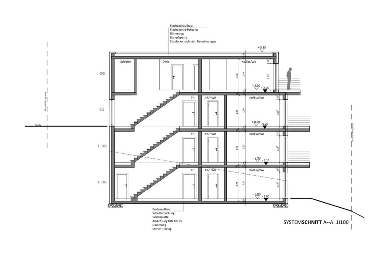
In Spitzenlage von Spiesen-Elversberg, befindet sich der energetisch nach neuestem Standard errichtete Neubau mit nur 4 Wohneinheiten. Das Gebäude wird im Jahr 2026 schlüsselfertig errichtet.
Diese nun noch verfügbare Wohnung im Gartengeschoss bietet den zukünftigen Bewohnern mit 2 Zimmern, Küche, Bad, Abstellraum und Terrasse einen wunderschönen neuen Lebensmittelpunkt.
Bei dieser Wohnung ist optional auch ein eigener Gartenanteil (Sondernutzungsrecht) verfügbar.
Der Neubau des erfahrenen Bauträgers bietet dabei auf 4 Etagen mit jeweils nur einer Wohnung pro Ebene Ruhe, Qualität und eine altersgerechte barrierearme Erschließung.
Vor dem Gebäude befinden sich optional erwerbbare (Außen-) Stellplätze (12.000 € Kaufpreis).
Die Luft-Wärmepumpe mit integrierter Warmwasseraufbereitung sorgt in Kombination mit der Dämmung des Gebäudes für planbar niedrige Energiekosten.
Die Ausstattung der Wohnung, die schlüsselfertig für Sie errichtet wird, lässt dabei keine Wünsche offen und vermittelt einen ebenso wertigen Eindruck wie die gesamte Immobilie.
Gerne informieren wir Sie in einem persönlichen Gespräch ausführlich und detailliert zu diesem Kaufobjekt und treffen uns mit Ihnen auch gerne unverbindlich zu einer Besichtigung vor Ort.
Wir freuen uns auf Ihre Anfragen, bitte übermitteln Sie uns dabei auch Ihre vollständigen Kontaktdaten.
Sonstiges
Selbstverständlich stehen wir Ihnen gerne mit weiteren Objektinformationen und für Besichtigungen zur Verfügung.
Alle im Exposé genannten Objektangaben und Informationen beruhen auf Angaben des Auftraggebers. Für die Richtigkeit und Vollständigkeit wird keine Haftung übernommen.
Hinweis zum Energieausweis:
Wir weisen alle Auftraggeber auf die aktuellen gesetzlichen Regelungen zur Vorlage eines Energieausweises hin. Im Einzelfalle ist der Ausweis zum Zeitpunkt der Erstellung des Exposé in Bearbeitung, also noch nicht erstellt und wird später nachgereicht. Wir bitten dies zu entschuldigen.
Ergänzender Hinweis: Ein übergebener Energieausweis stellt keine Beschaffenheitsvereinbarung dar. Unser Haftungsauschluss bezieht sich auch auf die darin enthaltenen Daten.
Die Pflichten nach dem Geldwäschegesetz (GwG)
• Der Gesetzgeber schreibt vor, dass Vertragspartner vor der Begründung einer Geschäftsbeziehung zu identifizieren sind. (§3 GwG). Immobilienmakler haben diese Sorgfaltspflicht einzuhalten. Die Identifizierung des Kaufinteressenten durch den Immobilienmakler muss erfolgt sein, bevor die Aufnahme der Kaufvertragsverhandlungen ermöglicht wird.
• Bei der Identifizierung sind entweder Name, Geburtsdatum und –Ort, Staatsangehörigkeit, Anschrift, Personalausweisnummer und ausstellende Behörde festzuhalten oder es ist der Ausweis zu kopieren.
• Darüber hinaus hat der Makler zu klären, ob der Kunde im eigenen wirtschaftlichen Interesse handelt oder für einen Dritten.
• Festgehalten werden muss auch, ob es sich bei dem Vertragspartner und ggf. wirtschaftlichen Berechtigten um eine Politisch exponierte Person (PeP) handelt.
• Als Kunde sind Sie verpflichtet, dem Immobilienmakler den Ausweis vorzulegen und die entsprechenden Auskünfte zu erteilen (§4 Abs. 6 GwG)
Bitte helfen Sie Ihrem Immobilienmakler dabei, die gesetzlichen Pflichten nach dem Geldwäschegesetz zu erfüllen.
• Zeigen Sie uns bitte Ihren Personalausweis und ermöglichen damit die vorgeschriebene Dokumentation.
Ausstattung
heizungsart
Zentralheizung
befeuerung
Luft/Wasser Wärmepumpe
Neuwertige Wohnung in Effizienzhaus
Wohnung 1 im UG2, Gartengeschoss
Außenstellplatz optional verfügbar (12.000 €)
Tolle Lage im Neubaugebiet
Balkon mit Panorama-Weitblick
Ausstattungs-Highlights:
Luft-Wärmepumpe mit Warmwasseraufbereitung
3-fach verglaste ISO-Fenster
Fußbodenheizung
Elektrische Rollläden
Hochwertige Badausstattung
Böden Feinsteinfliesen, Parkett oder Vinyl
Granitfensterbänke
Terrassen- und Balkoneinfassungen aus Edelstahl und Glas
Sie haben das Recht, binnen vierzehn Tagen ohne Angabe von Gründen diesen Vertrag zu widerrufen. Die Widerrufsfrist beträgt vierzehn Tage ab dem Tag des Vertragsabschlusses. Um Ihr Widerrufsrecht auszuüben, müssen Sie uns mittels einer eindeutigen Erklärung (z. B. ein mit der Post versandter Brief, Telefax oder E-Mail) über Ihren Entschluss, diesen Vertrag zu widerrufen, informieren.
Der Widerruf ist zu richten an:
Eichenlaub & Dumont KG Grundstücksmakler KG
Julius-Kiefer-Str. 113
66119 Saarbrücken
Telefon: 0681/85 54 86
Telefax: 0681/85 34 93 info@eichenlaub-dumont.de
Zur Wahrung der Widerrufsfrist reicht es aus, dass Sie die Mitteilung über die Ausübung des Widerrufsrechts vor Ablauf der Widerrufsfrist absenden.
FOLGEN DES WIDERRUFS:
Wenn Sie diesen Vertrag widerrufen, haben wir Ihnen alle Zahlungen, die wir von Ihnen erhalten haben, unverzüglich und spätestens binnen vierzehn Tagen ab dem Tag zurückzuzahlen, an dem die Mitteilung über Ihren Widerruf dieses Vertrags bei uns eingegangen ist. Für diese Rückzahlung verwenden wir dasselbe Zahlungsmittel, das Sie bei der ursprünglichen Transaktion eingesetzt haben, es sei denn, mit Ihnen wurde ausdrücklich etwas anderes vereinbart; in keinem Fall werden Ihnen wegen dieser Rückzahlung Entgelte berechnet.
Haben Sie verlangt, dass die Dienstleistungen während der Widerrufsfrist beginnen soll, so haben Sie uns einen angemessenen Betrag zu zahlen, der dem Anteil der bis zu dem Zeitpunkt, zu dem Sie uns von der Ausübung des Widerrufsrechts hinsichtlich dieses Vertrags unterrichten, bereits erbrachten Dienstleistungen im Vergleich zum Gesamtumfang der im Vertrag vorgesehenen Dienstleistungen entspricht.
Sie haben nicht das passende gefunden? - Aktivieren Sie den Suchagenten
Aktivieren Sie den Suchagenten und Sie erhalten die neuesten Angebote zu Ihrer Suche sofort und kostenlos per E-Mail. Sie können Ihren Suchauftrag jederzeit bearbeiten oder beenden. Suchagenten jetzt aktivieren! Neue Angebote erhalten