Büschdorf ist ein Ortsteil und Gemeindebezirk der Gemeinde Perl im Landkreis Merzig-Wadern (Saarland). Die Autobahnanbindung in Richtung Luxemburg und Saarbrücken ist nur 5 Fahrminuten entfernt.
15 km bis L-Remich
26 km bis L-Wormeldange
16 km bis D-Merzig
43 km bis D-Trier
Objektbeschreibung
!! TOP ANGEBOT: 103 M² WOHNUNG / 2 SCHLAFZIMMER / KÜCHE / STELLPLATZ !!
HEIZUNG: WÄRMEPUMPE / ENERGIEKLASSE A+
GRENZNÄHE ZU L-SCHENGEN/L-REMICH:
Im Perler Ortsteil Büschdorf erwartet Sie diese attraktive Erdgeschosswohnung in einem modernen Mehrfamilienhaus mit insgesamt sechs Wohneinheiten, das im Jahr 2016 errichtet wurde. Die Wohnung überzeugt durch eine durchdachte, zeitgemäße Grundrissgestaltung sowie eine gepflegte und ansprechende Ausstattung.
Herzstück der Wohnung ist der großzügige Wohn- und Essbereich mit offener Küche, der ein offenes und helles Wohngefühl vermittelt. Sowohl das Gebäude als auch die Wohnung selbst präsentieren sich in einem sehr guten und gepflegten Zustand.
Ein besonderes Highlight ist die großzügige Terrasse mit Blick ins Grüne, die zum Entspannen einlädt.
Zusätzlich steht den Bewohnern eine gemeinschaftliche Gartenfläche zur Nutzung zur Verfügung.
Ein PKW-Stellplatz sowie die Einbauküche sind bereits im Kaufpreis enthalten und runden dieses attraktive Angebot ab.
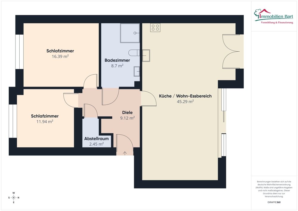
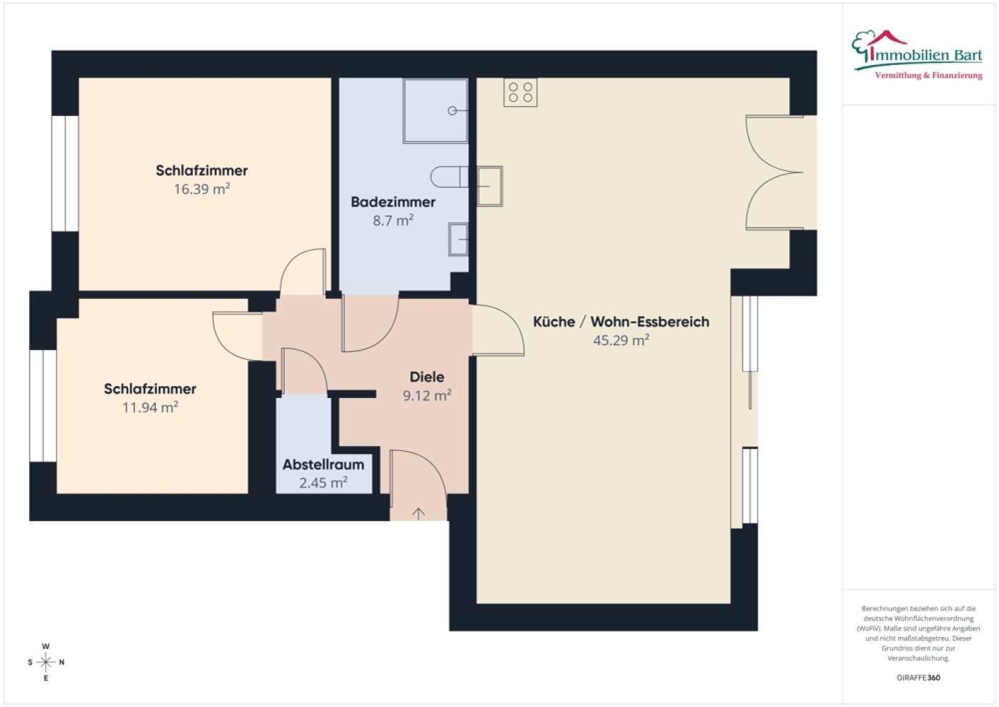
Die Raumaufteilung ergibt sich wie folgt:
Erdgeschoss:
Diele, Abstellraum, Kinderzimmer, Elternschlafzimmer, Badezimmer mit Dusche, großer Wohn-/Essbereich mit offener Küche und Ausgang zur Terrasse und den Garten
Sonstiges
Unser gesamtes Immobilienangebot können Sie unter www.immobilien-bart.de einsehen.
Haben wir Ihr Interesse geweckt? Für einen unverbindlichen Besichtigungstermin stehen wir Ihnen nach vorheriger Terminabsprache gerne zur Verfügung. Bitte haben Sie Verständnis dafür, dass wir Anfragen nur bearbeiten, wenn uns der vollständige Name, die Postanschrift und eine Rufnummer mitgeteilt wird. Ihre Daten werden selbstverständlich streng vertraulich und nur für diese Anfrage verwendet.
Sie möchten diese Immobilie finanzieren?
Vereinbaren Sie mit uns einen Beratungstermin, natürlich kostenfrei und unverbindlich. Aus einem Pool von 100 Banken finden wir, auch für Sie, die passende Finanzierung!
Die Käuferprovision beträgt 3,57 % inkl. MwSt. vom notariell beurkundeten Kaufpreis und ist verdient und fällig mit der notariellen Beurkundung.
Haftungsvorbehalt: Sämtliche Angaben erhielten wir vom Eigentümer und geben diese ohne Haftung weiter. Irrtum und Zwischenverkauf bleiben vorbehalten.
Ausstattung
Boden
Fliesen
heizungsart
Fussbodenheizung
befeuerung
Luft/Wasser Wärmepumpe
Die Böden sind mit Fliesen belegt.
Die Beheizung erfolgt durch eine Luft-/Wasser-/Wärmepumpe
2 Zimmer Dachgeschosswohnung auf ca. 84 m² mit großem sonnigen Balkon in Wadgassen
84 m² Wohnfläche • 2 Anzahl Zimmer
Sie haben nicht das passende gefunden? - Aktivieren Sie den Suchagenten
Aktivieren Sie den Suchagenten und Sie erhalten die neuesten Angebote zu Ihrer Suche sofort und kostenlos per E-Mail. Sie können Ihren Suchauftrag jederzeit bearbeiten oder beenden. Suchagenten jetzt aktivieren! Neue Angebote erhalten