Merzig liegt verkehrsgünstig direkt an der A8 und B51 zwischen Saarbrücken und Trier. Die Stadt Luxemburg ist ca. 50 km entfernt. Die Autobahnanbindung ist in wenigen Fahrminuten gut zu erreichen. Mit seiner reizvollen Lage, direkt an der Saar, ist Merzig ein idealer Ort für vielfältige Freizeitgestaltungen und Einkaufsmöglichkeiten.
19 km bis D-Saarlouis
44 km bis D-Saarbrücken
25 km bis L-Schengen
55 km bis L-Stadt
Objektbeschreibung
Diese großzügige Immobilie wurde ursprünglich im Jahr 1920 erbaut und befindet sich in zentraler Lage von Merzig. Das Anwesen wurde im Jahr 1973 durch den Anbau einer Werkstatt erweitert und im Jahr 1992 wurde das Obergeschoss dieser Werkstatt ausgebaut. Bisher als Orthopädie-Schuhtechnik mit separater Wohneinheit genutzt, eignet sich die Immobilie ideal für eine Kombination aus Wohnen und Arbeiten oder für reine gewerbliche Nutzung.
Mit einer Wohnfläche von ca. 194 m² und einer Nutzfläche von ca. 237 m² bietet das Haus viel Platz – ob zum Wohnen, Arbeiten oder beidem.
Ein schöner, ruhiger Garten lädt zum Verweilen ein und bietet Raum für Entspannung. Die grüne Umgebung schafft eine angenehme Atmosphäre und ergänzt das Angebot dieser besonderen Immobilie ideal.
Die Immobilie liegt gut sichtbar an einer stark frequentierten Straße, ideal für Gewerbe mit hoher Sichtbarkeit und Laufkundschaft. Durch die Schallschutzverglasung an der Straßenseite ist ein ruhiges Arbeiten oder Wohnen trotz Verkehr gewährleistet.
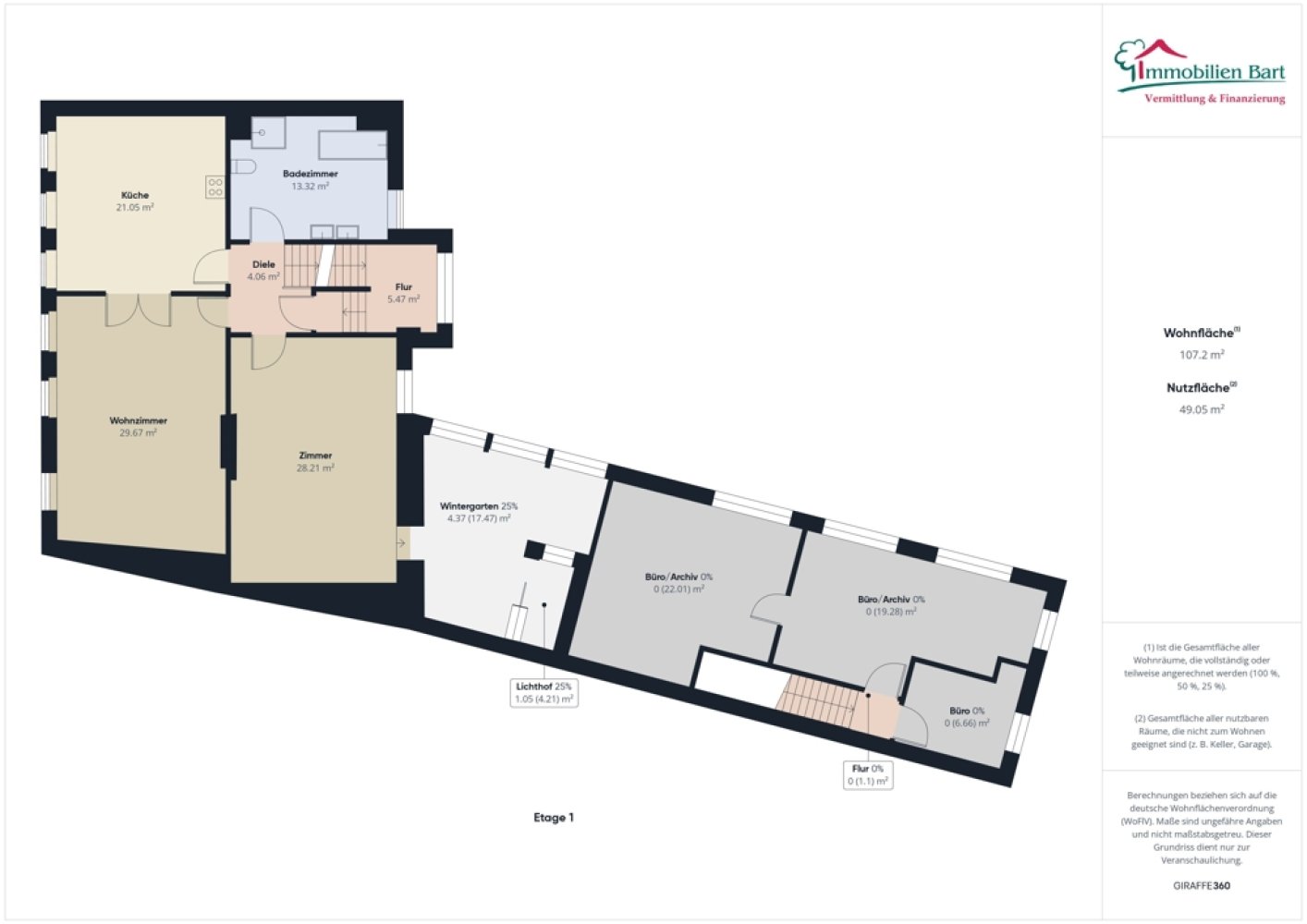
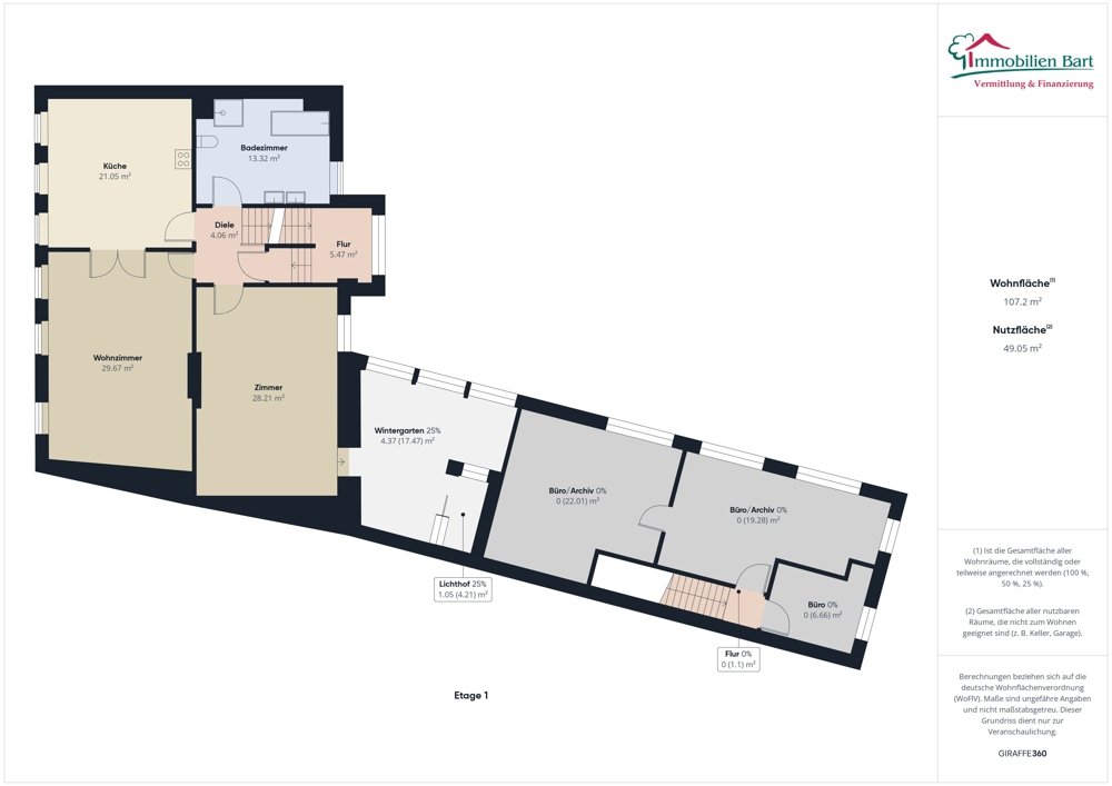
Die Raumaufteilung des Geschäftshauses ist wie folgt:
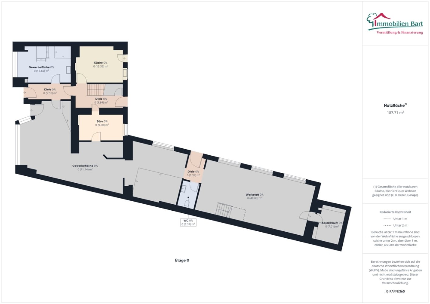
Erdgeschoss:
Diele, Gewerbeflächen, Küche, Büro, Gäste-WC, Flur mit Ausgang in den Garten, Werkstatt mit Treppenaufgang zu den Büros/Archiv
Obergeschoss:
3 Büros/Archivzimmer
Die Raumaufteilung des Wohnhauses ist wie folgt:
Erdgeschoss:
Diele, Flur mit Ausgang zur Terrasse und in den Garten
Obergeschoss:
Diele, Essküche mit offenem Wohnzimmer, Zimmer mit Zugang zum Wintergarten und Lichthof, Badezimmer
Dachgeschoss:
Diele, 4 Schlafzimmer, Badezimmer
Kellergeschoss:
Flur, 2 Kellerräume, Öllagerraum, Heizungsraum
Fazit
Ein Haus mit viel Platz, einem schönen Garten und vielseitigen Nutzungsmöglichkeiten – perfekt für alle, die Wohnen und Arbeiten verbinden oder eine besondere Immobilie in Merzig suchen.
Sonstiges
Unser gesamtes Immobilienangebot können Sie unter www.immobilien-bart.de einsehen.
Haben wir Ihr Interesse geweckt? Für einen unverbindlichen Besichtigungstermin stehen wir Ihnen nach vorheriger Terminabsprache gerne zur Verfügung. Bitte haben Sie Verständnis dafür, dass wir Anfragen nur bearbeiten, wenn uns der vollständige Name, die Postanschrift und eine Rufnummer mitgeteilt wird. Ihre Daten werden selbstverständlich streng vertraulich und nur für diese Anfrage verwendet.
Sie möchten diese Immobilie finanzieren?
Vereinbaren Sie mit uns einen Beratungstermin, natürlich kostenfrei und unverbindlich. Aus einem Pool von 100 Banken finden wir, auch für Sie, die passende Finanzierung!
Die Käuferprovision beträgt 3,57 % inkl. MwSt. vom notariell beurkundeten Kaufpreis und ist verdient und fällig mit der notariellen Beurkundung.
Haftungsvorbehalt: Sämtliche Angaben erhielten wir vom Eigentümer und geben diese ohne Haftung weiter. Irrtum und Zwischenverkauf bleiben vorbehalten.
Ausstattung
Boden
Fliesen, Parkett, Dielen
heizungsart
Zentralheizung
befeuerung
Öl, Gas
Unterkellert
teils
Besonderheiten:
- zentrale Lage an einer tagsüber belebten Straße – ideal für Gewerbe mit viel Laufkundschaft
- Schallschutzfenster an der Straßenseite – ruhige Innenräume trotz Verkehr
- flexible Nutzung – geeignet als Praxis, Büro oder Wohnhaus
- großzügige Räume mit viel Tageslicht
- schöner, ruhiger Garten hinter dem Haus – perfekter Rückzugsort
- ständige Renovierungen
Die Gewerbeeinheit wird durch eine Öl-Zentralheizung beheizt.
Die Wohneinheit wird durch eine Gas-Zentralheizung beheizt.
Gewerbeeinheit in zentraler Lage von Saarlouis zu verkaufen
122 m² Gesamtfläche • 3 Anzahl Zimmer
Sie haben nicht das passende gefunden? - Aktivieren Sie den Suchagenten
Aktivieren Sie den Suchagenten und Sie erhalten die neuesten Angebote zu Ihrer Suche sofort und kostenlos per E-Mail. Sie können Ihren Suchauftrag jederzeit bearbeiten oder beenden. Suchagenten jetzt aktivieren! Neue Angebote erhalten