Sprache auswählen
2.700 €
Kaltmiete3.420 €
Warmmiete511 m²
GesamtflächeCarl-Zeiss-Straße 19
66740 Saarlouis / Roden
Dieses Bürogebäude ist in einem größeren Gewerbegebiet (Röderberg) nahe Saarlouis angesiedelt.
Im Umfeld finden sich mehrere renommierte Unternehmen und Dienstleister.
Der Standort ist per Bahn, Bus, Autobahn (A6, A8 und A620) und Bundesstraßen bestens erreichbar und angebunden.
Der Flughafen Ensheim ist etwa 45 Autominuten entfernt. Die Flughäfen in Luxemburg oder Metz-Nancy sind in ca. 45-90 Minuten zu erreichen.
Modern ausgestatte Büroräume + Hallenfläche im Gewerbegebiet "Röderberg" in Saarlouis:
Diese Halle plus Bürofläche im EG steht Ihnen ab 01.06.2026 zur neuen Nutzung zur Verfügung.
Optional stehen im EG auch zusätzliche Büro- bzw. Praxisräume von ca. 160m² zur Verfügung.
Prinzipiell erfüllt das vorhandene Objekt aber bereits alle Anforderungen an eine moderne Arbeitsplatzinfrastruktur.
Das Objekt verfügt ausreichend PKW-Stellplätze vor bzw. hinter dem Gebäude.
Bitte beachten Sie, dass die angegebene Kaltmiete und die Betriebskosten als Netto-Wert zzgl. der gesetzlichen Mehrwertsteuer zu verstehen ist.
Wir freuen uns auf Ihre Anfragen zu dieser attraktiven Büro-, Hallen-, Praxis- und Gewerbefläche.
Bitte übermitteln Sie uns dabei Ihre vollständigen Kontaktdaten.
Vielen Dank.
Selbstverständlich stehen wir Ihnen gerne mit weiteren Informationen zum Objekt sowie für Besichtigungen, auch Samstags oder am frühen Abend, zur Verfügung.
Bei Interesse senden Sie uns bitte eine Anfrage mit Ihren vollständigen Kontaktdaten.
Alle im Exposé genannten Objektangaben und Informationen beruhen auf Angaben des Auftraggebers. Für die Richtigkeit und Vollständigkeit wird keine Haftung übernommen.
Hinweis zum Energieausweis:
Wir weisen alle Auftraggeber auf die aktuellen gesetzlichen Regelungen zur Vorlage eines Energieausweises hin. Im Einzelfalle ist der Ausweis zum Zeitpunkt der Erstellung des Exposé in Bearbeitung, also noch nicht erstellt und wird später nachgereicht. Wir bitten dies zu entschuldigen.
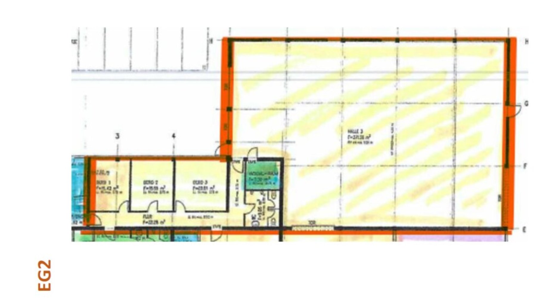
Halle EG ca. 400m² plus 111m²
Heizstrahler
Tageslicht
2 Zufahrten und 3 Tore:
Tor LKW groß Breite 4,2m x 5m Höhe
Tor LKW klein Breite 3,5m x 4,2m Höhe
Tor Transporter Breite 2,5m x 2,6m Höhe
Höhe in der Halle:
Lichte Höhe bis Beleuchtung 4,1m
Lichte Höhe zwischen den Bindern (Unterzüge) 5,5m
Weitere Büro- bzw. Praxisflächen in EG und OG des Gebäudes verfügbar:
OG ca. 302m²
EG ca. 160m²
Das gesamte Gebäude wurde 2012 saniert.
Heizung Gas mit Brennwerttechnik.
Ausstattung:
- Iso-Fenster, doppelt verglast
- Nachhaltige Gebäudetechnik
- Elektrische Außenjalousien
- Teil-Klimatisierung
- Moderne EDV-, Telekommunikations- und Multimediatechnik
- Netzwerkanschlüsse über Kabelkanäle
- Beleuchtung integriert in Odenwald-Decken
- Getrennte WC-Anlagen
- 3 separate Eingänge
- Raumaufteilung variabel
- Stellplatzmöglichkeiten auf dem Grundstück
Ansprechpartner
Eichenlaub & Dumont Immobilien e.K.
Anbieter
66133 Saarbrücken
Sie haben das Recht, binnen vierzehn Tagen ohne Angabe von Gründen diesen Vertrag zu widerrufen. Die Widerrufsfrist beträgt vierzehn Tage ab dem Tag des Vertragsabschlusses. Um Ihr Widerrufsrecht auszuüben, müssen Sie uns mittels einer eindeutigen Erklärung (z. B. ein mit der Post versandter Brief, Telefax oder E-Mail) über Ihren Entschluss, diesen Vertrag zu widerrufen, informieren.
Der Widerruf ist zu richten an:
Eichenlaub & Dumont KG Grundstücksmakler KG
Julius-Kiefer-Str. 113
66119 Saarbrücken
Telefon: 0681/85 54 86
Telefax: 0681/85 34 93
info@eichenlaub-dumont.de
Zur Wahrung der Widerrufsfrist reicht es aus, dass Sie die Mitteilung über die Ausübung des Widerrufsrechts vor Ablauf der Widerrufsfrist absenden.
FOLGEN DES WIDERRUFS:
Wenn Sie diesen Vertrag widerrufen, haben wir Ihnen alle Zahlungen, die wir von Ihnen erhalten haben, unverzüglich und spätestens binnen vierzehn Tagen ab dem Tag zurückzuzahlen, an dem die Mitteilung über Ihren Widerruf dieses Vertrags bei uns eingegangen ist. Für diese Rückzahlung verwenden wir dasselbe Zahlungsmittel, das Sie bei der ursprünglichen Transaktion eingesetzt haben, es sei denn, mit Ihnen wurde ausdrücklich etwas anderes vereinbart; in keinem Fall werden Ihnen wegen dieser Rückzahlung Entgelte berechnet.
Haben Sie verlangt, dass die Dienstleistungen während der Widerrufsfrist beginnen soll, so haben Sie uns einen angemessenen Betrag zu zahlen, der dem Anteil der bis zu dem Zeitpunkt, zu dem Sie uns von der Ausübung des Widerrufsrechts hinsichtlich dieses Vertrags unterrichten, bereits erbrachten Dienstleistungen im Vergleich zum Gesamtumfang der im Vertrag vorgesehenen Dienstleistungen entspricht.
Aktivieren Sie den Suchagenten und Sie erhalten die neuesten Angebote zu Ihrer Suche sofort und kostenlos per E-Mail. Sie können Ihren Suchauftrag jederzeit bearbeiten oder beenden.
Suchagenten jetzt aktivieren! Neue Angebote erhalten
Immobilienportal-saarland.de © 2025 | Alle Rechte vorbehalten