Sprache auswählen
539.800 €
Kaufpreis5
Anzahl Zimmer3
Anzahl Schlafzimmer165 m²
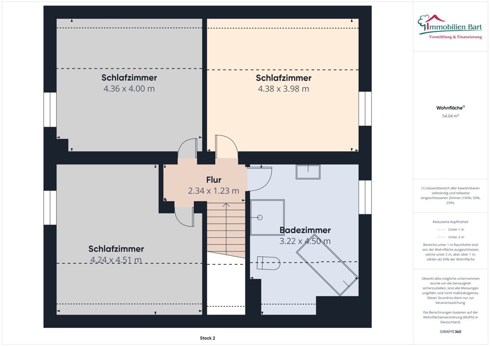
Wohnfläche700 m²
Grundstücksfläche54441 Temmels
Temmels ist eine Ortsgemeinde im Landkreis Trier-Saarburg in Rheinland-Pfalz. Sie gehört der Verbandsgemeinde Konz an.
Die reizvolle Lage an der Obermosel und die direkte Nähe zu Luxemburg machen Temmels zu einer attraktiven Wohngegend. Durch seine gute Infrastruktur erreichen Sie die umliegenden Städte, wie Konz und Trier in nur wenigen Fahrminuten.
26 km bis L-Kirchberg
09 km bis L-Wasserbillig
09 km bis D-Konz
17 km bis D-Trier
L-GREVENMACHER +6 MINUTEN:
In TEMMELS, in Höhenlage mit Fernsicht, bieten wir Ihnen dieses moderne Wohnhaus aus dem Jahr 1999 an. Der schön angelegte Garten lädt zum Entspannen und Verweilen ein.
Die Raumaufteilung ist wie folgt:
Untergeschoss:
Eingang, 2te Küche (Hobbyraum möglich), Kellerraum, Heizungsraum, Garage
Erdgeschoss:
Flur, Gäste-WC, Büro/Schlafzimmer, Küche, Wohn-/Esszimmer mit Ausgang zur Terrasse
Dachgeschoss:
Flur, Badezimmer mit Wanne und Dusche, 3 Schlafzimmer
Speicher
Unser gesamtes Immobilienangebot können Sie unter www.immobilien-bart.de einsehen.
Haben wir Ihr Interesse geweckt? Für einen unverbindlichen Besichtigungstermin stehen wir Ihnen nach vorheriger Terminabsprache gerne zur Verfügung. Bitte haben Sie Verständnis dafür, dass wir Anfragen nur bearbeiten, wenn uns der vollständige Name, die Postanschrift und eine Rufnummer mitgeteilt wird. Ihre Daten werden selbstverständlich streng vertraulich und nur für diese Anfrage verwendet.
Sie möchten diese Immobilie finanzieren?
Vereinbaren Sie mit uns einen Beratungstermin, natürlich kostenfrei und unverbindlich. Aus einem Pool von 100 Banken finden wir, auch für Sie, die passende Finanzierung!
Haftungsvorbehalt: Sämtliche Angaben erhielten wir vom Eigentümer und geben diese ohne Haftung weiter. Irrtum und Zwischenverkauf bleiben vorbehalten.
Die Beheizung erfolgt durch eine Öl-Heizung. (1. Etage + Bad Fußbodenheizung)
Die Böden sind mit Parkett und Fliesen belegt.
Besonderheiten:
- ruhige Wohnlage mit Fernsicht
- gepflegter Zustand
- Einbauküche im Kaufpreis enthalten (neu 2016 mit Bora System + einen Dampfgarer)
- schön angelegter Garten
- Teil elektrische Rollläden
- Außenputz neu 2015
- maßgefertigter Wohnzimmerschrank kann nach Absprache verbleiben
Ansprechpartner
Immobilien Bart GmbH
Anbieter
66706 Perl-Nennig
Aktivieren Sie den Suchagenten und Sie erhalten die neuesten Angebote zu Ihrer Suche sofort und kostenlos per E-Mail. Sie können Ihren Suchauftrag jederzeit bearbeiten oder beenden.
Suchagenten jetzt aktivieren! Neue Angebote erhalten
Immobilienportal-saarland.de © 2025 | Alle Rechte vorbehalten