Merzig liegt verkehrsgünstig direkt an der A8 und B51 zwischen Saarbrücken und Trier. Die Stadt Luxemburg ist ca. 50 km entfernt. Die Autobahnanbindung ist in wenigen Fahrminuten gut zu erreichen. Mit seiner reizvollen Lage, direkt an der Saar, ist Merzig ein idealer Ort für vielfältige Freizeitgestaltungen und Einkaufsmöglichkeiten.
19 km bis D-Saarlouis
44 km bis D-Saarbrücken
25 km bis L-Schengen
55 km bis L-Stadt
Objektbeschreibung
Dieses attraktive Wohn- und Geschäftshaus befindet sich in zentraler Lage von Merzig, direkt in der Innenstadt. Durch seine hervorragende Lage und die vielseitige Nutzungsmöglichkeit bietet das Objekt sowohl für Kapitalanleger als auch für Eigennutzer interessante Perspektiven.
Das Gebäude besteht aus einem Altbau sowie einem Neubau, der im Jahr 1961 errichtet wurde. Im Zuge dieser Erweiterung wurde der Altbau vollständig kernsaniert und mit dem Neubau baulich verbunden. So entstand ein harmonisches Gesamtobjekt mit funktionaler Raumaufteilung und solider Bausubstanz.
Im Erdgeschoss befindet sich ein großzügiges Ladenlokal mit einer Fläche von ca. 207 m². Die Einheit verfügt über eine große Schaufensterfront, zwei Toiletten und einen Abstellraum.
Das Ladenlokal steht derzeit leer und bietet vielfältige Gestaltungsmöglichkeiten für Einzelhandel, Dienstleistung oder Gastronomie.
Das 1. Obergeschoss wird als Arztpraxis auf ca. 220 m² genutzt und ist langfristig vermietet, was stabile Mieteinnahmen gewährleistet. Die Praxisräume sind gepflegt und funktional geschnitten.
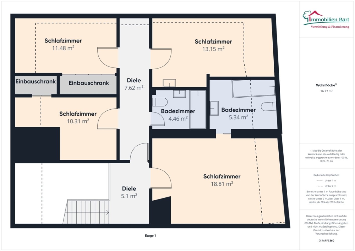
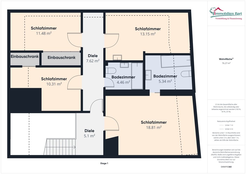
Im 2. Obergeschoss und Dachgeschoss befindet sich eine großzügige Wohnung mit rund 160 m² Wohnfläche. Die Raumaufteilung gestaltet sich wie folgt: Garderobe, Abstellraum, WC, Küche, Wohn- und Essbereich, vier Schlafzimmer sowie zwei Bäder. Besonders hervorzuheben ist die großzügige Dachterrasse mit einer Fläche von ca. 110 m², die einen herrlichen Ausblick und vielfältige Nutzungsmöglichkeiten bietet – ideal zum Entspannen oder geselligen Beisammensein.
Das Kellergeschoss verfügt über eine Gesamtfläche von ca. 200 m² und gliedert sich in eine Garage (ca. 30 m²), einen Privatkeller (ca. 50 m²) sowie einen Gewerbekeller (ca. 120 m²) mit Pausenraum und zwei Toiletten. Zusätzlich sind zwei weitere Kellerräume sowie der Heizungsraum vorhanden.
Das Objekt vereint attraktive Renditechancen mit vielseitigen Nutzungsmöglichkeiten in bester Merziger Lage.
Sonstiges
Unser gesamtes Immobilienangebot können Sie unter www.immobilien-bart.de einsehen.
Haben wir Ihr Interesse geweckt? Für einen unverbindlichen Besichtigungstermin stehen wir Ihnen nach vorheriger Terminabsprache gerne zur Verfügung. Bitte haben Sie Verständnis dafür, dass wir Anfragen nur bearbeiten, wenn uns der vollständige Name, die Postanschrift und eine Rufnummer mitgeteilt wird. Ihre Daten werden selbstverständlich streng vertraulich und nur für diese Anfrage verwendet.
Sie möchten diese Immobilie finanzieren?
Vereinbaren Sie mit uns einen Beratungstermin, natürlich kostenfrei und unverbindlich. Aus einem Pool von 100 Banken finden wir, auch für Sie, die passende Finanzierung!
Die Käuferprovision beträgt 3,57 % inkl. MwSt. vom notariell beurkundeten Kaufpreis und ist verdient und fällig mit der notariellen Beurkundung.
Haftungsvorbehalt: Sämtliche Angaben erhielten wir vom Eigentümer und geben diese ohne Haftung weiter. Irrtum und Zwischenverkauf bleiben vorbehalten.
Ausstattung
Boden
Fliesen, Teppich, Kunststoff
heizungsart
Zentralheizung
befeuerung
Gas
Unterkellert
Ja
Besonderheiten dieser Immobilie:
- zentrale Innenstadtlage von Merzig
- Kombination aus Altbau und Neubau von 1961
- Altbau im Zuge des Neubaus vollständig kernsaniert
- drei Nutzungseinheiten: Ladenlokal, Arztpraxis und Wohnung auf 2 Etagen
- Ladenlokal (ca. 207 m²) mit großer Schaufensterfront -- leerstehend
OHNE VERMITTLUNGSGEBÜHREN ! EINFAMILIENHAUS, ALSTING/FR, NÄHE SAARBRÜCKEN
150 m² Wohnfläche • 154 m² Grundstücksfläche • 6 Anzahl Zimmer • 4 Anzahl Schlafzimmer • 1 Anzahl Badezimmer
Sie haben nicht das passende gefunden? - Aktivieren Sie den Suchagenten
Aktivieren Sie den Suchagenten und Sie erhalten die neuesten Angebote zu Ihrer Suche sofort und kostenlos per E-Mail. Sie können Ihren Suchauftrag jederzeit bearbeiten oder beenden. Suchagenten jetzt aktivieren! Neue Angebote erhalten