- Flugplatz Zweibrücken - Gewerbe, Multimedia-Internet-Park und Outlet-Shopping mit direktem Autobahnanschluss
- mittelständische Unternehmen und kleine
Handwerksbetriebe im direkten Umfeld Gewerbepark aus den Bereichen:
- Produktion (z.B Kubota)
- Dienstleistung (z.B. Kundenzentrum John Deere)
- Logistik
- Luftfahrtwerften
- Kfz-Testcenter für Automotiv-Entwicklung
- Sonderlandeplatz
- Entfernungen:
Autobahnanschluss:
A8 – 2 km
Bahnhöfe
Bahnhof Zweibrücken – 3 km
Flughäfen
Saarbrücken – 41 km
Frankfurt-Hahn – 130 km
Frankfurt – 169 km
Zweibrücken - in unmittelbarer Nähe
Oberzentren
Zweibrücken – 10 km
Kaiserslautern – 63 km
Frankfurt – 178 km
- Eine gute Verkehrsanbindung wird über die in wenigen Minuten entfernte Fernstraßenanbindung nach Saarbrücken, Kaiserslautern und Pirmasens gewährleistet (Bundesstraße B10 und nahe gelegene Autobahnanbindung A8/A62). In wenigen Minuten erreichen Sie das Stadtzentrum von Zweibrücken.
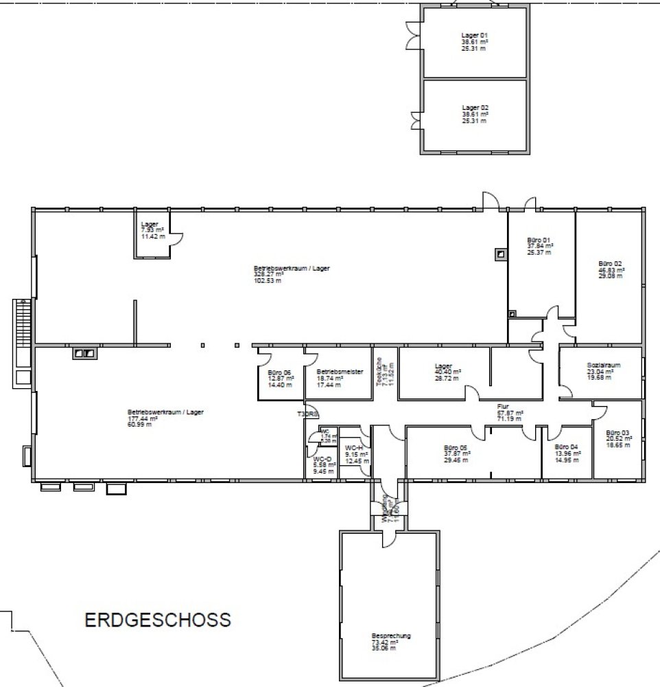
Objektbeschreibung
Gewerbeobjekt mit Werkstatthalle, Bürotrakt und großzügigem Außenbereich in 66482 Zweibrücken
Dieses vielseitig nutzbare Gewerbeobjekt befindet sich in einem etablierten Industriegebiet auf dem ehemaligen Flugplatz in Zweibrücken. Die Liegenschaft bietet eine ideale Kombination aus großzügigen Hallenflächen und modernen Büroeinheiten und ist vollständig eingezäunt. Das Gelände verfügt über ausreichend Außenflächen mit Stellplätzen für bis zu 12 PKW, was sowohl für Kundenverkehr als auch für Mitarbeiter attraktiv ist.
Das Gebäude wurde zwischen 2003 und 2019 umfassend modernisiert und präsentiert sich heute in einem gepflegten Zustand. Es erstreckt sich über ein Untergeschoss sowie ein großzügiges Erdgeschoss mit insgesamt ca.
1.073 m² Nutzfläche.
Raumaufteilung:
Untergeschoss (ca. 68 m²):
- Ehemaliger Heizungstechnikraum
- Ehemaliges Öllager
Erdgeschoss (ca. 1.006 m²):
- Zwei große Betriebswerkhallen mit über 500 m² Fläche, ideal für Produktion, Werkstatt oder Lager
- Separater Besprechungsraum (ca. 73 m²)
- Sechs helle und gut geschnittene Büroräume mit Größen zwischen ca. 13 und 47 m²
- Sozialraum, Teeküche sowie getrennte Damen- und Herren-WCs
- Lagerflächen für Materialien oder Akten
- Empfangsbereich/Windfang
- Flur- und Erschließungsflächen mit ausreichend Bewegungsfreiheit
Besonderheiten:
- Flexible Nutzungsmöglichkeiten für Handwerksbetriebe, Produktion oder Logistik
- Repräsentativer Eingang mit funktionalem Grundrisskonzept
- Die Lage im Gewerbegebiet auf dem Flugplatz Zweibrücken bietet ein ruhiges, zugleich aber strategisch vorteilhaftes Umfeld für Unternehmen, die eine verkehrsgünstige Anbindung und ausreichend Raum zur Entfaltung benötigen.
Sonstiges
Ihr Ansprechpartner : Immobilia GmbH, 66482 Zweibrücken, Poststraße 19, Immobilienberater Kai Goedicke B.A. Architektur, Tel. Nr. 06332 - 903460, Email : Kai.Goedicke@immo-gessner.de
Unsere Objekte befinden sich in der freien Vermietung. Wir sind auch für den Eigentümer tätig.
Die Objektdaten wurden uns vom Eigentümer genannt und sind ohne Gewähr.
Die Fälligkeit der Provision entsteht mit dem Abschluss des Kauf bzw. Mietvertrages.
Es gelten die Provisionen wie im Exposé angezeigt.
Die in den Exposé und Beschreibungen u. a. enthaltenen Angaben basieren auf Informationen des Vermieters. Zu eigenen Nachforschungen ist die Fa. Immobilia GmbH nicht verpflichtet. Sie übernimmt deshalb keine Haftung für die Richtigkeit und Vollständigkeit der Angaben, es sei denn, die Unrichtigkeit beruht auf grobem Verschulden der Fa. Immobilia GmbH.
Energieausweis in Bearbeitung!
Ausstattung
Stellplatzart
Freiplatz
- ISO KS Fenster mit Rollläden und Fliegengitter ca. 2003
- Fenster im Anbaubereich ca. 2014-2015
- Eingangstüren ca. 2006
- Türelement (Flur Bürotrakt) ca. 2008
- Dacherneuerung ca. 2004
- Außenanlage ca. 2006
- Sanierung der Abwasserleitungen ca. 2008
- Erneuerung der WC Anlagen ca. 2008
- Elektroinstallation im Bürobereich ca. 2008 vollständig erneuert
- Elektroinstallation im Werkstattbereich ca. 2015-2019 vollständig erneuert
- Starkstromanschlüsse vorhanden
- PV Anlage mit 30 kWp ca. 2012
- Buderus Öl Heizung mit 4500 l Tanks ca. 2014-2015
IMMOBILIA Vertriebsgesellschaft für Mehrfamilienhäuser und Wohnanlagen mbH
1. Geltungsbereich
Diese AGB gelten für alle Geschäftsbeziehungen zwischen der Immobilia Vertriebsgesellschaft für Mehrfamilienhäuser und Wohnanlagen mbH (nachfolgend „Immobilia“) und ihren Kunden im Bereich Immobilienvermittlung und -ankauf.
2. Vertragsabschluss
Ein Vertrag mit Immobilia kommt durch schriftliche, mündliche oder konkludente Beauftragung zustande, insbesondere durch Inanspruchnahme unserer Leistungen.
3. Provision
Im Erfolgsfall ist die vereinbarte Provision fällig. Diese entsteht insbesondere mit Abschluss eines notariellen Kaufvertrages oder Mietvertrages.
Die Höhe der Provision ergibt sich aus der jeweiligen Vereinbarung oder dem Exposé.
4. Weitergabe von Informationen
Alle durch Immobilia erhaltenen Informationen sind vertraulich und dürfen nicht ohne Zustimmung an Dritte weitergegeben werden.
Bei Verstoß kann ein Provisionsanspruch entstehen.
5. Haftung
Die Angaben zu Immobilien basieren auf Informationen Dritter. Eine Haftung für deren Richtigkeit und Vollständigkeit wird nicht übernommen.
Die Haftung von Immobilia ist auf Vorsatz und grobe Fahrlässigkeit beschränkt.
6. Doppeltätigkeit
Immobilia ist berechtigt, für beide Vertragsparteien tätig zu werden, sofern keine Interessenkollision besteht.
7. Geldwäschegesetz
Der Kunde ist verpflichtet, die nach dem Geldwäschegesetz erforderlichen Angaben und Nachweise bereitzustellen.
8. Datenschutz
Es gilt die Datenschutzerklärung auf unserer Website.
9. Schlussbestimmungen
Es gilt deutsches Recht. Gerichtsstand ist, soweit zulässig, Zweibrücken.
Sollten einzelne Bestimmungen unwirksam sein, bleibt die Wirksamkeit der übrigen unberührt.
Anbieter Widerruf - Immobilia GmbH IVD
Widerrufsrecht
Verbraucher haben das Recht, binnen vierzehn Tagen ohne Angabe von Gründen diesen Vertrag zu widerrufen.
Die Widerrufsfrist beträgt vierzehn Tage ab dem Tag des Vertragsabschlusses.
mittels einer eindeutigen Erklärung (z. B. ein mit der Post versandter Brief, Telefax oder E-Mail) über Ihren Entschluss, diesen Vertrag zu widerrufen, informieren.
Sie können dafür das unten beigefügte Muster-Widerrufsformular verwenden, das jedoch nicht vorgeschrieben ist.
Zur Wahrung der Widerrufsfrist reicht es aus, dass Sie die Mitteilung über die Ausübung des Widerrufsrechts vor Ablauf der Widerrufsfrist absenden.
Folgen des Widerrufs
Wenn Sie diesen Vertrag widerrufen, haben wir Ihnen alle Zahlungen, die wir von Ihnen erhalten haben, unverzüglich und spätestens binnen vierzehn Tagen ab dem Tag zurückzuzahlen, an dem die Mitteilung über Ihren Widerruf bei uns eingegangen ist.
Für diese Rückzahlung verwenden wir dasselbe Zahlungsmittel, das Sie bei der ursprünglichen Transaktion eingesetzt haben, es sei denn, mit Ihnen wurde ausdrücklich etwas anderes vereinbart.
Haben Sie verlangt, dass die Dienstleistungen während der Widerrufsfrist beginnen sollen, so haben Sie uns einen angemessenen Betrag zu zahlen, der dem Anteil der bis zu dem Zeitpunkt, zu dem Sie uns von der Ausübung des Widerrufsrechts hinsichtlich dieses Vertrags unterrichten, bereits erbrachten Dienstleistungen im Vergleich zum Gesamtumfang der im Vertrag vorgesehenen Dienstleistungen entspricht.
Erlöschen des Widerrufsrechts
Das Widerrufsrecht erlischt bei einem Vertrag zur Erbringung von Dienstleistungen vorzeitig, wenn wir die Dienstleistung vollständig erbracht haben und mit der Ausführung der Dienstleistung erst begonnen haben, nachdem Sie dazu Ihre ausdrückliche Zustimmung gegeben haben und gleichzeitig Ihre Kenntnis davon bestätigt haben, dass Sie Ihr Widerrufsrecht bei vollständiger Vertragserfüllung durch uns verlieren.
GEWERBE -Moderne Büro- und Ausstellungsfläche in gefragter Lage von 66482 Zweibrücken
345 m² Gesamtfläche
Sie haben nicht das passende gefunden? - Aktivieren Sie den Suchagenten
Aktivieren Sie den Suchagenten und Sie erhalten die neuesten Angebote zu Ihrer Suche sofort und kostenlos per E-Mail. Sie können Ihren Suchauftrag jederzeit bearbeiten oder beenden. Suchagenten jetzt aktivieren! Neue Angebote erhalten