Zerf liegt idyllisch im Naturpark Saar-Hunsrück, eingebettet in waldreiche Höhenlagen entlang von Großbach und Ruwer. Die Gemeinde, Teil der Verbandsgemeinde Saarburg-Kell, gilt als staatlich anerkannter Erholungsort und Grundzentrum. Zerf umfasst mehrere Ortsteile (Niederzerf, Oberzerf, Frommersbach) und weitere Wohnplätze mit attraktiven Freizeit- und Wohnangeboten, wie etwa den Ruwer-Hochwald-Radweg auf einer ehemaligen Bahntrasse. Die Infrastruktur in Niederzerf bietet Grundschule, Kindergarten, Einkaufsmöglichkeiten und Ärzte – die Anbindung per Bahn und Autobahn ist ebenfalls solide gegeben.
Objektbeschreibung
In attraktiver Lage entsteht ab März 2026 ein modernes Neubauprojekt mit insgesamt 24 Wohneinheiten, das voraussichtlich im März 2028 fertiggestellt wird. Das Bauvorhaben vereint zeitgemäße Architektur mit hoher Wohnqualität und Komfort.
Die Wohnungen werden großzügig und lichtdurchflutet gestaltet und bieten vielfältige Grundrisslösungen, die sowohl Single wie Paare als auch Familien ansprechen. Jede Einheit verfügt über einen eigenen Kellerraum im Untergeschoss, so dass zusätzlicher Stauraum für die Bewohner vorhanden ist.
Ein Personenaufzug verbindet alle Etagen komfortabel miteinander und sorgt für barrierearmes Wohnen. Die Ausstattung der Wohnungen entspricht modernen Wohnstandards. In allen Räumen wird eine Fußbodenheizung installiert, die für behagliche Wärme und ein angenehmes Raumklima sorgt.
Zur Wohnung kann optional ein Außenstellplatz für 5.000 € oder ein Tiefgaragenstellplatz für 30.000 € erworben werden. Damit wird eine flexible und komfortable Parkmöglichkeit gewährleistet.
Dieses Neubauprojekt verbindet durchdachte Grundrisse, moderne Ausstattung und eine attraktive Lage zu einem zukunftssicheren Wohnkonzept.
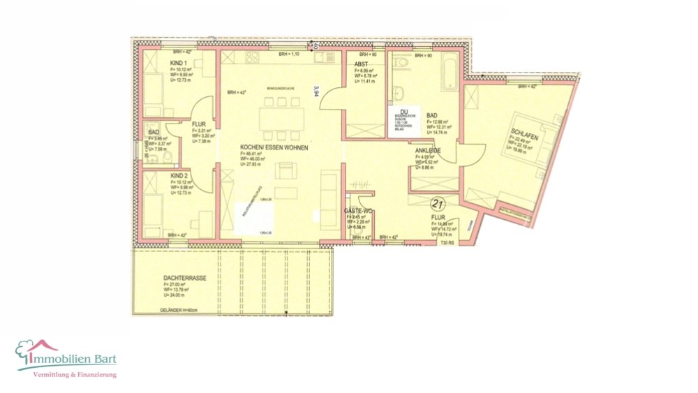
Die Raumaufteilung ist wie folgt:
Penthouse:
Flur, Gäste-WC, Abstellraum, Wohn-Essbereich mit offener Küche und Ausgang zur Dachterrasse, 2 Schlafzimmer mit eigenem Badezimmer, Schlafzimmer mit Ankleide und eigenem Badezimmer
Sonstiges
Unser gesamtes Immobilienangebot können Sie unter www.immobilien-bart.de einsehen.
Haben wir Ihr Interesse geweckt? Für einen unverbindlichen Besichtigungstermin stehen wir Ihnen nach vorheriger Terminabsprache gerne zur Verfügung. Bitte haben Sie Verständnis dafür, dass wir Anfragen nur bearbeiten, wenn uns der vollständige Name, die Postanschrift und eine Rufnummer mitgeteilt wird. Ihre Daten werden selbstverständlich streng vertraulich und nur für diese Anfrage verwendet.
Sie möchten diese Immobilie finanzieren?
Vereinbaren Sie mit uns einen Beratungstermin, natürlich kostenfrei und unverbindlich. Aus einem Pool von 100 Banken finden wir, auch für Sie, die passende Finanzierung!
Der Kauf dieser Immobilie ist für den Käufer provisionsfrei!
Haftungsvorbehalt: Sämtliche Angaben erhielten wir vom Eigentümer und geben diese ohne Haftung weiter. Irrtum und Zwischenverkauf bleiben vorbehalten.
Ausstattung
heizungsart
Fussbodenheizung
befeuerung
Luft/Wasser Wärmepumpe
Aufzug
Personenaufzug
Besonderheiten:
- Neubauprojekt mit 24 Wohneinheiten
- geplanter Baubeginn: März 2026
- voraussichtliche Fertigstellung: März 2028
- jede Wohnung mit eigenem Kellerraum im Untergeschoss
- Personenaufzug für bequemen Zugang zu allen Etagen
GELEGENHEIT! WOHNUNG ZUR SELBSTNUTZUNG + ATTRAKTIVE MIETEINNAHMEN AUS GEWERBEVERMIETUNG
101 m² Wohnfläche • 122 m² Grundstücksfläche • 4 Anzahl Zimmer • 3 Anzahl Schlafzimmer • 1 Anzahl Badezimmer
Sie haben nicht das passende gefunden? - Aktivieren Sie den Suchagenten
Aktivieren Sie den Suchagenten und Sie erhalten die neuesten Angebote zu Ihrer Suche sofort und kostenlos per E-Mail. Sie können Ihren Suchauftrag jederzeit bearbeiten oder beenden. Suchagenten jetzt aktivieren! Neue Angebote erhalten